Zentrumsnahe 2-Raum-Wohnung mit Balkon! Vermietet! (Wohnungen Zwickau)
Land:
DEU
Strasse:
Äußere Schneeberger Str. 33
PLZ:
08056
Ort:
Zwickau
Adresse anzeigen:
1
Kaufpreis:
46.000,00 €
Hausgeld:
222,00 €
Vermittl.-Provision:
2.975 EUR inkl. MwSt.
Wohnfläche:
66,75 m²
Ihre Objektnr.:
ÄS33-04
Heizungsart:
Zentralheizung
Befeuerung:
Gas
Boden:
Fliesen
Bad:
Wanne
Zimmer:
2
Schlafzimmer:
1
Badezimmer:
1
Baujahr:
1876
vermietet:
1
Art:
Verbrauch
Gültig bis:
2033-11-14
E-Verbrauchskennw.:
122.00
EP inkl. Warmwasser:
ja
Wertklasse:
D
Baujahr:
2002
Jahrgang:
2014
Gebäudeart:
wohn
Die Stadtvilla wurde um 1852 als vollunterkellerter Massivbau errichtet und steht unter Denkmalschutz. 1876 erhielt die Villa einen Anbau. Die Fassade ist reich verziert.
Um die Jahrtausendwende erfolgte eine umfassende Sanierung des Gebäudes. Dabei wurde viel Wert auf die Verwendung hochwertiger Materialien und eine gehobene Ausstattung gelegt.
Das Grundstück ist 601 m² groß und gepflegt. Ein Großteil der Fläche ist asphaltiert bzw. mit Rasengittersteinen ausgelegt.
Die Wohnung ist vermietet. Der aktuelle Mietvertrag läuft seit 11/2016. Die Kaltmiete beträgt 285,00 EUR, die Nebenkostenvorauszahlung 188,00 EUR und die Gesamtmiete 473,00 EUR.
Der Erwerber wird Mitglied einer Wohneigentümergemeinschaft WEG mit einem Miteigentumsanteil von 814,10/10.000. Es ist lt. Wirtschaftsplan 2025 durch den Erwerber ein monatliches Hausgeld in Höhe von 222 EUR zu zahlen. Davon sind bei Vermietung ca. 2/3 als Betriebskosten umlegbar.
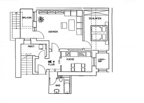
Die ca. 66,75 m² große 2-Raum-Wohnung befindet sich als Hochparterre im Erdgeschoss des Anbaues und teilt sich wie folgt auf:
- Flur
- Badezimmer mit Wanne (innenliegend)
- Küche mit Fenster
- Abstellraum
- Schlafzimmer
- Wohnzimmer mit Zugang zum Balkon
- Balkon
Zur Wohnung gehört ein Kellerabteil.
Die ca. 90.000 Einwohner zählende Stadt Zwickau liegt im Zentrum des westsächsischen Industriegebietes am Nordrand des Erzgebirges.
Im Großraum Zwickau-Chemnitz-Leipzig ist seit 1990 eine Reihe von namhaften Automobilherstellern mit Fertigungsstätten präsent (u.a. Volkswagen, BMW, Porsche). In der Folge hat sich ein ganzes Netz von Zuliefer- und Dienstleistungsfirmen in der Region angesiedelt.
Nach dem Beschluss des VW-Aufsichtsrates vom 16.11.2017 über die Investitionen in Elektromobilität, autonomes Fahren und Digitalisierung wird Zwickau zum Europäischen Zentrum des VW-Konzerns für die Fertigung von Elektrofahrzeugen entwickelt. Weitere Fahrzeughersteller und die Zulieferbranche orientieren sich in ähnlicher Weise. Damit werden Zehntausende Arbeitsplätze in der Region auf Jahrzehnte hinaus gesichert bzw. neu geschaffen.
Die geographische Lage zwischen den Autobahnen A 4, A 72 und der Schnellstraße B 93 garantiert optimale Erreichbarkeit und schnelle Verbindung zu anderen Wirtschaftszentren. Die von einem Grüngürtel umschlossene Innenstadt beherbergt herausragende Bauwerke wie den Zwickauer Dom, das Gewandhaus und das Geburtshaus von Robert Schumann. Vielfältige kulturelle Einrichtungen und Veranstaltungen sowie ein breites Spektrum an Ausflugszielen bieten den Bürgern und Gästen umfangreiche Möglichkeiten zur Freizeitgestaltung
Die Immobilie befindet sich im Süden der Stadt im Stadtteil Schedewitz.
Die Zwickauer Innenstadt mit ihren Sehenswürdigkeiten und Einkaufsstraßen sowie Bankgebäuden und Ärzten usw. ist nur ca. 400 m entfernt. Außerdem liegen das Glück-Auf-Center mit einem umfangreichen und attraktiven Einkaufsangebot sowie die Stadthalle Zwickau in der unmittelbaren Nähe.
Das Objekt ist fußläufig, mit öffentlichen Verkehrsmitteln und mit dem PKW gut erreichbar. Haltestellen der Straßenbahn sowie des Regiosprinters sind nur wenige Minuten zu Fuß entfernt.
KiTas und Schulen sind in großer Zahl und mit verschiedenen Spezialisierungen im ganzen Stadtgebiet verteilt.
Das Gebäude steht unter Denkmalschutz. Trotzdem liegt ein Energieausweis vor. Dieser ist dem Exposé als pdf-Dokument beigefügt.
Bitte nutzen Sie das Kontaktformular, um uns Ihre Fragen bzw. Ihren Besichtigungswunsch mitzuteilen. Wir nehmen schnellstmöglich den Kontakt zu Ihnen auf bzw. senden Ihnen gern ergänzende Unterlagen entsprechend Ihrer Anfrage zu.
Alle Angaben beruhen auf Aussagen der Eigentümer bzw. basieren auf den uns bis dato vorliegenden Unterlagen und erfolgen ohne Gewähr. Irrtum und zwischenzeitlicher Verkauf bleiben vorbehalten. Exposé © 2025, Immobilienbüro Kühn
Landkreis Zwickau ist die Oberkategorie in der diese Immobilie gelistet wird samt Immobiliensuche. Die Überschrift für diese Immobilie ist Zentrumsnahe 2-Raum-Wohnung mit Balkon! Vermietet!. Das hier vorliegende Exposé ist bei Immobilienfrontal unter der Kategorie Zwickau abgespiechert. Dem Bundesland Sachsen ist die Immobilie zugewiesen samt weiteren Immobilienangeboten. Der Anbieter Immobilienbüro Kühn GmbH & Co. KG Ansprechpartner Wolfgang Kühn, Jahnstraße 17 in 08058 Zwickau ist verantwortlich für die Veröffentlichung der Anzeige.
Besucher kamen auf die Seite Wohnungen in Zwickau durch folge Begriffe:
Synonyme zur Suche Zwickau Wohnungen:
Wohnungen Zwickau, Wohnung Zwickau, Zwickau Wohnung online
Immobilienbüro Kühn GmbH & Co. KG |
|
Wolfgang Kühn |
|
Jahnstraße 17 |
|
08058 Zwickau |
|
Telefon: |
0375282003 |
|
|
|
|
Maklerwebsite: |
|
|
|
|
|
USt.-ID: |
DE152847296 |
|
Handelsregister-Nr: |
HRA 10300 AG Chemnitz |
|
Aufsichtsbehörde: |
Berufsaufsichtsbehörde Stadt Zwickau |
Verbraucherinformation:
Online-Streitbeilegung gemäß Art. 14 Abs. 1 ODR-VO: Die Europäische Kommission stellt eine Plattform zur Online-Streitbeilegung (OS) bereit, die Sie hier finden: https://ec.europa.eu/consumers/odr


