ZENTRUM NORD + 2 RAUM WOHNUNG ZUM KAUF + BALKON + LOGGIA (Wohnungen Leipzig)
Land:
DEU
PLZ:
04105
Ort:
Leipzig
Etage (im Haus):
2
Kaufpreis:
185.000,00 €
Hausgeld:
243,81 €
Vermittl.-Provision:
2,975%
Wohnfläche:
64,91 m²
Ihre Objektnr.:
19612
Objekttyp:
Etage
Heizungsart:
Zentralheizung
Befeuerung:
Gas
Boden:
Parkett
Zustand:
Teil- / Vollrenoviert
Bad:
Wanne
Zimmer:
3
Baujahr:
1926
vermietet:
1
denkmalgeschuetzt:
1
Ferienobjekt:
1
Gartennutzung
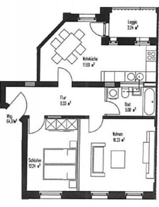
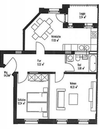
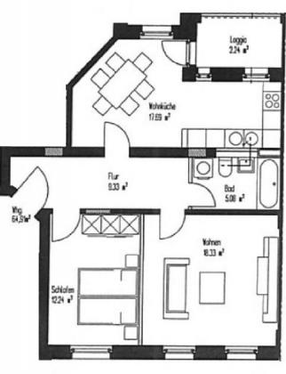
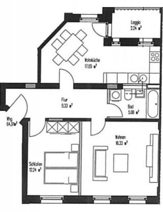
Charmante 2-Raum-Wohnung in einem denkmalgeschützten Mehrfamilienhaus in der Blochmannstraße, Leipzig. Die ca. 65 m² große Wohnung im 2. Obergeschoss besticht durch eine großzügige Wohnküche mit Balkon und 2 weitere Zimmer, sowie einem gepflegten Badezimmer mit Badewanne mit Platz für die Waschmaschine.
Ausstattung & Highlights:
* ca. 65 m² Wohnfläche
* Großzügige Wohnküche (ca. 18 m²) mit Balkonzugang (ca. 4,5 m²)
* Badezimmer mit Badewanne und Waschmaschinenanschluss
* stilvoll restauriertes, historisches Treppenhaus
* Kellerraum
Sanierung 2006:
Dach und Fassade wurden denkmalgerecht saniert. Die Haustechnik wurde komplett modernisiert mit neuer Heizungs-, Sanitär- und Elektroinstallation. Historische Türen und hochwertige Bodenbeläge wurden restauriert. Die Außenanlagen wurden attraktiv neu gestaltet.
Diese Wohnung vereint historischen Charme mit modernem Wohnkomfort – ideal für Kapitalanleger oder Liebhaber denkmalgeschützter Immobilien.
monatliches Hausgeld:
€ 201,88 umlegbar
€ 41,93 nicht umlegbar
Instandhaltungsrücklage pro Monat: € 37,86
Weitere Informationen gern auf Anfrage.
Zentrum Nord / Blochmannstraße, 2,5 Raum Wohnung, 2. Obergeschoss, Bad mit Wanne, Balkon/Loggia, Parkettboden, Keller, Hausmeisterservice, kleiner Innenhof, gepflegter Zustand, ideal für Kapitalanleger.
Bitte haben Sie Verständnis, dass wir Ihnen derzeitig keine Innenraumbilder zur Verfügung stellen können, da die Wohnung bewohnt ist. Sehr gern versuchen wir für Sie einen Besichtigungstermin mit den derzeitigen Mietern zu vereinbaren, bei Interesse am Kauf der Wohnung.
Zentrum Nord / Gohlis ist heute eines der bekanntesten und schönsten Stadtteile Leipzigs mit teilweise großbürgerlichem Charakter (gut erhaltenen Villen und Mietshäusern im Gründerzeit- und Jugendstil). Unweit des Stadtzentrums finden sich hier alle Voraussetzungen für lebenswertes Wohnen. Naherholungsgebiete, wie der Auewald und das Rosental mit dem Zoo befinden sich ganz in der Nähe. Mit den öffentlichen Verkehrsmitteln sind es ca. 7 Minuten bis zum Hauptbahnhof. Der S-Bahnhof Gohlis sowie die Straßenbahn sind jeweils in 3 Minuten Fußläufig erreichbar. Einkaufsmöglichkeiten, sowie alle Dinge des täglichen Lebens befinden sich in unmittelbarer Nähe.
Immaxi Immobilien - Die Immobilienmakler in Leipzig !
Haben wir Ihr Interesse geweckt? Vereinbaren Sie einen Besichtigungstermin!
TELEFON 0341 2122212
Unter dieser Nummer erreichen Sie unser kompetentes Maklerteam. Wir versuchen einen Termin nach Ihren Wünschen zu realisieren.
Unser komplettes Angebot an Wohnungen und Häusern zur Miete oder zum Kauf erhalten Sie auf www.immaxi.de
Alle Angaben nach bestem Wissen. Irrtum und Zwischenvermitltung vorbehalten. Dieses Exposé ist eine Vorinformation, als Rechtsgrundlage gilt allein der abgeschlossene Kaufvertrag/Mietvertrag.
Landkreis Leipzig ist die Oberkategorie in der diese Immobilie gelistet wird samt Immobiliensuche. Die Überschrift für diese Immobilie ist ZENTRUM NORD + 2 RAUM WOHNUNG ZUM KAUF + BALKON + LOGGIA. Dieses Exposé ist der Kategorie Leipzig zugeordnet. Sachsen lautet die geografische Oberkategorie zu dem vorliegenden Angebot. Der Anbieter Immaxi Immobilien Ansprechpartner Thomas Hoffmann, Waldstraße 67 in 04105 Leipzig ist verantwortlich für die Veröffentlichung der Anzeige.
Besucher kamen auf die Seite Wohnungen in Leipzig durch folge Begriffe:
Synonyme zur Suche Leipzig Wohnungen:
Wohnungen Leipzig, Wohnung Leipzig, Leipzig Wohnung online
|
Immaxi Immobilien |
|
Thomas Hoffmann |
|
Waldstraße 67 |
|
04105 Leipzig |
|
Telefon: |
0341 2122212 |
|
Telefax: |
0341 4624922 |
|
|
|
|
Maklerwebsite: |
|
|
|
|
|
Aufsichtsbehörde: |
Gewerbeerlaubnis lt. § 34C erteilt durch die Stadt Leipzig |
Verbraucherinformation:
Online-Streitbeilegung gemäß Art. 14 Abs. 1 ODR-VO: Die Europäische Kommission stellt eine Plattform zur Online-Streitbeilegung (OS) bereit, die Sie hier finden: http://ec.europa.eu/consumers/odr


