Wohnen im Zentrum (Wohnungen Gotha)
Land:
DEU
PLZ:
99867
Ort:
Gotha
Kaltmiete:
490,00 €
Warmmiete:
700,00 €
Nebenkosten:
210,00 €
Kaution:
1470.00
Wohnfläche:
73,96 m²
Ihre Objektnr.:
501374
Heizungsart:
Fernheizung
Zustand:
gepflegt
Zimmer:
3
Baujahr:
1900
Art:
Verbrauch
Gültig bis:
12.08.2028
E-Verbrauchskennw.:
92,9
EP inkl. Warmwasser:
ja
Ausstellungsdatum:
2018-08-12
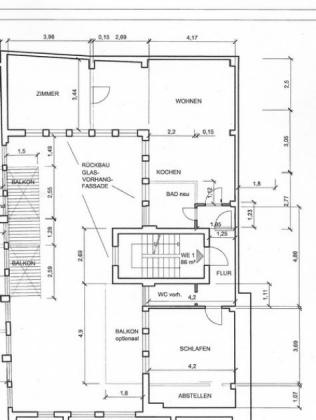
Sie interessieren sich für eine 3 Zimmer Wohnung in einem Wohn- und Geschäftshaus in der Gothaer Innenstadt.
Die Wohnungen wurden im Zuge der Umnutzung im Jahre 2014 neu saniert.
Es wurden Bäder mit Dusche eingebaut.
Die Wohnung verfügt über einen Balkon in den Nachbar-Innenhof.
Die Wohnräumen haben einen hellen Laminatboden in Holzoptik und die Wände sind weiß gestrichen.
Die Wohnung liegt direkt im Zentrum, in der Erfurter Straße. Sie erreichen in wenigen Minuten die Haltestellen des öffentlichen Nahverkehrs.
Der Schloßpark lädt zum Verweilen und Erholung in der Freizeit ein.
Baujahr: 1900
Befeuerung/Energieträger: Fernwärme
Energieausweistyp: Verbrauchsausweis
Energiekennwert: 92,9 kWh/(m²*a)
Energie mit Warmwasser: Ja
Heizungsart: Fernwärme
Es ist kein Kellerraum zur Wohnung vorhanden.
Landkreis Gotha ist die Oberkategorie in der diese Immobilie gelistet wird samt Immobiliensuche. Die Überschrift für diese Immobilie ist Wohnen im Zentrum. Unter Gotha sind weitere mögliche Immobilienangebote aufzufinden, die ähnlich dieser Immobilie sind. Thüringen lautet die geografische Oberkategorie zu dem vorliegenden Angebot. Der Anbieter HONNEF Immobilien Ansprechpartner Peter Honnef & Rudolf Steinert GbR, Schlossberg in 99867 Gotha ist verantwortlich für die Veröffentlichung der Anzeige.
Besucher kamen auf die Seite Wohnungen in Gotha durch folge Begriffe:
Synonyme zur Suche Gotha Wohnungen:
Wohnungen Gotha, Wohnung Gotha, Gotha Wohnung online
|
HONNEF Immobilien |
|
Peter Honnef & Rudolf Steinert GbR |
|
Schlossberg |
|
99867 Gotha |
|
Telefon: |
03621 - 300 000 |
|
Telefax: |
03621 - 300 901 |
|
|
|
|
Maklerwebsite: |
|
|
|
|
|
Steuernummer: |
DE 161812665 |
|
Aufsichtsbehörde: |
Stadtverwaltung Gotha |
Verbraucherinformation:
Online-Streitbeilegung gemäß Art. 14 Abs. 1 ODR-VO: Die Europäische Kommission stellt eine Plattform zur Online-Streitbeilegung (OS) bereit, die Sie hier finden: http://ec.europa.eu/consumers/odr


