Vermietete 2-Raumwohnung mit Einbauküche; Innenstadtlage! (Wohnungen Zwickau)
Land:
DEU
Strasse:
Poetenweg 26
PLZ:
08056
Ort:
Zwickau
Adresse anzeigen:
1
Etage (im Haus):
4
Kaufpreis:
59.000,00 €
Hausgeld:
224,00 €
Vermittl.-Provision:
2.975,- EUR inkl. 19 % MwSt.
Wohnfläche:
62,31 m²
Ihre Objektnr.:
Po26W3VK
Objekttyp:
Dachgeschoss
Heizungsart:
Zentralheizung
Befeuerung:
Gas
Boden:
Fliesen
Zustand:
gepflegt
Bad:
Wanne
Küche:
EBK
Zimmer:
2
Schlafzimmer:
1
Badezimmer:
1
Baujahr:
1905
vermietet:
1
Art:
Verbrauch
Gültig bis:
2028-09-16
E-Verbrauchskennw.:
82.40
EP inkl. Warmwasser:
ja
Wertklasse:
C
Baujahr:
2015
Jahrgang:
2014
Gebäudeart:
wohn
Das unter Denkmalschutz stehende Wohnhaus wurde 1905 errichtet, 1995 in Sonder-Wohneigentum geteilt und 1996 vollständig saniert.
In der Denkmalliste des Freistaates Sachsen wird das Gebäude als "markantes Jugendstilgebäude in sehr gutem Originalzustand, als Teil eines zeitgleich in ähnlicher Weise gestalteten Straßenzuges von baugeschichtlichem und städtebaulichem Wert" gewürdigt.
Es befindet sich in einem gepflegten Zustand.
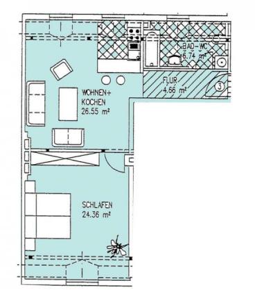
Die ca. 62,31 m² große 2-Raum-Wohnung Nr. 3 befindet sich im 1. Dachgeschoss, in Höhe eines 4. Obergeschosses. Mit Laminat- und Fließen-Fußböden sowie 4 Fenstern in Dachgauben hinterlässt die Wohnung, wie schon das Haus, einen hellen und gepflegten Eindruck.
Die sichtbaren Balken vermitteln bei dieser schönen Wohnung ein besonderes Ambiente. Der im Wohnzimmer integrierte Kochbereich ist mit einer Einbauküche ausgestattet und gefliest. Wohn- und Schlafzimmer sind mit Laminat ausgelegt.
.
Das Tageslichtbad mit Wanne und Duschwand ist gefliest.
Zur Wohnung gehört lt. GBA der Mieterkeller Nr. 3.
Die Wohnung ist vermietet. Der aktuelle Mietvertrag läuft seit Dezember 2021. Der Mieter zahlt aktuell eine Kaltmiete von 280 EUR, eine Vorauszahlung auf NK/BK von 140 EUR und somit eine Gesamtmiete in Höhe von 420 EUR.
Der Erwerber tritt mit einem Miteigentumsanteil (MEA) von 109,337/1.000 in eine Wohneigentümergemeinschaft (WEG) ein. Als seinen Beitrag zur Bewirtschaftung des Hauses zahlt er lt. Wirtschaftsplan 2025 ein monatliches Hausgeld in Höhe von 224 EUR ein. Davon sind bei Vermietung ca. 2/3 auf den Mieter umlegbar.
Das Haus Poetenweg 26 liegt innerhalb des städtebaulichen Sanierungsgebietes "Zentrumsnahe Nordvorstadt" der Stadt Zwickau.
Die ca. 90.000 Einwohner zählende und 900-jährige Stadt Zwickau liegt am Nordrand des Erzgebirges. Sie ist die viertgrößte Stadt im Freistaat Sachsen und hat als Oberzentrum einen Einzugsbereich von ca. 480.000 Menschen.
Zwischen den Autobahnen A 4 und A 72 sowie der Schnellstraße B 93 gelegen, ist Zwickau optimal in das Fernstraßennetz integriert und aus allen Richtungen
gut erreichbar.
Die Stadt ist vom Automobilbau geprägt. Die Firmen Audi und Horch wurden hier gegründet. Der VEB Sachsenring produzierte 3 Mio. Trabant-PKW. Seit 1990 ist VW mit der Stadt verbunden. In Zwickau werden ausschließlich
Elektro-Fahrzeuge gefertigt (Leitbetrieb des Konzerns).
Die von einem Grüngürtel umschlossene Innenstadt beherbergt herausragende Bauwerke. In der aufwendig sanierten Altstadt rund um den Dom St. Marien
finden Sie zahlreiche Restaurants, Cafés und Geschäfte.
Die Immobilie liegt in der Fußgängerzone in der Innenstadt Zwickaus. Das gesamte Wohnviertel, begrenzt durch die Kreisig- und die Bosestraße, wird durch seine Vielzahl an sehr schönen Gründerzeit- und Jugendstilgebäuden sowie Neubauten dominiert.
Die fußläufig erreichbaren Geschäfte des täglichen Bedarfs , Haltestellen öffentlicher Verkehrsmittel sowie eine Vielzahl von gastronomischen und kulturellen Angeboten sind weitere Vorteile des Standortes.
Besonders zu erwähnen wäre der Neumarkt mit dem Frische-Markt mit permanenten Verkaufsständen, dem multidisziplinären Medizinischen Versorgungszentrum MVZ und der Umsteigehaltestelle für Straßenbahn und Stadtbus.
Kulturelle Genüsse für jeden Geschmack bieten das All-Sparten-Theater Zwickau/Plauen, der Platz der Völkerfreundschaft als Stätte für Konzerte (u.a. Sting, Maffay) und Volksfeste sowie der Filmpalast Astoria mit seinen sieben Kinosälen.
Wir laden Sie zu einer Besichtigung ein, um Ihnen diese schöne Immobilie(n) vor Ort zu zeigen. Wir bitten um Ihr Verständnis, dass Besichtigungen ausschließlich über unser Büro zu vereinbaren sind.
Bitte nutzen Sie das Kontaktformular, um uns Ihre Fragen bzw. Ihren Besichtigungswunsch mitzuteilen. Wir nehmen schnellstmöglich den Kontakt zu Ihnen auf bzw. senden Ihnen gern ergänzende Unterlagen entsprechend Ihrer Anfrage zu.
Landkreis Zwickau ist die Oberkategorie in der diese Immobilie gelistet wird samt Immobiliensuche. Die Überschrift für diese Immobilie ist Vermietete 2-Raumwohnung mit Einbauküche; Innenstadtlage!. Das hier vorliegende Exposé ist bei Immobilienfrontal unter der Kategorie Zwickau abgespiechert. Dem Bundesland Sachsen ist die Immobilie zugewiesen samt weiteren Immobilienangeboten. Der Anbieter Immobilienbüro Kühn GmbH & Co. KG Ansprechpartner Wolfgang Kühn, Jahnstraße 17 in 08058 Zwickau ist verantwortlich für die Veröffentlichung der Anzeige.
Besucher kamen auf die Seite Wohnungen in Zwickau durch folge Begriffe:
Synonyme zur Suche Zwickau Wohnungen:
Wohnungen Zwickau, Wohnung Zwickau, Zwickau Wohnung online
Immobilienbüro Kühn GmbH & Co. KG |
|
Wolfgang Kühn |
|
Jahnstraße 17 |
|
08058 Zwickau |
|
Telefon: |
0375282003 |
|
|
|
|
Maklerwebsite: |
|
|
|
|
|
USt.-ID: |
DE152847296 |
|
Handelsregister-Nr: |
HRA 10300 AG Chemnitz |
|
Aufsichtsbehörde: |
Berufsaufsichtsbehörde Stadt Zwickau |
Verbraucherinformation:
Online-Streitbeilegung gemäß Art. 14 Abs. 1 ODR-VO: Die Europäische Kommission stellt eine Plattform zur Online-Streitbeilegung (OS) bereit, die Sie hier finden: https://ec.europa.eu/consumers/odr


