Traumhaft Wohnen in alter Klinkervilla (Wohnungen Gotha)

Land:
DEU
PLZ:
99867
Ort:
Gotha
Kaltmiete:
800,00 €
Warmmiete:
1.100,00 €
Nebenkosten:
300,00 €
Heizkosten:
200,00 €
Kaution:
2400.00
Wohnfläche:
134,00 m²
Ihre Objektnr.:
501105
Heizungsart:
Etagenheizung
Fahrstuhl:
Personen
Zustand:
gepflegt
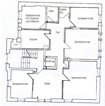
Zimmer:
4
Schlafzimmer:
2
Badezimmer:
1
Baujahr:
1900
Sie interessieren sich für eine Wohnung in historischem Ambiente.
Das Haus wurde unter denkmalpflegerischen Aspekten saniert. Imposant sind die Klinkerfassade mit den zahlreichen Gauben, Erkern und Türmchen.
Die Wohnung ist im Zuge einer Umnutzung aus einer ehemalligen Gewerbeeinheit entstanden.
Es ist ein neues Badezimmer mit Wanne, Dusche, WC und Doppelwaschbecken eingebaut.
Der Bodenbelag ist ein Laminatboden.
Die zu vermietenden Wohnung befindet sich in einem architektonisch sehr interessanten Klinkergebäude in der 18.-März-Straße 3.
Die 18.-März-Str - früher: Kaiserstr. - liegt westlich des Stadtzentrums - unweit vom Schlosspark und ist eine der architektonisch attraktivsten Straßenzüge in Gotha. Verkehrsmäßig ist das Objekt problemlos zu erreichen.
Haltestellen des öffentlich Nahverkehrs befinden sich in unmittelbarer Umgebung; Bus - Reinhardsbrunner Straße; Straßenbahn - Waltershäuser Straße.
Heizungsart: Etagenheizung
Baujahr: 1900
Besuchen Sie uns doch einmal im Internet unter www.honnef-immobilien.de
Landkreis Gotha ist die Oberkategorie in der diese Immobilie gelistet wird samt Immobiliensuche. Die Überschrift für diese Immobilie ist Traumhaft Wohnen in alter Klinkervilla. Unter Gotha sind weitere mögliche Immobilienangebote aufzufinden, die ähnlich dieser Immobilie sind. Thüringen lautet die geografische Oberkategorie zu dem vorliegenden Angebot. Der Anbieter HONNEF Immobilien Ansprechpartner Peter Honnef & Rudolf Steinert GbR, Schlossberg in 99867 Gotha ist verantwortlich für die Veröffentlichung der Anzeige.
Besucher kamen auf die Seite Wohnungen in Gotha durch folge Begriffe:
Synonyme zur Suche Gotha Wohnungen:
Wohnungen Gotha, Wohnung Gotha, Gotha Wohnung online
![]() |
HONNEF Immobilien |
Peter Honnef & Rudolf Steinert GbR |
Schlossberg |
99867 Gotha |
Telefon: |
03621 - 300 000 |
Telefax: |
03621 - 300 901 |
|
|
Maklerwebsite: |
|
|
|
Steuernummer: |
DE 161812665 |
Aufsichtsbehörde: |
Stadtverwaltung Gotha |
Verbraucherinformation:
Online-Streitbeilegung gemäß Art. 14 Abs. 1 ODR-VO: Die Europäische Kommission stellt eine Plattform zur Online-Streitbeilegung (OS) bereit, die Sie hier finden: http://ec.europa.eu/consumers/odr