Top sanierte Maisonette ETW mit zwei Balkonen und Garage! Erstbezug nach Sanierung! (Wohnungen Wuppertal)
Land:
DEU
PLZ:
42281
Ort:
Wuppertal
Etage (im Haus):
3
Kaufpreis:
198.000,00 €
Hausgeld:
251,33 €
Vermittl.-Provision:
3,57 EUR inkl. Mehrwertsteuer
Wohnfläche:
94,00 m²
Ihre Objektnr.:
26001
Objekttyp:
Maisonette
Heizungsart:
Etagenheizung
Befeuerung:
Gas
Bad:
Dusche
Küche:
EBK
Garagen (Anz.):
1
Zimmer:
4
Schlafzimmer:
2
Badezimmer:
1
Baujahr:
1982
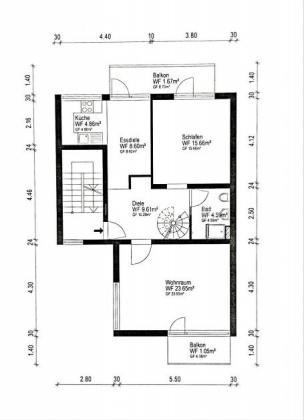
Die lichtdurchflutete Wohnung befindet sich im 2. Obergeschoss eines Dreifamilienhauses und verfügt über insgesamt 94 m², verteilt auf zwei Ebenen.
Die Wohnung verfügt über zwei Eingänge, jeweils in jeder Etage einen und überzeugt durch ihre klare Raumaufteilung.
In der ersten Etage befindet sich ein helles Zimmer mit Zugang zu einem der Balkone, welches sich flexibel als Kinder- Arbeits- oder Schlafzimmer eignet. Ebenfalls auf dieser Ebene befinden sich die Küche inkl. Einbauküche, sowie ein helles Bad mit Dusche und das großzügige Wohnzimmer.
Sowohl von der Küche als auch vom Schlaf- / Arbeitszimmer aus gibt es einen Zugang zum großen Balkon mit Blick ins Grüne, ideal zum Entspannen oder für Geselligkeit.
Im oberen Geschoss, in welches man über eine Wendeltreppe gelangt, gibt es einen großen Raum, individuell nutzbar, mit schöner Beleuchtung und Dachflächenfenstern, die die Räume mit Tageslicht fluten und ein modernes Wohngefühl schaffen.
Auch auf dieser Ebene gibt es ein saniertes Badezimmer, ein zusätzlicher Abstellraum sorgt für praktischen Stauraum.
Die Wohnung wurde insgesamt top saniert, hochwertige Vinylböden in Holzoptik, neue Innentüren, Heizkörper neu, alle Schalter und Steckdosen neu, die Wände wurden gespachtelt und gestrichen, beide Badezimmer, indirekte Beleuchtung etc...
Ein eigener Kellerraum sowie eine PKW-Garage runden dieses großartige Angebot ab.
Derzeit finden noch einige wenige Restarbeiten statt, die Wohnung kann aber gern schon besichtigt werden.
- zwei Balkone
- Einbauküche
- PKW-Garage
- Gäste-Bad
- Abstellraum
- elektrische Jalousien
- Gas-Etagenheizung
- Kelleranteil
- Anschlüsse: DSLAnschluss, Satellitenanschluss
Alle wichtigen Bereiche zum täglichen Leben sind fußläufig oder per
öffentlicher Verkehrsmittel gut zu erreichen.
Kindergärten etc. befinden sich auch in der Nähe.
Im Stadtbezirk Barmen liegen die wesentlichen repräsentativen Bauten
der Stadt, so das Wuppertaler Rathaus, der Barmer Bahnhof und die
"Ruhmeshalle", das heutige "Haus der Jugend".
Darüber hinaus befinden sich im Stadtbezirk das Historische Zentrum mit
dem Museum für Frühindustrialisierung, dem Geburtshaus von Friedrich
Engels Senior, sowie das Theater am Engelsgarten und das Opernhaus der Wuppertaler Bühnen.
Barmen verfügt zudem über eine Fußgängerzone mit Fachgeschäften.
Diese Immobilie ist in der Immobiliendatenbank in der Rubrik Wuppertal abgespeichert. Die Überschrift für diese Immobilie ist Top sanierte Maisonette ETW mit zwei Balkonen und Garage! Erstbezug nach Sanierung!. Kreis Wuppertal ist die Oberkategorie in der diese Immobilie gelistet wird samt Immobiliensuche.
Der Anbieter Torsten Pawlitzek ( Immobilien ) Ansprechpartner Torsten Pawlitzek, in ist verantwortlich für die Veröffentlichung der Anzeige. Das diesem Objekt zugeordnete Bundesland ist Nordrhein-Westfalen.
Besucher kamen auf die Seite Wohnungen in Wuppertal durch folge Begriffe:
Synonyme zur Suche Wuppertal Wohnungen:
Wohnungen Wuppertal, Wohnung Wuppertal, Wuppertal Wohnung online
Torsten Pawlitzek ( Immobilien ) |
|
Torsten Pawlitzek |
|
|
|


