Schöne 4-Raum-Maisonette mit 2 Bädern + Dachterrasse! Eigennutzung ist möglich! (Wohnungen Zwickau)
Land:
DEU
Strasse:
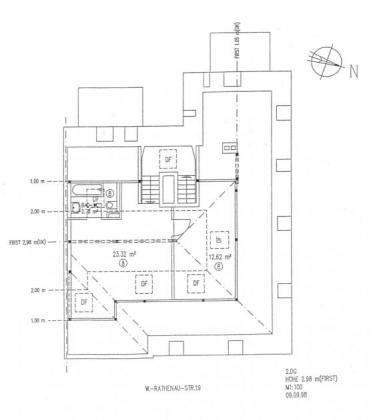
Walther-Rathenau-Straße 19
PLZ:
08058
Ort:
Zwickau
Adresse anzeigen:
1
Etage (im Haus):
4
Kaufpreis:
120.000,00 €
Hausgeld:
296,00 €
Vermittl.-Provision:
3,57 %, mind. 2.975 EUR, inkl. 19 % MwSt.
Wohnfläche:
104,04 m²
Ihre Objektnr.:
WR19-08
Objekttyp:
Maisonette
Heizungsart:
Zentralheizung
Befeuerung:
Gas
Boden:
Fliesen
Bad:
Fenster
Zimmer:
4
Schlafzimmer:
3
Badezimmer:
2
Baujahr:
1919
vermietet:
1
Art:
Verbrauch
Gültig bis:
2028-03-27
E-Verbrauchskennw.:
86.00
EP inkl. Warmwasser:
ja
Baujahr:
1999
Jahrgang:
2014
Gebäudeart:
wohn
Das 1999 vollständig sanierte und 1919 massiv erbaute Mehrfamilienhaus besticht durch eine ansprechende Altbaustruktur mit modernem Innenausbau: Balkone, helle Wohnräume, hochwertige Bodenbeläge, geflieste Bäder sowie abgeschlossene Keller und Abstellräume.
Die Wohnung ist unvermietet.
Der Erwerber wird Mitglied einer Wohneigentümergemeinschaft WEG mit einem Miteigentumsanteil von 188,36/1.000. Es ist lt. Wirtschaftsplan 2025 durch den Erwerber ein monatliches Hausgeld in Höhe von 296,00 EUR zu zahlen. Davon sind bei Vermietung erfahrungsgemäß ca. 2/3 als Betriebskosten umlegbar.
Der Energieausweis ist dem Exposé als pdf-Dokument beigefügt.
Die Wohnung mit ca. 104,04 m² Wohnfläche befindet sich als Maisonettewohnung im Dachgeschoss und teilt sich wie folgt auf:
1. DG:
- Flur
- Wohnzimmer
- Schlafzimmer
- Tageslichtbad mit Dusche
- Küche mit Zugang Dachterrasse
- Dachterrasse
2. DG:
- Schlafzimmer
- Kinderzimmer
- Tageslichtbad mit Wanne
Vor ca. einem Jahr wurde in der Wohnung neues Laminat verlegt.
Zur Wohnung gehört ein Abstellraum im Treppenhaus sowie ein Kellerabteil mit der Nr. 8.
Die ca. 90.000 Einwohner zählende Stadt Zwickau liegt im Zentrum des westsächsischen Industriegebietes am Nordrand des Erzgebirges. Sie ist die viertgrößte Stadt im Freistaat Sachsen und hat als Oberzentrum einen Einzugsbereich von ca. 480.000 Menschen. Die Stadt blickt zurück auf eine 900jährige Geschichte und hat Persönlichkeiten wie Robert Schumann, August Horch und Max Pechstein hervorgebracht.
Die Immobilie Walther-Rathenau-Straße 19 liegt im begehrten Stadtteil Nordvorstadt in Zwickau - zentral, ruhig und grün. Die Straße ist eine verkehrsberuhigte Anliegerstraße. Öffentliche Verkehrsmittel (Straßenbahn und Busse) sowie Einkaufsmöglichkeiten, medizinische Einrichtungen und Schulen (darunter das Käthe-Kollwitz-Gymnasium, ca. 200 m) sind in wenigen Minuten fußläufig erreichbar.
Unmittelbar gegenüber befindet sich der Ernst-Schneller-Platz mit Parkcharakter, weitere Grünflächen wie der Schlobigpark oder die Rosenwiese befinden sich in direkter Umgebung. Kulturelle Highlights wie das August-Horch-Museum oder das Alte Gasometer sind bequem per Fuß oder ÖPNV erreichbar.
Bitte nutzen Sie das Kontaktformular, um uns Ihre Fragen bzw. Ihren Besichtigungswunsch mitzuteilen. Wir nehmen schnellstmöglich den Kontakt zu Ihnen auf bzw. senden Ihnen gern ergänzende Unterlagen entsprechend Ihrer Anfrage zu.
Alle Angaben beruhen auf Aussagen der Eigentümer bzw. basieren auf den uns bis dato vorliegenden Unterlagen und erfolgen ohne Gewähr. Irrtum und zwischenzeitlicher Verkauf bleiben vorbehalten. Exposé © 2025, Immobilienbüro Kühn
Landkreis Zwickau ist die Oberkategorie in der diese Immobilie gelistet wird samt Immobiliensuche. Die Überschrift für diese Immobilie ist Schöne 4-Raum-Maisonette mit 2 Bädern + Dachterrasse! Eigennutzung ist möglich!. Das hier vorliegende Exposé ist bei Immobilienfrontal unter der Kategorie Zwickau abgespiechert. Dem Bundesland Sachsen ist die Immobilie zugewiesen samt weiteren Immobilienangeboten. Der Anbieter Immobilienbüro Kühn GmbH & Co. KG Ansprechpartner Wolfgang Kühn, Jahnstraße 17 in 08058 Zwickau ist verantwortlich für die Veröffentlichung der Anzeige.
Besucher kamen auf die Seite Wohnungen in Zwickau durch folge Begriffe:
Synonyme zur Suche Zwickau Wohnungen:
Wohnungen Zwickau, Wohnung Zwickau, Zwickau Wohnung online
Immobilienbüro Kühn GmbH & Co. KG |
|
Wolfgang Kühn |
|
Jahnstraße 17 |
|
08058 Zwickau |
|
Telefon: |
0375282003 |
|
|
|
|
Maklerwebsite: |
|
|
|
|
|
USt.-ID: |
DE152847296 |
|
Handelsregister-Nr: |
HRA 10300 AG Chemnitz |
|
Aufsichtsbehörde: |
Berufsaufsichtsbehörde Stadt Zwickau |
Verbraucherinformation:
Online-Streitbeilegung gemäß Art. 14 Abs. 1 ODR-VO: Die Europäische Kommission stellt eine Plattform zur Online-Streitbeilegung (OS) bereit, die Sie hier finden: https://ec.europa.eu/consumers/odr


