Schöne 3-Raum-Wohnung in Oelsnitz/V., 2. OG. Leerstehend! (Wohnungen Oelsnitz/Vogtland)
Land:
DEU
PLZ:
08606
Ort:
Oelsnitz/Vogtland
Etage (im Haus):
2
Kaufpreis:
45.000,00 €
Hausgeld:
140,65 €
Vermittl.-Provision:
2.975,- EUR inkl. 19 % MwSt.
Wohnfläche:
62,06 m²
Ihre Objektnr.:
Ba17-07
Objekttyp:
Etage
Heizungsart:
Zentralheizung
Befeuerung:
Gas
Boden:
Fliesen
Bad:
Wanne
Küche:
Offene Küche
Zimmer:
3
Schlafzimmer:
2
Badezimmer:
1
Baujahr:
1900
denkmalgeschuetzt:
1
Das Objekt wurde um 1900 erbaut und 1999 umfassend saniert. Es steht unter Denkmalschutz.
Das Ensemble, in dem das Haus sich befindet, wird von der Denkmalbehörde als "einheitliche Gruppe von historisierenden und stadtbildprägenden Klinkerbauten" bezeichnet. Ein repräsentativer Mittelerker ziert die Fassade, geschmückt mit zahlreichen Putten und Ornamenten.
Die Gebäude verlaufen von Südwesten nach Nordosten.
Das Haus steht an der Straße, welche zum Bahnhof hin in eine Sackgasse führt.
Der rückwärtige, nicht befahrbare Teil des Grundstückes ist begrünt und von allen Bewohnern nutzbar.
Parkmöglichkeiten befinden sich in der näheren Umgebung.
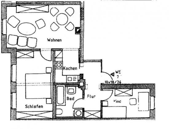
Die hier angebotene 3-Zimmer-Wohnung befindet sich in einem gepflegten Mehrfamilienhaus im 2. Obergeschoss am Rande des Zentrums.
Die Wohnung ist leerstehend.
Die Wohnung besteht aus:
- Wohnzimmer - ca. 26 m²
- Schlafzimmer - ca. 17 m²
- Kinderzimmer - ca. 9 m²
- Bad - ca. 5 m²
- Flur - ca. 6 m²
Alle Werte stammen aus Planungen und sind ca. Angaben.
Die Wohnung ist mit hochwertigem Laminat ausgestattet.
Vom zentralen Flur gelangt man in das innenliegende Bad mit Wanne. Hier befindet sich auch der Waschmaschinenanschluss.
Weiter gelangt man durch eine Schiebetür in die Kochnische und das angeschlossene Wohnzimmer.
Von dort aus gelangt man weiter ins Schlafzimmer.
Außerdem geht vom Flur das Kinderzimmer rechts weg mit Blick ins Grüne.
Die Große Kreisstadt Oelsnitz mit 11.000 Einwohnern liegt im Vogtlandkreis in Westsachsen.
Ihre Geschichte reicht bis ins 13. Jahrhundert zurück.
Die Wirtschaft ist vom Tourismus und von der im Vogtland traditionell starken Metallverarbeitung geprägt.
Schloß Voigtsberg weist eine umfangreiche Teppich- und Mineraliensammlung auf. In früheren Zeiten genossen die Halbmond-Teppiche aus der Stadt und Umgebung Weltruf.
Oelsnitz liegt an der B 92. Der nächste BAB-Anschluss der A72 ist nur 3 km entfernt. Es gibt eine Bahnverbindung nach Plauen und Cheb (Tschechien).
Das MFH mit der zum Verkauf stehenden Eigentumswohnung liegt ca 900 m südwestlich vom Stadtzentrum in unmittelbarer Bahnhofsnähe. Die neue gestaltete B92 verläuft parallel zur Bahnhofstraße und nimmt den Durchgangsverkehr auf. Daher hat die Bahnhofstraße eine relativ ruhige Lage.
Die B92 stellt gleichzeitig die Grenze der städtischen Bebauung.
Weiter südlich geht es dann schon ins "Grüne".
Im Stadtzentrum befinden sich viele Einkaufsgelegenheiten, u.a. auch REWE in 300 m Entfernung. Eine Kita ist nur 200 m, Grund- und Oberschule sowie das Gymnasium sind höchstens 1.000 m vom Standort entfernt und gut zu Fuß erreichbar. Zur Staumauer der Talsperre Pirk, einem beliebten Ausflugsziel, benötigt man mit dem Fahrrad ca. eine Viertelstunde. Im Stausee ist Baden, Segeln und Surfen möglich. Der Betrieb von Booten mit Verbrennungsmotoren ist ausdrücklich verboten, was der Erholungsqualität zugute kommt.
Das Vogtland bietet mit seiner herrlichen Landschaft Platz zum Wandern, Fahrradfahren und Auspannen.
Der Erwerber wird Mitglied einer Wohneigentümergemeinschaft WEG mit einem Miteigentumsanteil von 114,55/1.000.
Die Immobilie steht unter Denkmalschutz. Daher muss ein Energieausweis nicht vorgelegt werden.
Bitte nutzen Sie das Kontaktformular, um uns Ihre Fragen bzw. Ihren Besichtigungswunsch mitzuteilen. Wir nehmen schnellstmöglich den Kontakt zu Ihnen auf bzw. senden Ihnen gern ergänzende Unterlagen entsprechend Ihrer Anfrage zu. Alle Angaben beruhen auf Aussagen der Eigentümer bzw. basieren auf den uns bis dato vorliegenden Unterlagen und erfolgen ohne Gewähr. Irrtum und zwischenzeitlicher Verkauf bleiben vorbehalten. Fotos, Grundrisse und Exposé © 2024, Immobilienbüro Kühn
Vogtlandkreis ist die Oberkategorie in der diese Immobilie gelistet wird samt Immobiliensuche. Die Überschrift für diese Immobilie ist Schöne 3-Raum-Wohnung in Oelsnitz/V., 2. OG. Leerstehend!. Weitere interessante Immobilien können Sie unter der Kategorie Oelsnitz/Vogtland finden, die ähnliche Kategorien wie dieses Objekt aufweisen. Sachsen lautet die geografische Oberkategorie zu dem vorliegenden Angebot. Der Anbieter Immobilienbüro Kühn GmbH & Co. KG Ansprechpartner Wolfgang Kühn, Jahnstraße 17 in 08058 Zwickau ist verantwortlich für die Veröffentlichung der Anzeige.
Besucher kamen auf die Seite Wohnungen in Oelsnitz/Vogtland durch folge Begriffe:
Synonyme zur Suche Oelsnitz/Vogtland Wohnungen:
Wohnungen Oelsnitz/Vogtland, Wohnung Oelsnitz/Vogtland, Oelsnitz/Vogtland Wohnung online
Immobilienbüro Kühn GmbH & Co. KG |
|
Wolfgang Kühn |
|
Jahnstraße 17 |
|
08058 Zwickau |
|
Telefon: |
0375282003 |
|
|
|
|
Maklerwebsite: |
|
|
|
|
|
USt.-ID: |
DE152847296 |
|
Handelsregister-Nr: |
HRA 10300 AG Chemnitz |
|
Aufsichtsbehörde: |
Berufsaufsichtsbehörde Stadt Zwickau |
Verbraucherinformation:
Online-Streitbeilegung gemäß Art. 14 Abs. 1 ODR-VO: Die Europäische Kommission stellt eine Plattform zur Online-Streitbeilegung (OS) bereit, die Sie hier finden: https://ec.europa.eu/consumers/odr


