SANKT AUGUSTIN HANGELAR, 4 NEUBAU Doppelhaushälften ca. 135 m² Wfl. 5-6 Zimmer, Stellplatz, Garage (Häuser St. Augustin)
 
				Land:
DEU
PLZ:
53757
Ort:
St. Augustin
Kaufpreis:
499.000,00 €
Vermittl.-Provision:
3,57 % vom Kaufpreis inkl. der ges. MwSt. unbeschadet einer Courtagezahlung der Verkäuferseite.
Wohnfläche:
135,00 m²
Grundstücksfläche:
250,00 m²
Ihre Objektnr.:
Ebevkcfbh__
Objekttyp:
Doppelhaushaelfte
Heizungsart:
Fussboden
Stellplatz-Art:
Garage
Bad:
Wanne
Stellplätze (Anz.):
1.00
Garagen (Anz.):
1
Zimmer:
6
Schlafzimmer:
5
Badezimmer:
2
Seperate WC:
1
 Gartennutzung
Gartennutzung
 Kabel/Sat/TV
Kabel/Sat/TV
 Wasch/Trockenraum
Wasch/Trockenraum
Es entstehen in SANKT AUGUSTIN HANGELAR ... 4 x NEUBAU DOPPELHAUSHÄLFTEN ... 
ab  4 9 9. 0 0 0 , - -  E u r o 
.... schön .... hell .... in Massivbauweise mit Fußbodenheizung und mit Luft,- Wärmepumpe  .... Garage möglich.
++ mit ca. 135 m² Wfl. und 5 bis 6 Zimmer, Küche , Diele, Bad, Gäste-WC + Option auf 2. tes Bad mit WC im Studio ++
Bei dem Kaufpreis ab  499.000,-- Euro ist der Dachgeschossausbau nicht enthalten. 
Dieser kann in Eigenleistungen oder gegen Aufpreis durchgeführt werden.
In zentraler Lage von Sankt Augustin-Hangelar in einer sehr zentralen und dennoch ruhigen sowie sehr gepflegten, kinderfreundlichen Lage entstehen 4 tolle Neubau-Doppelhaushälften.
Die Grundstückstücksgrößen betragen ca. 250 m² und ca. 300 m² mit den anteiligen Wege,- und Verkehrsflächen.  Garagen,- und Stellplatzflächen werden entsprechend berücksichtigt.
+++ EINFAMILIEN-DOPPELHAUSHÄLFTE +++ NEUBAU+++ in Sankt Augustin-Hangelar +++
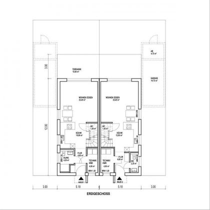
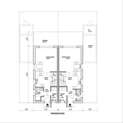
Jedes Haus verfügt über ca. 135 m² Wohnfläche und über insgesamt 5-6 Zimmer inkl. des Studiobereiches bzw. dem ausgebautem Dachgeschoss.
. Pläne und Grundrisse und Ansichten liegen vor.
Die Baubeschreibung kann angefordert und / oder eingesehen werden.
Diese erhalten Sie gerne auf Anforderung.
Bereits erbaute und vergleichbare Häuser können in der näheren Umgebung in Bonn und im Rhein-Sieg-Kreis besichtigt werden.
++++++++++++++++++++++++++++++++++
- die Kosten für Oberböden sowie für Maler,- / Tapezierarbeiten sind nicht im Preis enthalten.
- die Errichtung von Terrassenanlagen und Gartenanlagen sind ebenfalls vom Käufer zu erbringen.
++++++++++++++++++++++++++++++++++
Möglichkeiten gegen Aufpreis:
- Garage - möglich -
- Sonderausstattungen - möglich -
Weitere Bautypen:
Die jeweiligen Angebote / Häuser finden Sie unter den Links:
www.enders-immobilien.de
Geben Sie die jeweiligen Links in Ihren Browser ein.
____________________________________________________
KURZINFOS zur Doppelhaushälfte:
Größen / Aufteilung:
- 5-6 Zimmer, Küche, Diele, Bad im OG und  -Bad oder Dusche im Studio (optional)-.
- große Terrasse im EG.
____________________________________________________
Wohnflächen von ca. 135 m².
____________________________________________________
Grundstücksgrößen zwischen ca. 200 m² und 250 m²
____________________________________________________
Kaufpreise: ab 499.000,-- Euro ohne Dachgeschossausbau
Kaufpreise: mit Dachgeschossausbau und 2 tes. Bad ab 530.000,-- Euro
____________________________________________________
Ausstattung:
gehoben und modern ! Viele Varianten sind denkbar...
Es gilt die Baubeschreibung sowie die gewünschten Sonderausstattungen und vereinbarten Sonderleistungen auch gegen Aufpreise.
____________________________________________________
Lage:
. Absolute gute Nähe zu Bus und Bahn, Einkaufsmöglichkeiten.
. Absolut zentral und günstig gelegen.
. Schulen und Kindergärten Fußläufig. Post, Apotheken, Ärzte, Einkäufe, Bus... fußläufig...
. Ideale Lage für Familien.
+++++ Nur vier Einheiten !!! Lassen Sie sich vormerken +++++
. Grundrisse, Pläne, Ansichten, Lagepläne snd kürze vorhandenn !
INFOS erhalten Sie auch unter: (0 1 78 ) 9 836 936
Die Doppelhaushälften werden in Massivbauweise errichtet.
FINANZIERUNGEN:
Finanzierungen zu Sonderkonditionen sind möglich ! Sprechen Sie uns an !
Finanzieren Sie sicher und langfristig gut !
Einen seriösen Finanzierungspartner können wir Ihnen empfehlen.
- Massivbauweise
- Kunsstofffenster mit Isolierverglasung (Dreifachverglasung)
- Heizung: Luft- Wärmepumpe
- Fussbodenheizung
- Badezimmer: hell und modern gefliest (Wanne und Dusche möglich).
- weitere Ausstattungen auf Anfrage
- Kfz. Stellplatz
- Garage 
+++ fordern Sie die Baubeschreibung an +++
Die zu veräußernden schönen Doppelhaushälften liegt in einer zentralen Wohnlage in 53757 Sankt Augustin - Hangelar. 
Die Anbindung nach Sankt Augustin und Bonn ist ideal.
Hangelar ist ein Stadtbezirk der Stadt Sankt Augustin im nordrhein-westfälischen Rhein-Sieg-Kreis zwischen dem Zentrum Sankt Augustins und Bonn gelegen.
Der "Flugplatz Bonn-Hangelar" ist der älteste Flugplatz Deutschlands, im zweiten Weltkrieg wurde er militärisch genutzt.
Hinter dem Flugplatz liegt das Naturschutzgebiet Hangelarer Heide. Hangelar ist vor allem bekannt als Hauptstandort der "Bundespolizei (Deutschland)", der dort aufgrund der Nähe zum ehemaligen Regierungssitz eingerichtet wurde.
Der Ortsteil verfügt außerdem über den größten Segelflugplatz der Region.
Öffentliche Verkehrsmittel:
Hangelar wird werktags im Zehnminutentakt von der Siegburger-Bahn -Stadtbahnlinie 66- (Telekom Express) von Bonn und Siegburg aus angefahren (drei Haltestellen in Hangelar).
Die Haltestelle (S-Bahn) Hangelar-Mitte sowie die Haltestelle an der "Udetstrasse" sind ist fußläufig sehr gut erreichbar (ca. 350 m).
Geschäfte des täglichen Bedarfs, Ärzte. Apotheken, Banken, Dienstleister findet man im Ort
Auch Restaurants (Italiener, Grieche, Spanier, Grillrestaurants... Imbisse...usw...) sowie Gaststätten, Kneipen u.a..... findet man direkt in Hangelar... 
Autobahnanschluss:
ca. 2 km zur A 59 (AS Pützchen); ca. 2 km zur A 560 (AS Siegburg) Geschäfte für Güter des täglichen Bedarfs sind fußläufig im Zentrum von Hangelar reichlich vorhanden.
Sämtliche Schulformen befinden sich in unmittelbarer Nähe.
Arztpraxen und Apotheken sind ebenfalls in Hangelar vorhanden.
Objektinformationen:
weitere Objektinformationen und Bilder sowie den Objektstatus sehen Sie dann unter:
www.enders-immobilien.de/Ebevkcfbh__
Aufteilung:
Informationen hinsichtlich der Angaben zur Aufteilung -Grundrisse- erscheinen in kürze.
Verkauf:
ein Verkauf ist kurzfristig möglich. Ein Finanzierungsnachweis ist erforderlich.
_______________________________________________________
Kontakt:
wir bitten Sie vordergründig per Mail mit uns in Kontakt zu treten.
Bearbeitung:
Mails ohne Angaben Ihres Namen, Vornamens, postalischer Anschrift sowie Rufnummern und Emailadressen können wir nicht bearbeiten.
Anfragen und Besichtigungstermine:
Besichtigungstermine können nur nach Vereinbarung vor Ort am Grundstück angeboten werden !
Es sind keine Massenbesichtigungen möglich !
Oftmals können wir nicht allen Interessenten einen Besichtigungstermin anbieten und jedem Interesse gerecht werden.
Da wir als Immobilienfirma täglich eine Vielzahl von Emails erhalten, können wir nicht zusagen Ihnen umgehend antworten zu können. Ein Zwischenverkauf behalten wir uns vor.
In der Regel erhalten Sie vom Internetanbieter auch eine standardisierte Antwortmail.
________________________________________________________
Maklercourtage:
für den Nachweis und/oder die Vermittlung zahlt der Käufer 3,57 % Maklercourtage vom Kaufpreis inkl. der gesetzlichen MwSt. von derzeit 19 % unbeschadet einer Courtagezahlung der Verkäuferseite in gleicher Höhe..
Der Makler ist auch für die Verkäuferseite (als Doppelmakler) provisionspflichtig tätig.
Energieausweis:
ein Energieausweis wurde beantragt EnEV und liegt bei der Besichtigung  vor.
Haftungsausschluss:
das Exposé wurde anhand der Angaben und Unterlagen des Verkäufers erstellt.
Eine Gewähr über die Vollständigkeit und Richtigkeit dieser Angaben können wir somit nicht übernehmen.
Ferner bleibt uns ein Zwischenverkauf vorbehalten.
+++++++++++++++++++++++++++++++++++++++++++
Widerrufsbelehrung:
im Falle eines Zustande kommenden Vertrages haben Verbraucher das folgende Widerrufsrecht:
Sie haben das Recht, binnen vierzehn Tagen ohne Angabe von Gründen den Vertrag zu widerrufen.
Die Widerrufsfrist beträgt vierzehn Tage ab dem Tag des Vertragsabschlusses.
Um Ihr Widerrufsrecht auszuüben, müssen Sie uns mittels einer eindeutigen Erklärung (z.B. ein mit der Post versandter Brief, Telefax oder E-Mail) über Ihren Entschluss, diesen Vertrag zu widerrufen, informieren.
Der Widerruf ist zu richten an:
ENDERS IMMOBILIEN Vermietung & Verkauf
Alte Heerstrasse 39
53757 Sankt Augustin
Fax-Nr.: 02241 3982 39
info@enders-immobilien.de
Zur Wahrung der Widerrufsfrist reicht es aus, dass Sie die Mitteilung über die Ausübung des Widerrufsrechts vor Ablauf der Widerrufsfrist absenden.
Folgen des Widerrufs:
wenn Sie diesen Vertrag widerrufen, haben wir Ihnen alle Zahlungen, die wir von Ihnen erhalten haben, einschließlich der Lieferkosten (mit Ausnahme der zusätzlichen Kosten, die sich daraus ergeben, dass Sie eine andere Art der Lieferung als die von uns angebotene, günstigste Standardlieferung gewählt haben), unverzüglich und spätestens binnen vierzehn Tagen ab dem Tag zurückzuzahlen, an dem die Mitteilung über Ihren Widerruf dieses Vertrags bei uns eingegangen ist.
Für diese Rückzahlung verwenden wir dasselbe Zahlungsmittel, das Sie bei der ursprünglichen Transaktion eingesetzt haben, es sei denn, mit Ihnen wurde ausdrücklich etwas anderes vereinbart; in keinem Fall werden Ihnen wegen dieser Rückzahlung Entgelte berechnet.
Haben Sie verlangt, dass die Dienstleistungen während der Widerrufsfrist beginnen soll, so haben Sie uns einen angemessenen Betrag zu zahlen, der dem Anteil der bis zu dem Zeitpunkt, zu dem Sie uns von der Ausübung des Widerrufsrechts hinsichtlich dieses Vertrags unterrichten, bereits erbrachten Dienstleistungen im Vergleich zum Gesamtumfang der im Vertrag vorgesehenen Dienstleistungen entspricht.
+++++++++++++++++++++++++++++++++++++++++++
Muster-Widerrufsformular
Wenn Sie den Vertrag widerrufen wollen, dann füllen Sie dieses Formular aus und senden Sie es zurück:
An
ENDERS IMMOBILIEN IVD
Alte Heerstrasse 39
53757 Sankt Augustin
Fax: (0 22 41) 39 82 - 39
E-Mail: info@enders-immobilien.de
Hiermit widerrufe(n) ich/wir (*) den von mir/uns (*) abgeschlossenen Vertrag über den Kauf der folgenden Waren (*)/die Erbringung der folgenden Dienstleistung (*)
. Bestellt am (*)/erhalten am (*)
. Name des/der Verbraucher(s)
. Anschrift des/der Verbraucher(s)
. Unterschrift des/der Verbraucher(s) (nur bei
  Mitteilung auf Papier)
. Datum
_____________________________
(*) Unzutreffendes streichen+++++++
Dieses Immobilienangebot ist unter Rhein-Sieg-Kreis aufgelistet samt Kontaktangaben, Eckdaten und Bildern. SANKT AUGUSTIN HANGELAR, 4 NEUBAU Doppelhaushälften ca. 135 m² Wfl. 5-6 Zimmer, Stellplatz, Garage ist die Kopfzeile diesen Objektes. Auf der Seite St. Augustin sind einige weitere Immobilienanzeigen zu finden. Das diesem Objekt zugeordnete Bundesland ist Nordrhein-Westfalen.
Unter ENDERS IMMOBILIEN Vermietung und Verkauf Ansprechpartner Volker Enders, Alte Heerstrasse 39 in 53757 Sankt Augustin kann der Immobilienanbieter samt Kontaktanfrageformular unten kontaktiert werden.
Besucher kamen auf die Seite Häuser in St. Augustin durch folge Begriffe:
Synonyme zur Suche St. Augustin Häuser:
St. Augustin Häuser online, Haus St. Augustin, Häusermarkt St. Augustin
|   | 
| ENDERS IMMOBILIEN Vermietung und Verkauf | 
| Volker Enders | 
| Alte Heerstrasse 39 | 
| 53757 Sankt Augustin | 
| Telefon: | (0 22 41) 39 82 - 0 | 
| Telefax: | (0 22 41) 39 82 - 39 | 
| Mobil: | (0 178) 9 836 936 | 
| 
 | 
 | 
| Maklerwebsite: | |
| 
 | 
 | 
| Steuernummer: | 222/5096/0232 | 
Verbraucherinformation:
Online-Streitbeilegung gemäß Art. 14 Abs. 1 ODR-VO: Die Europäische Kommission stellt eine Plattform zur Online-Streitbeilegung (OS) bereit, die Sie hier finden: http://ec.europa.eu/consumers/odr


 
	             
	             
	             
	             
	             
	             
	             
	             
	             
	             
			