Sanierungsbedürftiges Mehrfamilienhaus mit 3 Wohneinheiten in Klingenthal! (Häuser Klingenthal)
Land:
DEU
Strasse:
Falkensteiner Straße 19
PLZ:
08248
Ort:
Klingenthal
Adresse anzeigen:
1
Kaufpreis:
65.000,00 €
Vermittl.-Provision:
3,57 %, mind. 2.975 EUR, inkl. 19 % MwSt.
Wohnfläche:
193,28 m²
Nutzfläche:
39,70 m²
Grundstücksfläche:
745,00 m²
Ihre Objektnr.:
KlFa
Objekttyp:
Mehrfamilienhaus
Heizungsart:
Zentralheizung
Befeuerung:
Gas
Bad:
Fenster
Zimmer:
9
Schlafzimmer:
6
Badezimmer:
3
Baujahr:
1900
Art:
Bedarf
Gültig bis:
2033-08-28
Endenergiebedarf:
242.00
Baujahr:
1992
Jahrgang:
2014
Gebäudeart:
wohn
Das Mehrfamilienhaus wurde lt. Energieausweis um 1900 erbaut und 1992 teilsaniert.
Das voll unterkellerte Objekt teilt sich in 3 Wohnebenen im EG, 1. OG und DG.
Die Immobilie ist voll unterkellert.
Der Spitzboden des Hauses ist über eine Auszugstreppe von der Wohneinheit im DG aus erreichbar und als Abstellfläche nutzbar.
Auf dem ca. 745 m² großen Grundstück befinden sich weitere eingeschossige Nebengebäude (Garage 16,84 m², 3 teiliger Schuppen 16,85 m²).
Garage und Carport sind nicht mehr nutzbar. Hierbei bietet sich ein Abbruch oder eine Neuerrichtung an.
Im Verkaufspreis wurde berücksichtigt, dass eine biologische Kleinkläranlage gebaut werden muss.
Das Wohnhaus mit ca. 193,28 m² Wohnfläche teilt sich wie folgt auf:
Keller:
- Heizung
- Keller 1
- Keller 2
- Keller 3
- Abstellraum
Erdgeschoss:
- Flur: 4,73 m²
- Wohnzimmer: 18,95 m²
- Schlafzimmer: 10,37 m²
- Kinderzimmer: 15,32 m²
- Küche mit Fenster: 7,41 m²
- Tageslichtbad mit Wanne: 4,96 m²
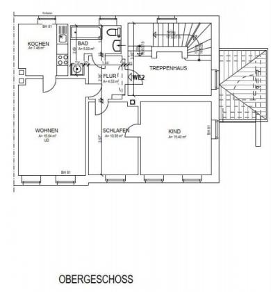
Obergeschoss:
- Flur: 4,53 m²
- Wohnzimmer: 19,04 m²
- Schlafzimmer: 10,59 m²
- Kinderzimmer: 15,40 m²
- Küche mit Fenster: 7,48 m²
- Tageslichtbad mit Wanne: 5,03 m²
Dachgeschoss:
- Flur: 12,34 m²
- Wohnzimmer: 9,17 m²
- Schlafzimmer: 19,56 m²
- Zimmer: 8,71 m²
- Küche mit Fenster: 14,93 m²
- Tageslichtbad mit Wanne: 4,76 m²
Dachboden als Abstellfläche:
(Höhe 0,88 m - max. 1,85 m)
Klingenthal liegt im Vogtland direkt an der Grenze zu Tschechien und hat ca. 8.000 Einwohner.
Durch die attraktive Lage im Mittelgebirge entwickelte sich der Tourismus seit Beginn des 20. Jahrhunderts zu einer tragenden Säule der Klingenthaler Wirtschaft.
Die Stadt selbst zeichnet sich durch ihre Nähe zum grünen Erzgebirge und den zahlreichen Freizeitmöglichkeiten aus.
Klingenthal ist bekannt für seine beeindruckende Berglandschaft und bietet sowohl im Sommer als auch im Winter zahlreiche Aktivitäten. Im Winter locken die umliegenden Berge mit gut präparierten Skipisten und Loipen, während Wanderfreunde im Sommer auf zahlreiche Wander- und Radwege zurückgreifen können.
Zahlreiche Ausflugsziele, wie Sommerrodelbahn, Heimattierpark, Freibad, Bowlingbahn und Topasfelsen Schneckenstein laden zum Entdecken und Entspannen ein. Bei schlechtem Wetter sind das Musik- und Sportmuseum sowie das Harmonikamuseum sehenswerte Ausflugsziele. Nicht zu vergessen ist die Vogtlandarena mit der Skisprung-Großschanze. Auf den Schanzenturm gelangt man mit Bahn und Lift.
Das Objekt befindet sich fußläufig nur ca. 4 Minuten von einer Bushaltestelle entfernt.
Die bekannte Skisprungschanze erreicht man in ca. 3 km.
In unmittelbarer Nähe befindet sich ein großer Wald mit zahlreichen Möglichkeiten zum Wandern und Erholen.
Zum Tierpark Klingenthal gelangt man bequem in 5 Minuten mit dem Auto.
Die Grenze zu Tschechien ist nur 3 km vom Objekt entfernt.
Das Mehrfamilienhaus befindet sich in einem ruhigen Wohngebiet, das gleichzeitig eine sehr gute Anbindung an das Zentrum von Klingenthal bietet. Das Stadtzentrum, das nur wenige Gehminuten entfernt ist, bietet eine hervorragende Infrastruktur mit zahlreichen Einkaufsmöglichkeiten, Restaurants, Banken und Dienstleistern. Schulen, Kindergärten und Ärzte sind ebenfalls schnell zu erreichen, was die Lage besonders familienfreundlich macht.
Bitte nutzen Sie das Kontaktformular, um uns Ihre Fragen bzw. Ihren Besichtigungswunsch mitzuteilen. Wir nehmen schnellstmöglich den Kontakt zu Ihnen auf bzw. senden Ihnen gern ergänzende Unterlagen entsprechend Ihrer Anfrage zu.
Alle Angaben beruhen auf Aussagen der Eigentümer bzw. basieren auf den uns bis dato vorliegenden Unterlagen und erfolgen ohne Gewähr. Irrtum und zwischenzeitlicher Verkauf bleiben vorbehalten. Exposé © 2025, Immobilienbüro Kühn
Falls diese Immobilie Ihnen nicht passt, finden Sie unter Vogtlandkreis mehr Immobilien, Wohnungen und Häuser. Sanierungsbedürftiges Mehrfamilienhaus mit 3 Wohneinheiten in Klingenthal! ist die Kopfzeile diesen Objektes. Dieses Immobilien-Exposé ist unter der Kategorie Klingenthal aufgeführt. Das Auffinden von Immobilien erleichtert die Bundeslandsuche nach Objekten unter Sachsen.
Der Anbieter Immobilienbüro Kühn GmbH & Co. KG Ansprechpartner Wolfgang Kühn, Jahnstraße 17 in 08058 Zwickau hat dieses Objekt inseriert.
Besucher kamen auf die Seite Häuser in Klingenthal durch folge Begriffe:
Synonyme zur Suche Klingenthal Häuser:
Klingenthal Häuser online, Haus Klingenthal, Häusermarkt Klingenthal
Immobilienbüro Kühn GmbH & Co. KG |
|
Wolfgang Kühn |
|
Jahnstraße 17 |
|
08058 Zwickau |
|
Telefon: |
0375282003 |
|
|
|
|
Maklerwebsite: |
|
|
|
|
|
USt.-ID: |
DE152847296 |
|
Handelsregister-Nr: |
HRA 10300 AG Chemnitz |
|
Aufsichtsbehörde: |
Berufsaufsichtsbehörde Stadt Zwickau |
Verbraucherinformation:
Online-Streitbeilegung gemäß Art. 14 Abs. 1 ODR-VO: Die Europäische Kommission stellt eine Plattform zur Online-Streitbeilegung (OS) bereit, die Sie hier finden: https://ec.europa.eu/consumers/odr


