Saniertes Wohnhaus mit 5 Zimmer, Vollkeller, 2 Bäder, Garage, Nebengelass & viel Land, im LK Rostock (Häuser Lalendorf)
Land:
DEU
PLZ:
18279
Ort:
Lalendorf
Kaufpreis:
239.000,00 €
Vermittl.-Provision:
3%
Wohnfläche:
141,00 m²
Nutzfläche:
294,00 m²
Grundstücksfläche:
2.675,00 m²
Kellerfläche:
63,00 m²
Ihre Objektnr.:
5787#KRCoH
Objekttyp:
Doppelhaushaelfte
Heizungsart:
Zentralheizung
Befeuerung:
Öl
Stellplatz-Art:
Garage
Boden:
Teppich
Bad:
Fenster
Küche:
EBK
Stellplätze (Anz.):
4.0
Garagen (Anz.):
1
Zimmer:
5
Schlafzimmer:
3
Badezimmer:
2
Baujahr:
1977
vermietet:
1
denkmalgeschuetzt:
1
Kamin
Sauna
Swimmingpool
Art:
Bedarf
Gültig bis:
07.10.2035
Endenergiebedarf:
148.99
EP inkl. Warmwasser:
ja
Aus Diskretionsgründen handelt es sich bei dem öffentlichen Exposé in den Portalen um eine Kurzversion. Die ausführliche Version mit allen Unterlagen, Bildern, Grundrissen und einer 360°-Objektbesichtigung erhalten Sie nach einer qualifizierten Anfrage über das jeweilige Kontaktformular per E-Mail.
Willkommen in einem Zuhause, das Handwerk, Herz und Landlust verbindet. Das massiv gebaute Einfamilienhaus wurde vom Eigentümer (Handwerksmeister) laufend gepflegt und sinnvoll modernisiert und präsentiert sich in sehr gutem, fortlaufend verbessertem Zustand. Der 2020 genehmigt angebaute Wintergarten (ca. 15 m²) erweitert den Lebensmittelpunkt zum Hof; darunter ein praktischer Kriechkeller für Vorräte.
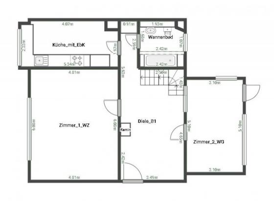
Wohnfläche aktuell ca. 141 m² (nach WoFlV inkl. 25 % Terrassenanteil); vermasste Photogrammmetrie-Grundrisse sowie eine virtuelle 360°-Tour liegen vor. Das Erdgeschoss bietet einen freundlichen Eingangsbereich, ein großes Wohn-/Esszimmer, die Küche mit Einbauküche (verbleibt), ein Wannenbad und den Wintergarten. Im Dachgeschoss stehen drei gut geschnittene Zimmer und ein Duschbad bereit. Das Kellergeschoss (Nutzfläche ca. 63 m²) dient als Lager-/Werkstattbereich; ein drittes Bad ist vorhanden (derzeit ungenutzt).
Zum Hof gehören Nebengebäude mit zusammen ca. 80 m² Nutzfläche – u. a. mit großer Kühlzelle (ca. 3 Jahre alt, verbleibt). Tierhaltung ist möglich; Hühner, Enten und Schweine wurden hier bereits gehalten. Hofseitig gibt es eine Terrasse ca. 4,00 × 3,20 m; die Außentreppe zum Garten wird aktuell neu gefliest. Obstbäume und Beete runden das ländliche Bild ab.
Grundstück & Flurstücke (Gemarkung Vogelsang, Verkauf im Paket):
• Flst. 94 – ca. 698 m² (davon Bauland ca. 501 m², Wiese ca. 197 m²)
• Flst. 107/2 – ca. 289 m² (Wiese/Grünland)
• Flst. 107/3 – ca. 1.688 m² (Wiese/Grünland)
Gesamt: ca. 2.675 m².
Die Eigentümer planen einen Wegzug aus Deutschland – Ihre Chance, ein stimmiges Ensemble in Randlage mit Feldblick zu übernehmen und nach Ihren Vorstellungen weiter zu veredeln.
Massiver Baukörper mit Tondachziegeln; Fassade und Kelleraußenwände gedämmt. Meranti-Holzfenster. Beheizung über Öl-Zentralheizung (Baujahr 1991); zusätzlich eine Küchenhexe/Beistellherd (2023) am Kaminzug im EG – Kochen und behagliche Zusatzwärme in einem.
Fußbodenheizung in beiden Bädern (EG & DG) sowie im Wintergarten. Einbauküche verbleibt. Sanitär: Wannenbad im EG, Duschbad im DG; im Keller weiteres Bad (derzeit nicht genutzt).
Außen: Terrasse am Haus mit ca. 12,8 m² Grundfläche (der 25 %-Anteil ist in der Wohnfläche berücksichtigt). Außentreppe in den Garten wird neu gefliest.
Nebengebäude mit flexiblen Nutzflächen (zus. ca. 80 m²), u. a. große Kühlzelle (~3 Jahre) – ideal für Selbstversorger/Manufaktur/Hobby. Keller mit ca. 63 m² Nutzfläche für Lager/Technik/Werkstatt. Tierhaltung zulässig (bisher Hühner/Enten/Schweine).
Erschließung & Medien: Hausgrundstück voll erschlossen. Glasfaser – im Keller anliegend. Abwasser und Regenwasser liegen in der Straße. Gartenwasserzähler vorhanden (Außenwasser ohne Abwassergebühr). Brunnen/Zisterne nicht vorhanden.
Virtuelle 360°-Besichtigung und Photogrammetrie-Grundrisse verfügbar.
Ruhige Randlage mit freiem Feldblick in der Gemeinde Lalendorf (OT Vogelsang) – ideal für alle, die viel Grün, Platz ums Haus und kurze Wege schätzen.
Der Hof liegt angenehm zurückgesetzt; die Nachbarschaft ist geprägt von Einfamilienhäusern und landwirtschaftlichen Anwesen.
Der Alltag gelingt unkompliziert: Einkauf, Ärzte, Schulen/Kitas sind in Lalendorf bzw. Güstrow/Teterow erreichbar.
Freizeit beginnt ab Haustür – Garten, Tierhaltung, Rad- und Spazierwege, weite Mecklenburger Landschaft. Die verkehrliche Anbindung ist sehr gut (Autobahn, Bahn, ÖPNV, Flughafen Rostock-Laage); konkrete Entfernungen/Dauern finden Sie in der Übersicht am Exposé-Kopf.
Fazit: Ein Ensemble, das modernen Wohnkomfort, solide Bauqualität und das gute Gefühl von Freiheit verbindet – perfekt für Familien, Selbstversorger, Handwerker oder alle, die Platz für Ideen suchen.
Verkauf als Paket der genannten Flurstücke (Gesamtfläche ca. 2.675 m²). Übergabe/Modalitäten klären wir gemeinsam vor Ort.
Wenn du und deine Familie gerne Freunde von diesem Haus werden möchtet, dann schreibt uns doch bitte bald. Bitte vergewissert Euch doch auch zuvor, ob die Bank erlaubt, das liebe Haus in Besitz zu nehmen.
*** Wir freuen uns schon sehr auf Euch***
Eine solide Finanzierung ist der Schlüssel für eine entspannte und sichere Immobilienentscheidung. Deshalb empfehlen wir, bereits frühzeitig mit einem erfahrenen Finanzierungspartner zusammenzuarbeiten. Dieser Service ist für Sie vollkommen kostenlos. Sie müssen sich nicht selbst durch zahllose Angebote kämpfen – und können dabei gleichzeitig unnötige Schufa-Anfrage-Einträge vermeiden.
Gern unterstützen wir Sie hier mit unserem Finanzierungspartner:
Herr Robert Schmidt:
📞 Mobil: 0173 6497154
✉️ E-Mail: robertschmidt@buechel24.de
Sollte diese Immobilie nicht die richtige sein, finden Sie unter Landkreis Rostock weitere Objekte. Saniertes Wohnhaus mit 5 Zimmer, Vollkeller, 2 Bäder, Garage, Nebengelass & viel Land, im LK Rostock ist die Kopfzeile diesen Objektes. Dieses Exposé ist der Kategorie Lalendorf zugeordnet. Das dieser Immobilie zugeordnete Bundes-Land ist Mecklenburg-Vorpommern.
Der Anbieter Lisa Büchel - Immobilien Ansprechpartner Lisa Büchel, Oldendorfer Straße, 3 in 18147 Rostock hat dieses Objekt inseriert.
Besucher kamen auf die Seite Häuser in Lalendorf durch folge Begriffe:
Synonyme zur Suche Lalendorf Häuser:
Lalendorf Häuser online, Haus Lalendorf, Häusermarkt Lalendorf
|
Lisa Büchel - Immobilien |
|
Lisa Büchel |
|
Oldendorfer Straße, 3 |
|
18147 Rostock |
|
Telefon: |
+4938177081771 |
|
|
|
|
Maklerwebsite: |
|
|
|
|
|
Handelsregister: |
keine Eintragung |
|
Handelsregister-Nr: |
keine Eintragung |
Verbraucherinformation:
Büchel - Immobilien Oldendorfer Str. 3 18147 Rostock Fax: 032 221568849 E-Mail: kontakt@buechel24.de Lisa Büchel ~ IMMOBILIENMAKLER IN ROSTOCK, MV Oldendorfer Str. 3, 18147 Rostock Telefon: +49 (0) 381 / 77081771 Fax: +49 (0) 32 / 221568849 E-Mail: kontakt@buechel24.de Webseite: https://www.immobilien-rostock-mv.de/ Umsatzsteuernummer: DE294077037 Geschäftsführer: Lisa Büchel Gewerbeerlaubnis nach 34 c: Zuständige Aufsichtsbehörde: Ordnungsamt Rostock, Charles-Darwin-Ring 6, 18059 Rostock Zuständige Kammer: Industrie- und Handelskammer zu Rostock, Ernst-Barlach-Str. 1-3, 18055 Rostock Online-Streitbeilegung gemäß Art. 14 Abs. 1 ODR-VO: Die Europäische Kommission stellt eine Plattform zur Online-Streitbeilegung (OS) bereit, die Sie hier finden: http://ec.europa.eu/consumers/odr Der Anbieter nimmt nicht an Streitbeilegungsverfahren vor einer Verbraucherschlichtungsstelle teil. Hinweis für Abmahnversuche: Keine Abmahnung ohne vorherigen Kontakt! Sollte der Inhalt oder die Aufmachung dieser Seiten Rechte Dritter/Fremder oder gesetzliche Bestimmungen verletzen, so bitten wir um eine entsprechende Nachricht ohne Kostennote. Die Beseitigung einer möglicherweise von diesen Seiten ausgehenden Schutzrecht-Verletzung durch Schutzrecht-Inhaber selbst darf nicht ohne unsere Zustimmung stattfinden. Wir garantieren, dass die zu Recht beanstandeten Passagen unverzüglich entfernt werden, ohne dass von Ihrer Seite die Einschaltung eines Rechtsbeistandes erforderlich ist. Dennoch von Ihnen ohne vorherige Kontaktaufnahme ausgelöste Kosten werden wir voll umfänglich zurückweisen und gegebenenfalls Gegenklage wegen Verletzung vorgenannter Bestimmungen einreichen. Vielen Dank für Ihr Verständnis.


