Energieeffizient & komfortabel wohnen - 3 Zimmer EG-Neubau mit Terrasse & Stellplatz (Wohnungen Uelsen)
Land:
DEU
PLZ:
49843
Ort:
Uelsen
Kaufpreis:
377.500,00 €
Wohnfläche:
96,91 m²
Ihre Objektnr.:
1049-103-3
Objekttyp:
Erdgeschoss
Fahrstuhl:
Personen
Befeuerung:
Erdwärme
Zustand:
projektiert
Zimmer:
3
Baujahr:
2026
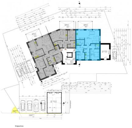
Diese hochwertige Erdgeschosswohnung entsteht in einem modernen 6-Parteienhaus und überzeugt mit einer großzügigen Raumaufteilung, moderner Ausstattung und energieeffizienter Bauweise.
Auf ca. 97 m² Wohnfläche bietet die Wohnung alles, was zeitgemäßes Wohnen ausmacht: Ein großzügiger Wohn- und Essbereich mit offener Küche bildet das Zentrum des Zuhauses und ermöglicht den direkten Zugang zur Terrasse – ideal für gemütliche Stunden im Freien. Zwei gut geschnittene Schlafzimmer bieten ausreichend Platz für Paare, kleine Familien oder auch als Homeoffice-Lösung. Ein Tageslichtbad mit ebenerdiger Dusche, ein separates Gäste-WC sowie ein praktischer Abstellraum und ein einladender Flur runden das Raumangebot ab.
Energieeffizient und zukunftsorientiert:
Das Gebäude wird nach den Vorgaben des Gebäudeenergiegesetzes (GEG) errichtet. Eine moderne Wärmepumpe in Kombination mit einer zentralen Lüftungsanlage mit Wärmerückgewinnung sorgt für niedrige Energiekosten und hohen Wohnkomfort.
Ein fest zugeordneter PKW-Stellplatz direkt am Haus ist im Angebot enthalten.
Die perfekte Wohnung für alle, die Wert auf Qualität, Komfort und Nachhaltigkeit legen.
Fußbodenheizung mit Einzelraumregelung
Luft-Wasser-Wärmepumpe
Kunststofffenster mit 3-fach-Verglasung & elektrischen Rollläden
Hochwertige Vinyl- und Fliesenböden
Moderne Sanitärausstattung von Sanibel
Großzügige Terrasse mit Terrassenplatten in Anthrazit
Abstellraum in der Wohnung & zusätzlicher Außenabstellraum
Eigenem Kfz-Stellplatz
Glasfaseranschluss vorbereitet
Uelsen, ein Luftkurort liegt im Landkreis Grafschaft Bentheim. Direkt an der niederländischen Landesgrenze. Zur Samtgemeinde Uelsen gehören die Mitgliedsgemeinden Uelsen, Getelo, Gölenkamp, Halle, Itterbeck, Wilsum und Wielen. Die Samtgemeinde hat eine Fläche von ca.19,4 km² und eine Einwohnerzahl von 11.295 Einwohnern.
Die Dinge des täglichen Bedarfs können im Ort erledigt werden. Zahlreiche Einkaufsmöglichkeiten, Gastronomie, Banken, Behörden und die ärztliche Versorgung sorgen für ein angenehmes Dorffeeling. Vom Kindergarten bis zum Gymnasium finden Sie alles direkt im Ort.
Uelsen ist ein anerkannter Erholungsort und weit über die Grenzen der Grafschaft Bentheim als Urlaubsort bekannt. Weitläufige Rad- und Wanderwege bis in die benachbarte Niederlande sorgen für Entspannung und Erholung.
Durch die gute Verkehrsanbindung zur B 403 und A31 haben sich viele mittelständische Unternehmen in den Gewerbegebieten von Uelsen niedergelassen.
Widerrufsbelehrung für Verbraucher:
Sie haben das Recht, binnen vierzehn Tagen ohne Angabe von Gründen diesen Vertrag zu widerrufen. Die Widerrufsfrist beträgt vierzehn Tage ab dem Tag des Vertragsabschlusses.
Um Ihr Widerrufsrecht auszuüben, müssen Sie uns:
RE/MAX Immobilien Grafschaft Bentheim, Veldhausener Str. 34, 49828 Neuenhaus
Tel. 05941 – 98990 0, Fax. 05941 – 98990 29, E-Mail: info@remax-grafschaft.de
mittels einer eindeutigen Erklärung (z.B. ein mit der Post versandter Brief, Telefax oder E-Mail) über Ihren Entschluss, diesen Vertrag zu widerrufen, informieren. Zur Wahrung der Widerrufsfrist reicht es aus, dass Sie die Mitteilung über die Ausübung des Widerrufsrechts vor Ablauf der Widerrufsfrist absenden.
Folgen des Widerrufs:
Wenn Sie diesen Vertrag widerrufen, haben wir Ihnen alle Zahlungen, die wir von Ihnen erhalten haben, unverzüglich und spätestens binnen vierzehn Tagen ab dem Tag zurückzuzahlen, an dem die Mitteilung über Ihren Widerruf dieses Vertrags bei uns eingegangen ist. Für diese Rückzahlung verwenden wir dasselbe Zahlungsmittel, das Sie bei der ursprünglichen Transaktion eingesetzt haben, es sei denn, mit Ihnen wurde ausdrücklich etwas anderes vereinbart; in keinem Fall werden Ihnen wegen dieser Rückzahlung Entgelte berechnet. Haben Sie verlangt, dass die Dienstleistungen während der Widerrufsfrist beginnen soll, so haben Sie uns einen angemessenen Betrag zu zahlen, der dem Anteil der bis zu dem Zeitpunkt, zu dem Sie uns von der Ausübung des Widerrufsrechts hinsichtlich dieses Vertrags unterrichten, bereits erbrachten Dienstleistungen im Vergleich zum Gesamtumfang der in Vertrag vorgesehenen Dienstleistungen entspricht.
Käuferprovision:
Die auf Seite 2 genannte Käuferprovision (inkl. gesetzlicher Umsatzsteuer, derzeit 19%) ist vom Käufer zu zahlen. Verdient und fällig wird diese erst mit notarieller Beurkundung. Die Berechnungsgrundlage ist der notariell festgeschriebene Kaufpreis.
Sämtliche Angebote sind freibleibend und basieren auf Informationen, die der Eigentümer erteilt hat; eine Haftung für deren Richtigkeit und Vollständigkeit kann deshalb nicht übernommen werden. Zwischenverkauf bzw. -vermietung bleibt dem Eigentümer vorbehalten.
Landkreis Grafschaft Bentheim ist die Oberkategorie in der diese Immobilie gelistet wird samt Immobiliensuche. Die Überschrift für diese Immobilie ist Energieeffizient & komfortabel wohnen - 3 Zimmer EG-Neubau mit Terrasse & Stellplatz. Dieses Immobilien-Exposé ist unter der Kategorie Uelsen aufgeführt. Niedersachsen lautet die geografische Oberkategorie zu dem vorliegenden Angebot. Der Anbieter RE/MAX Grafschaft Bentheim - Frank grote Hölmann eK Ansprechpartner Frank grote Hölmann, Veldhausener Straße 34 in 49828 Neuenhaus ist verantwortlich für die Veröffentlichung der Anzeige.
Besucher kamen auf die Seite Wohnungen in Uelsen durch folge Begriffe:
Synonyme zur Suche Uelsen Wohnungen:
Wohnungen Uelsen, Wohnung Uelsen, Uelsen Wohnung online
|
RE/MAX Grafschaft Bentheim - Frank grote Hölmann eK |
|
Frank grote Hölmann |
|
Veldhausener Straße 34 |
|
49828 Neuenhaus |
|
Telefon: |
0 59 41 / 98 99 00 |
|
Telefax: |
+49 (0) 59 41 / 98 99 029 |
|
Mobil: |
0174 303 66 22 |
|
|
|
|
Maklerwebsite: |
|
|
|
|
|
USt.-ID: |
DE229748504 |
|
Handelsregister: |
Osnabrück |
|
Handelsregister-Nr: |
HRA-Nr.: 203186 |
|
Aufsichtsbehörde: |
Landkreis Grafschaft Bentheim |
Verbraucherinformation:
Online-Streitbeilegung gemäß Art. 14 Abs. 1 ODR-VO: Die Europäische Kommission stellt eine Plattform zur Online-Streitbeilegung (OS) bereit, die Sie hier finden: http://ec.europa.eu/consumers/odr


