repräsentative Büroräume in ländlicher Gegend - Langenau (Gewerbeimmobilien Brand-Erbisdorf)
Land:
DEU
Strasse:
Hofstraße 12
PLZ:
09618
Ort:
Brand-Erbisdorf
Adresse anzeigen:
1
Kaltmiete:
1.300,00 €
Warmmiete:
1.695,00 €
Nebenkosten:
370,00 €
Stellplatz (Miete):
25,00 €
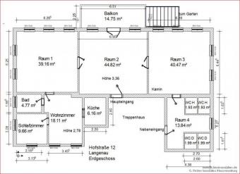
Gesamtfläche:
191,00 m²
Ihre Objektnr.:
186
Objekttyp:
Buerohaus
Heizungsart:
Fussboden
Befeuerung:
Solar
Stellplatz-Art:
Freiplatz
Zustand:
Teil- / Vollrenoviert
Stellplätze (Anz.):
1
Zimmer:
6
Badezimmer:
1
Kamin
Gartennutzung
Kabel/Sat/TV
Wasch/Trockenraum
Arbeiten in ruhiger Lage wie in einem Schloss.
Diese repräsentativen Büroräume stehen zur sofortigen Anmietung.
Hochwertig, kernsanierte Anlage die keine Wünsche offen lässt.
Drei große Büroräume. Ein Raum mit Kamin und Zugang zum großen Balkon.
Der Balkon führt wiederum zu den Kfz-Stellplätzen.
In allen Räumen wurde Laminatboden verlegt.
Ein großer Raum muss noch renoviert werden. Hier können Ihre Wünsche berücksichtigt werden.
Eine zuletzt als 2-Zimmer Wohnung genutzte Flächen können weiterhin zu Wohnzwecken verwandt wie auch zu Büroräumen umgewandelt werden.
Es stehen je 2 Herren-WC und 2 Damen-WC zur Verfügung
Eine Solaranlage zur Warmwasserbereitung ist unterstützend zur Warmwasseraufbereitung installiert und spart somit Betriebskosten.
Langenau ist ein Ortsteil der Großen Kreisstadt Brand-Erbisdorf in Sachsen.
In Brand-Erbisdorf sind alle Schulen vertreten, Grundschule, Oberschule und Gymnasium.
Gute Busverbindungen nach – Brand-Erbisdorf – Freiberg oder Richtung Eppendorf / Chemnitz.
10 km bis zur großen Kreisstadt Freiberg, 32 km bis Chemnitz und 47 km bis Dresden.
Landkreis Mittelsachsen ist die Oberkategorie in der diese Immobilie gelistet wird samt Immobiliensuche. Die Überschrift zu diesem Immobilien-Objekt ist repräsentative Büroräume in ländlicher Gegend - Langenau. Dieses Exposé ist der Kategorie Brand-Erbisdorf zugeordnet. Die Immobiliensuche nach günstigen Immobilien führt viele weitere Objekte unter Sachsen.
Um mit dem Anbieter Kontakt aufzunehmen wenden Sie sich bitte an: G. Richter Immobilien / Imseri Facility Management Ansprechpartner Uwe Richter, Leipziger Straße in 09599 Freiberg.
Besucher kamen auf die Seite Gewerbeimmobilien in Brand-Erbisdorf durch folge Begriffe:
Synonyme zur Suche Brand-Erbisdorf Gewerbeimmobilien:
Brand-Erbisdorf Immobilien für Gewerbe, Gewerbeimmobilie Brand-Erbisdorf, Gewerbe-Immobilien Brand-Erbisdorf
|
G. Richter Immobilien / Imseri Facility Management |
|
Uwe Richter |
|
Leipziger Straße |
|
09599 Freiberg |
|
Telefon: |
03731-39800 |
|
Telefax: |
03731-398020 |
|
Mobil: |
0176-10085374 |
|
|
|
|
Maklerwebsite: |
|
|
|
|
|
Steuernummer: |
220/262/01946 |
|
Handelsregister: |
Chemnitz |
|
Handelsregister-Nr: |
HRA 2968 Chemnitz |
|
Aufsichtsbehörde: |
Freiberg |
Verbraucherinformation:
Online-Streitbeilegung gemäß Art. 14 Abs. 1 ODR-VO: Die Europäische Kommission stellt eine Plattform zur Online-Streitbeilegung (OS) bereit, die Sie hier finden: http://ec.europa.eu/consumers/odr


