! ! Preissenkung ! ! Zweifamilienhaus in ländlicher Gegend mit viel Platz für Tierhaltung (Häuser Klipphausen)
Land:
DEU
PLZ:
01665
Ort:
Klipphausen
Kaufpreis:
245.000,00 €
Vermittl.-Provision:
3,8%
Wohnfläche:
260,00 m²
Grundstücksfläche:
3.913,00 m²
Ihre Objektnr.:
2383
Objekttyp:
Mehrfamilienhaus
Heizungsart:
Zentralheizung
Befeuerung:
Öl
Stellplatz-Art:
Garage
Zustand:
gepflegt
Küche:
EBK
Garagen (Anz.):
2
Zimmer:
7
Baujahr:
1910
vermietet:
1
Das Mehrfamilienhaus zeichnet sich durch seine vielseitigen Eigenschaften aus, die sowohl historische Elemente als auch moderne Annehmlichkeiten umfassen. Hier ist eine detaillierte Beschreibung:
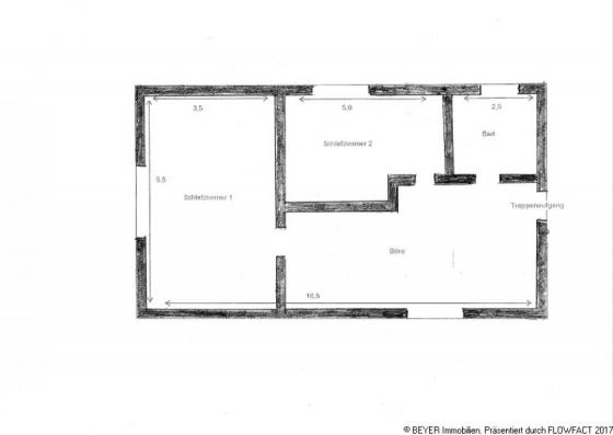
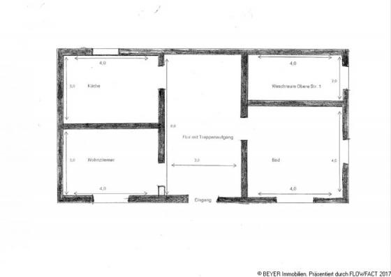
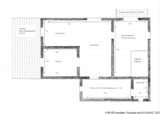
Das zweistöckige Mehrfamilienhaus beherbergt zwei großzügige Wohneinheiten, von denen eine derzeit vermietet ist. Die vermietete Einheit erstreckt sich über ca. 132 Quadratmeter Wohnfläche und generiert eine monatliche Mieteinnahme von 550 Euro kalt. Die Wohnung zeichnet sich durch eine Altbaudeckenkonstruktion aus, die eine Deckenhöhe von etwa 2 Metern aufweist, was dem Raum einen charmanten historischen Charakter verleiht.
Das Gebäude wurde im Jahr 2000 umfassend saniert und durch Umbauarbeiten modernisiert. Diese Maßnahmen haben dazu beigetragen, die Wohnqualität zu verbessern und die Infrastruktur auf den neuesten Stand zu bringen. Glasfaseranschluss wurde bereits im Haus verlegt, um den Bewohnern schnellen Internetzugang zu ermöglichen.
Das Mehrfamilienhaus verfügt über einen Keller, der zusätzlichen Stauraum bietet.
Das Grundstück umfasst insgesamt 3913 Quadratmeter, wovon 1285 Quadratmeter als Landwirtschaftsfläche genutzt werden. Zusätzlich wurde eine Biokläranlage installiert, um eine umweltfreundliche Abwasserbehandlung zu gewährleisten.
Ein weiteres interessantes Detail ist die Verpachtung einer Wiese auf dem Grundstück. Diese Fläche trägt zur Vielseitigkeit des Anwesens bei und bietet möglicherweise landwirtschaftliche oder ökologische Nutzungsmöglichkeiten.
Insgesamt präsentiert sich das Mehrfamilienhaus als eine gelungene Kombination aus historischem Charme und modernem Wohnkomfort, eingebettet in ein großzügiges Grundstück mit verschiedenen Nutzungsmöglichkeiten.
Grundstück teil sich auf in:
- Landwirtschafts-, Verkehrs-, Wasserfläche 1.285m²
- Gebäude- und Freifläche, Landwirtschaftsfläche 2.628m²
gesamt: 3.912m²
Haus gliedert sich in 2 Wohneinheiten zu jeweils etwa 130m² Wohnfläche
Das Mehrfamilienhaus und Grundstück liegt in einer ruhigen Seitenstraße in einem Ortsteil der Gemeinde Klipphausen. Die Umgebung ist geprägt durch die Bebauung mit Einfamilienhäusern.
Die Autobahnanschlussstelle Dresden–Wilsdruff der Autobahn A 4 ist 10 Minuten entfernt; der Flughafen von Dresden ist in ca. 25 Minuten erreichbar. Bis in die Dresdner Innenstadt sind es ca. 30 Minuten mit dem Auto.
HINWEIS:
Der Eigentümer hat dem Büro Beyer Immobilien die Immobilie zur Vermarktung an die Hand gegeben. Auf Wunsch des Eigentümers und aus formellen Gründen bitten wir ausdrücklich von Direktkontakten abzusehen und Besichtigungstermine sowie Informationsgespräche ausschließlich über unser Büro zu vereinbaren.
Unser Exposé ist streng vertraulich zu behandeln. Eine Weitergabe dieses Angebotes, einschließlich aller Unterlagen und Angaben an Dritte, ist nur mit ausdrücklicher Genehmigung durch das Büro Beyer Immobilien zulässig.
Jegliche unbefugte Weitergabe unseres Vermietungs- oder Verkaufsangebotes an Dritte verpflichtet zum
Schadenersatz in Höhe der vollen Courtage.
Bitte beachten Sie, dass die von uns genannten Informationen und Angaben zum Objekt ausdrücklich unverbindlich und nur zur Vorabinformation bestimmt sind. Eine Haftung für die Richtigkeit oder Vollständigkeit dieser Objektangaben übernehmen wir daher nicht.
Alle Immobilienangebote sind freibleibend und vorbehaltlich Irrtümer, Zwischenverkauf und
Zwischenvermietung oder sonstiger Zwischenverwertung.
GELDWÄSCHE: Als Immobilienmaklerunternehmen ist die Beyer Immobilien nach § 2 Abs. 1 Nr.14 und § 11 Abs. 1,2 Geldwäschegesetz (GwG) dazu verpflichtet, bei der Begründung einer Geschäftsbeziehung die Identität des Vertragspartners festzustellen und zu überprüfen, sobald ein ernsthaftes Interesse an der Durchführung des Immobilienkaufvertrages besteht. Hierzu ist es erforderlich, dass wir nach § 11 Abs. 4 GwG die relevanten Daten Ihres Personalausweises festhalten. Bei einer juristischen Person benötigen wir eine Kopie des Handelsregisterauszugs, aus welchem der wirtschaftlich Berechtigte hervorgeht. Das Geldwäschegesetz sieht vor, das der Makler die Unterlagen fünf Jahre aufbewahren muss. Als unser Vertragspartner haben Sie auch eine Mitwirkungspflicht nach § 11 Abs. 6 GwG.
UNSER SERVICE FÜR SIE ALS EIGENTÜMER:
Sie möchten den Verkehrswert Ihres Grundstückes wissen oder Ihre Immobilie verkaufen?
Mit 30-jähriger Erfahrung sind wir erfolgreich im Verkauf (Vermietung) und Vermarktung von Immobilien in Dresden, Langebrück und Umgebung sowie auch die Standorte Ihrer Immoblien.
Falls diese Immobilie Ihnen nicht passt, finden Sie unter Landkreis Meißen mehr Immobilien, Wohnungen und Häuser. ! ! Preissenkung ! ! Zweifamilienhaus in ländlicher Gegend mit viel Platz für Tierhaltung ist die Kopfzeile diesen Objektes. Dieses Immobilien-Exposé ist unter der Kategorie Klipphausen aufgeführt. Das Auffinden von Immobilien erleichtert die Bundeslandsuche nach Objekten unter Sachsen.
Der Anbieter BEYER Immobilien Dresden Ansprechpartner René Sodeik, Bruhmstr. in 01465 Dresden-Langebrück hat dieses Objekt inseriert.
Besucher kamen auf die Seite Häuser in Klipphausen durch folge Begriffe:
Synonyme zur Suche Klipphausen Häuser:
Klipphausen Häuser online, Haus Klipphausen, Häusermarkt Klipphausen
BEYER Immobilien Dresden |
|
René Sodeik |
|
Bruhmstr. |
|
01465 Dresden-Langebrück |
|
Telefon: |
035201/70446 |
|
Telefax: |
035201/70131 |
|
|
|
|
Maklerwebsite: |
|
|
|
|
|
Aufsichtsbehörde: |
Gewerbeerlaubnis nach § 34c GewO durch die Stadt Dresden, Ordnu |
Verbraucherinformation:
Online-Streitbeilegung gemäß Art. 14 Abs. 1 ODR-VO: Die Europäische Kommission stellt eine Plattform zur Online-Streitbeilegung (OS) bereit, die Sie hier finden: http://ec.europa.eu/consumers/odr


