!!Preissenkung !! Gewerbeobjekt für Büro oder Praxis in Airportnähe zu verkaufen (Gewerbeimmobilien Dresden)
Land:
DEU
PLZ:
01108
Ort:
Dresden
Kaufpreis:
580.000,00 €
Vermittl.-Provision:
7,14%
Nutzfläche:
49,00 m²
Gesamtfläche:
375,00 m²
Grundstücksfläche:
1.410,00 m²
vermietbare Fläche:
375,00 m²
Ihre Objektnr.:
2389
Heizungsart:
Zentralheizung
Befeuerung:
Gas
Baujahr:
1995
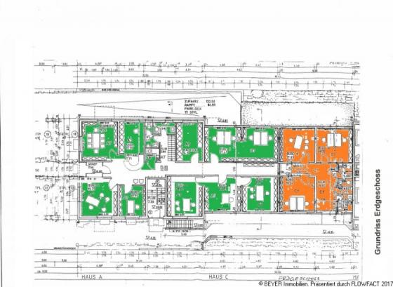
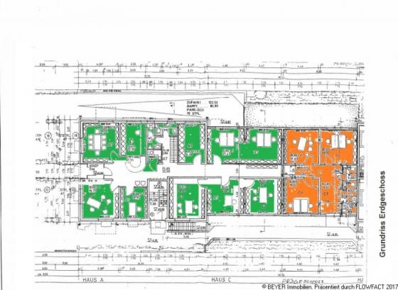
Im Objekt befinden sich insgesamt 16 Wohneinheiten und 2 Gewerbeeinheiten sowie 17 Tiefgaragenstellplätze. Beide Gewerbeeinheiten wurden
baulich miteinander verbunden. Ein gesonderter Zugang zur Einheit C1 wäre möglicherweise umsetzbar. Laut Unterlagen gehören 287,22 m² zur Gewerbeeinheit A7 sowie 88,62 m² zur Gewerbeeinheit C1. Damit ergibt sich folgende Gesamtfläche: 375,84 m².
Zwei getrennte Sanitäranlagen / Teeküchen sind vorhanden, so kann A7 und C1 voneinander separat betrieben werden beziehungsweise vermietet werden.
Im Kellergeschoss befinden sich weitere Räume, die zur Gewerbeeinheit A7 dazu gehören, wie das Archiv, ein Flur und ein Sozialraum. Alle Räume ergeben dann eine Nutzfläche von ca. 49 m².
5 Stellplätze auf Straßenniveau vor dem Haus und 1 Tiefgaragenstellplatz gehören auch zur Gewerbeeinheit A7 und C1.
Das Objekt befindet sich außerhalb der Einflugschneise des Flugverkehrs. Abhängig von den Wetterbedingungen kann es zu Fluggeräuschen kommt.
Vorstellbar wäre für die gesamte Einheit eine Nutzung als Bürofläche, Atelier, Praxis oder anderes nichtstörendes Gewerbe etc.
Das Flurstück mit 574 m² und 836 m² ist mit einem dreigeschossigen Wohn- und
Geschäftshaus mit ausgebautem Dachgeschoss bebaut. Dabei besteht der Komplex aus den Gebäudeteilen A und B, die über den eingeschossigen Bürotrakt verbunden sind. Das Gebäude wurde 1995/1996 errichtet. Das Gebäude ist voll unterkellert. Unter dem Bürotrakt befindet sich die Tiefgarage.
Es bestände auch die Möglichkeit, nach Rücksprache mit dem Bauamt, aus der Büroeinheit 2 abgeschlossene Wohneinheiten zu realisieren, hierzu ist es aber Notwendig eine Nutzungsänderung zu beantragen. Die Räume sind im Objekt alle Ebenerdig zugänglich bis auf die Räume im Kellergeschoss.
Die Räume im Objekt sind Ebenerdig zu erreichen.
Das Grundstück befindet sich innerhalb eines im Zusammenhang bebauten Ortsteiles und ist mit einem Wohn- und Geschäftshaus bebaut, welches in 16 Wohneinheiten und 2 Gewerbeeinheiten aufgeteilt wurde. Zudem befinden sich noch 17 Tiefgaragenstellplätze in der Tiefgarage.
Im Flächennutzungsplan der Stadt Dresden wird das Gebiet, in dem sich das Objekt befindet, als Wohnbaufläche mit geringer Wohndichte ausgewiesen.
HINWEIS:
Der Eigentümer hat dem Büro Beyer Immobilien die Immobilie zur Vermarktung in die Hand gegeben. Auf Wunsch des Eigentümers und aus formellen Gründen bitten wir ausdrücklich von Direktkontakten abzusehen und Besichtigungstermine sowie Informationsgespräche ausschließlich über unser Büro zu vereinbaren.
Unser Exposé ist streng vertraulich zu behandeln. Eine Weitergabe dieses Angebotes, einschließlich aller Unterlagen und Angaben an Dritte, ist nur mit ausdrücklicher Genehmigung durch das Büro Beyer Immobilien zulässig.
Jegliche unbefugte Weitergabe unseres Vermietungs- oder Verkaufsangebotes an Dritte verpflichtet zum
Schadenersatz in Höhe der vollen Courtage.
Bitte beachten Sie, dass die von uns genannten Informationen und Angaben zum Objekt ausdrücklich unverbindlich und nur zur Vorabinformation bestimmt sind. Eine Haftung für die Richtigkeit oder Vollständigkeit dieser Objektangaben übernehmen wir daher nicht.
Alle Immobilienangebote sind freibleibend und vorbehaltlich Irrtümer, Zwischenverkauf und
Zwischenvermietung oder sonstiger Zwischenverwertung.
GELDWÄSCHE: Als Immobilienmaklerunternehmen ist die Beyer Immobilien nach § 2 Abs. 1 Nr.14 und § 11 Abs. 1,2 Geldwäschegesetz (GwG) dazu verpflichtet, bei der Begründung einer Geschäftsbeziehung die Identität des Vertragspartners festzustellen und zu überprüfen, sobald ein ernsthaftes Interesse an der Durchführung des Immobilienkaufvertrages besteht. Hierzu ist es erforderlich, dass wir nach § 11 Abs. 4 GwG die relevanten Daten Ihres Personalausweises festhalten. Bei einer juristischen Person benötigen wir eine Kopie des Handelsregisterauszugs, aus welchem der wirtschaftlich Berechtigte hervorgeht. Das Geldwäschegesetz sieht vor, das der Makler die Unterlagen fünf Jahre aufbewahren muss. Als unser Vertragspartner haben Sie auch eine Mitwirkungspflicht nach § 11 Abs. 6 GwG.
UNSER SERVICE FÜR SIE ALS EIGENTÜMER:
Sie möchten den Verkehrswert Ihres Grundstückes wissen oder Ihre Immobilie verkaufen?
Mit 30 jähriger Erfahrung sind wir erfolgreich im Verkauf (Vermietung) und Vermarktung von Immobilien in Dresden, Langebrück und Umgebung sowie auch die Standorte Ihrer Immoblien.
Landkreis Dresden ist die Oberkategorie in der diese Immobilie gelistet wird samt Immobiliensuche. Die Überschrift zu diesem Immobilien-Objekt ist !!Preissenkung !! Gewerbeobjekt für Büro oder Praxis in Airportnähe zu verkaufen. Das hier aufgelistete Objekt kann bei der Immobiliensuche unter der Kategorie Dresden gefunden werden. Die Immobiliensuche nach günstigen Immobilien führt viele weitere Objekte unter Sachsen.
Um mit dem Anbieter Kontakt aufzunehmen wenden Sie sich bitte an: BEYER Immobilien Dresden Ansprechpartner René Sodeik, Bruhmstr. in 01465 Dresden-Langebrück.
Besucher kamen auf die Seite Gewerbeimmobilien in Dresden durch folge Begriffe:
Synonyme zur Suche Dresden Gewerbeimmobilien:
Dresden Immobilien für Gewerbe, Gewerbeimmobilie Dresden, Gewerbe-Immobilien Dresden
BEYER Immobilien Dresden |
|
René Sodeik |
|
Bruhmstr. |
|
01465 Dresden-Langebrück |
|
Telefon: |
035201/70446 |
|
Telefax: |
035201/70131 |
|
|
|
|
Maklerwebsite: |
|
|
|
|
|
Aufsichtsbehörde: |
Gewerbeerlaubnis nach § 34c GewO durch die Stadt Dresden, Ordnu |
Verbraucherinformation:
Online-Streitbeilegung gemäß Art. 14 Abs. 1 ODR-VO: Die Europäische Kommission stellt eine Plattform zur Online-Streitbeilegung (OS) bereit, die Sie hier finden: http://ec.europa.eu/consumers/odr


