Neubau Studiohaus mit 2 Vollgeschossen, Dachstudio und Dachterrasse, 346qm Südgrundstück (Häuser Wiesbaden)
 
				Land:
DEU
PLZ:
65205
Ort:
Wiesbaden
Kaufpreis:
499.000,00 €
Wohnfläche:
177,00 m²
Grundstücksfläche:
346,00 m²
Ihre Objektnr.:
LM-ME-WiEb-56
Objekttyp:
Doppelhaushaelfte
Heizungsart:
Zentralheizung
Befeuerung:
Gas
Zustand:
Erstbezug
Bad:
Fenster
Küche:
Offene Küche
Garagen (Anz.):
1
Zimmer:
6
Schlafzimmer:
4
Badezimmer:
2
 Gartennutzung
Gartennutzung
Jahrgang:
ohne
Gebäudeart:
wohn
Elegantes Eckhaus auf real geteiltem 346qm Südgrundstück. Baurechtlich ein Einfamilienhaus,
in absolut ruhiger Lage.
Studiohaus, 
Gartenterrasse,
Dachterrasse, 
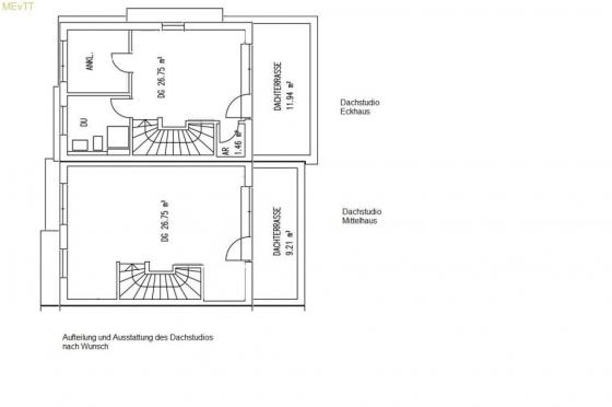
2 Vollgeschosse plus ein Dachstudio mit Fernblick.
Modernste Bauweise mit volldämmenden Steinen, 
3-fach-Fensterverglasung, 
großzügigen Fensterflächen, Solaranlage u.v.m.
EG: über 45qm für Ihre Wohn-und Essbereiche
OG: über 45qm verteilt auf 2-3 Schlafzimmer (beg. Schrank), vollausgestattes Bad mit Fenster
DG: über 31qm Studio plus 11qm Dachterrasse
Hier kann auch eine 2 Raumaufteilung, Duschbad, begeh. Schrank ect. vorgesehen werden.
2 Pkw-Stellplätze / plus Garage auf Wunsch  
Vollunterkellerung auf Wunsch gegen Aufpreis (26.000EURu)
Hochwertige Massivbauweise nach neuester Wärmeschutzverordung EnEV2014.
Schlüsselfertige Ausführung mit
eigenen Hausanschlüssen, 
eigener Brennwertheizung
eigener Solaranlage.
Alle Wohnbereiche ausgebaut, Bäder, 2 Terrassen 
und, und, und.
  
Ruhige und zentrale Lage.
Im Umfeld können Sie alle Einkäufe zu Fuß erledigen.
Der gesamte Grundstücksbereich ist von der Straße nicht einsehbar.
Eine eigene Zufahrt führt zu diesem Wohnjuwel. 
Direktinfo: Lothar Müller 0178 543 1111
Unter Landkreis Wiesbaden wurde dieses Immobilienangebot aufgelistet samt Kontaktangaben, Bildern und Eckdaten. Neubau Studiohaus mit 2 Vollgeschossen, Dachstudio und Dachterrasse, 346qm Südgrundstück ist die Kopfzeile diesen Objektes. Diese Immobilie ist in der Immobiliendatenbank in der Rubrik Wiesbaden abgespeichert. Hessen lautet die geografische Oberkategorie zu dem vorliegenden Angebot.
Der Anbieter MICRO-Immobilien AG Ansprechpartner Lothar Müller, Siemensstraße 9 in 65205 Wiesbaden hat dieses Objekt inseriert.
Besucher kamen auf die Seite Häuser in Wiesbaden durch folge Begriffe:
Synonyme zur Suche Wiesbaden Häuser:
Wiesbaden Häuser online, Haus Wiesbaden, Häusermarkt Wiesbaden
| MICRO-Immobilien AG | 
| Lothar Müller | 
| Siemensstraße 9 | 
| 65205 Wiesbaden | 
| Telefon: | 06122-7059216 | 
| 
 | 
 | 
| Maklerwebsite: | |
| 
 | 
 | 
| Handelsregister: | Frankfurt/M. | 
| Aufsichtsbehörde: | Ordungsamt Wiesbaden | 
Verbraucherinformation:
Online-Streitbeilegung gemäß Art. 14 Abs. 1 ODR-VO: Die Europäische Kommission stellt eine Plattform zur Online-Streitbeilegung (OS) bereit, die Sie hier finden: http://ec.europa.eu/consumers/odr


 
	             
	             
	             
	             
			