Moderner kleiner Laden in der historischen Altstadt (Gewerbeimmobilien Gotha)
Land:
DEU
PLZ:
99867
Ort:
Gotha
Kaufpreis:
79.900,00 €
Vermittl.-Provision:
4,76 %
Fensterfront (lm):
6.00
Nutzfläche:
27,34 m²
Gesamtfläche:
89,61 m²
Ihre Objektnr.:
500423
Objekttyp:
Ladenlokal
Heizungsart:
Fernheizung
Zustand:
gepflegt
Zimmer:
2
Baujahr:
1999
Rampe
Art:
Bedarf
Gültig bis:
12.02.2030
Endenergiebedarf:
70
Wertklasse:
B
Ausstellungsdatum:
2020-02-13
Diese solide Kapitalanlage befindet sich im Erdgeschoss eines in den 2000 errichteten Wohnkomplexes "Wohnanlage Nonnenberg".
Neben den Wohnungen wurden zwei Gewerbeeinheiten geschaffen, welche seit Jahren beständig vermietet sind.
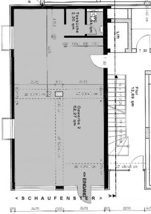
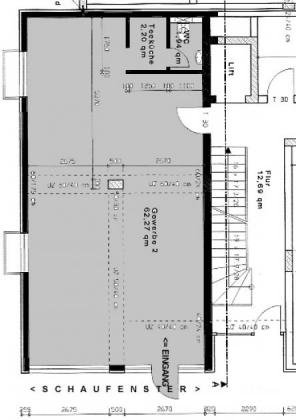
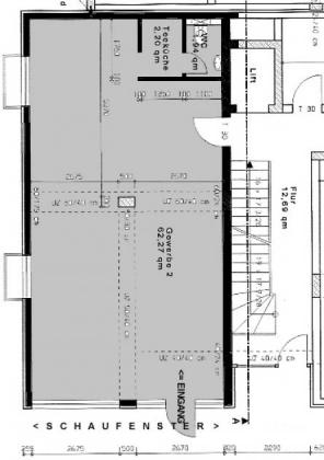
Das Ladengeschäft verfügt über eine große Schaufensterfront, welche das Gewerbe hell und freundlic erscheinen lässt.
Die Böden sind mit Terrazzo-Fliesen belegt. Ein Sanitärbereich sowie einen großer Kellerraum vervollständigen die Einheit.
Die Wohn- und Geschäftsanlage befindet sich am Rande der historischen Altstadt, in der Nähe der Augustinerkirche und des Hauptmarkts.
Durch die Neugestaltung des umliegenden Wohngebietes wurde die Lage des Objektes maßgeblich aufgewertet.
Heizungsart: Fernwärme
Befeuerung/Energieträger: Fernwärme Dampf
Energieausweistyp: Bedarfsausweis
Energiekennwert: 70 kWh/(m²*a)
Energieeffizienzklasse: B
Baujahr: 1999
Die Gewerbeeinheit ist seit vielen Jahren konstant vermietet, die dabei einzunehmende Jahresnettokaltmiete beträgt 3.360,00 €
Landkreis Gotha ist die Oberkategorie in der diese Immobilie gelistet wird samt Immobiliensuche. Die Überschrift zu diesem Immobilien-Objekt ist Moderner kleiner Laden in der historischen Altstadt. Unter Gotha sind weitere mögliche Immobilienangebote aufzufinden, die ähnlich dieser Immobilie sind. Thüringen lautet die geografische Oberkategorie zu dem vorliegenden Angebot.
Um mit dem Anbieter Kontakt aufzunehmen wenden Sie sich bitte an: HONNEF Immobilien Ansprechpartner Peter Honnef & Rudolf Steinert GbR, Schlossberg in 99867 Gotha.
Besucher kamen auf die Seite Gewerbeimmobilien in Gotha durch folge Begriffe:
Synonyme zur Suche Gotha Gewerbeimmobilien:
Gotha Immobilien für Gewerbe, Gewerbeimmobilie Gotha, Gewerbe-Immobilien Gotha
|
HONNEF Immobilien |
|
Peter Honnef & Rudolf Steinert GbR |
|
Schlossberg |
|
99867 Gotha |
|
Telefon: |
03621 - 300 000 |
|
Telefax: |
03621 - 300 901 |
|
|
|
|
Maklerwebsite: |
|
|
|
|
|
Steuernummer: |
DE 161812665 |
|
Aufsichtsbehörde: |
Stadtverwaltung Gotha |
Verbraucherinformation:
Online-Streitbeilegung gemäß Art. 14 Abs. 1 ODR-VO: Die Europäische Kommission stellt eine Plattform zur Online-Streitbeilegung (OS) bereit, die Sie hier finden: http://ec.europa.eu/consumers/odr


