Moderne, hochwertige 3Raum-WE (Wohnungen Waltershausen)
Land:
DEU
PLZ:
99880
Ort:
Waltershausen
Kaltmiete:
800,00 €
Warmmiete:
1.106,00 €
Nebenkosten:
260,00 €
Kaution:
2400.00
Stellplatz (Miete):
46,00 €
Wohnfläche:
97,50 m²
Ihre Objektnr.:
501620
Objekttyp:
Dachgeschoss
Heizungsart:
Zentralheizung
Befeuerung:
Gas
Stellplatz-Art:
Freiplatz
Stellplätze (Anz.):
2
Zimmer:
3
Haustiere erlaubt:
1
Dieses wunderschöne Gebäude wurde im Jahr 2018 umfassend saniert. Ob Alt oder Jung, Single, Paar oder Familie dieses Objekt hält für jede Lebenslage die passende Wohnung bereit.
Hier finden Sie echte Wohnqualität in zentraler Lage. "Wohnen am Klaustor", umfasst insgesamt 8 Wohneinheiten im denkmalgeschützten ehemaligen Postamt, welches um die Jahrhundertwende als imposanter Klinkerbau errichtet wurde.
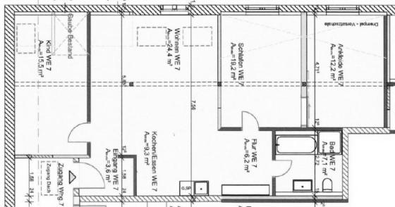
Diese Wohnung besticht durch den großzügigen Wohn-, Koch- und Essbereich im Zentrum. Von hier aus erreichen Sie das Kinderzimmer und das Badezimmer mit Fußbodenheizung. Vom Elternschlafzimmer geht die große Ankleide ab - wo Frau & Mann ganz sicher genügend Platz für alle Kleidungsstücke findet.
Waltershausen selbst ist die zweitgrößte Stadt im Landkreis Gotha, sie liegt zwischen dem Thüringer Becken im Nordosten und dem Thüringer Wald im Südwesten, deshalb wird Waltershausen gelegentlich als "Tor zum Thüringer Wald" bezeichnet. Hervorragend erschlossen und direkt an der Bundesautobahn 4 gelegen. Nach Eisenach oder auch der Landeshauptstadt Erfurt ist es jeweils nur ein "Katzensprung". Der Große Inselsberg, als markante Erhebung des Thüringer Waldes, liegt ebenfalls nur wenige Kilometer entfernt.
Mit dem Projekt "Wohnen am Klaustor" bieten wir Ihnen Wohnen in historischer Umgebung, im Herzen von Waltershausen und trotzdem verkehrsberuhigt, mit Weitblick, viel Grün und der Gewissheit, dass es auch so bleiben wird. Das Areal mit der Adresse Hauptstraße 10, befindet sich im Zentrum von Waltershausen, in unmittelbarer Nähe zum Marktplatz. Neben dem Blick auf das Klaustor - dem Wahrzeichen von Waltershausen, können Sie förmlich dem leisen Rauschen der Bäume aus dem Thüringer Wald lauschen. Zum Verweilen und Entspannen wird ein großzügiger Innenhof mit Stellplätzen einladen.
Heizungsart: Zentralheizung
Befeuerung/Energieträger: Gas
Diele 3,6 m²; Wohnen 24,4 m²; Kochen/Essen 9,3 m²; Kind 15,5 m²; Flur 6,2 m²; Bad 7,1 m²; Schlafen 19,2 m²; Ankleide 12,2 m²
Landkreis Gotha ist die Oberkategorie in der diese Immobilie gelistet wird samt Immobiliensuche. Die Überschrift für diese Immobilie ist Moderne, hochwertige 3Raum-WE. Diese Immobilie ist in der Immobiliendatenbank in der Rubrik Waltershausen abgespeichert. Das diesem Objekt zugeordnete Bundesland ist Thüringen. Der Anbieter HONNEF Immobilien Ansprechpartner Peter Honnef & Rudolf Steinert GbR, Schlossberg in 99867 Gotha ist verantwortlich für die Veröffentlichung der Anzeige.
Besucher kamen auf die Seite Wohnungen in Waltershausen durch folge Begriffe:
Synonyme zur Suche Waltershausen Wohnungen:
Wohnungen Waltershausen, Wohnung Waltershausen, Waltershausen Wohnung online
|
HONNEF Immobilien |
|
Peter Honnef & Rudolf Steinert GbR |
|
Schlossberg |
|
99867 Gotha |
|
Telefon: |
03621 - 300 000 |
|
Telefax: |
03621 - 300 901 |
|
|
|
|
Maklerwebsite: |
|
|
|
|
|
Steuernummer: |
DE 161812665 |
|
Aufsichtsbehörde: |
Stadtverwaltung Gotha |
Verbraucherinformation:
Online-Streitbeilegung gemäß Art. 14 Abs. 1 ODR-VO: Die Europäische Kommission stellt eine Plattform zur Online-Streitbeilegung (OS) bereit, die Sie hier finden: http://ec.europa.eu/consumers/odr


