Moderne Bürofläche in Top Lage an der A96! (Gewerbeimmobilien Inning am Ammersee)
Land:
DEU
PLZ:
82266
Ort:
Inning am Ammersee
Kaltmiete:
1.771,13 €
Warmmiete:
2.267,05 €
Nebenkosten:
495,92 €
Vermittl.-Provision:
1 Nettokaltmiete zzgl. MwSt.
Kaution:
5313.38
Ihre Objektnr.:
1153-109-VQ
Objekttyp:
Bueroflaeche
Fahrstuhl:
Personen
Boden:
Teppich
Art:
Verbrauch
Gültig bis:
2036-01-14
Exklusive Bürofläche in repräsentativer Gewerbelage – Direkt an der A96
In einem etablierten und architektonisch ansprechenden Gewerbepark, unmittelbar an der Autobahn A96 und der Bundesstraße 471, präsentiert sich diese hochwertige Bürofläche im 2. Obergeschoss als erstklassige Adresse für Unternehmen mit gehobenem Anspruch an Standort, Funktionalität und Repräsentation.
Auf einer Gesamtfläche von ca. 142 m² bietet die Einheit ein außergewöhnlich flexibles Raumkonzept, das sowohl klassische Bürostrukturen als auch moderne Arbeitswelten oder hochwertige Praxisnutzungen ermöglicht. Die Bürofläche besteht aus einer eigenständigen Büroeinheit. Ein zentral positionierter Besprechungsraum fungiert dabei als kommunikatives Herzstück – ideal für diskrete Gespräche, Meetings oder Kundenempfänge auf professionellem Niveau.
Die 3 lichtdurchfluteten Büroräume erlauben eine individuelle und effiziente Nutzung – von eleganten Einzelbüros über offene Arbeitsbereiche bis hin zu Konferenz- oder Behandlungsräumen. Die durchdachte Grundrissgestaltung gewährleistet dabei höchste Flexibilität für unterschiedlichste Unternehmenskonzepte. Ein besonderes Qualitätsmerkmal stellt die vollständige Barrierefreiheit dar. Ein moderner Personenaufzug ermöglicht den komfortablen Zugang zur Etage und erfüllt sämtliche Anforderungen an zeitgemäße, inklusive Arbeitsumgebungen.
* Hochwertige Ausstattung und funktionaler Komfort:
* Repräsentative Bürofläche in gepflegtem Gesamtzustand
* Moderne Teeküche
* Insgesamt zwei WCs für Mitarbeiter und Besucher
* Effiziente Infrastruktur für Büro- und Praxisnutzungen
* Etablierte, ruhige Gewerbeumgebung mit professionellem Umfeld
* Klimaanlage für ein angenehmes Raumklima.
* Energieeffiziente Beheizung durch innovative Wärmepumpe
Abgerundet wird das Angebot durch insgesamt 4 Außenstellplätze , die sich direkt vor dem Gebäude auf der gepflasterten Freifläche befinden. Diese unmittelbare Erreichbarkeit stellt insbesondere für Kundenverkehr und Mitarbeiter einen erheblichen Standortvorteil dar.
Mietkonditionen
* Kaltmiete: 1.771,13,00 € zzgl. 19 % MwSt. monatlich
* Nebenkosten: 495,92,00 € zzgl. 19 % MwSt. monatlich (inkl. Heizkosten)
* Warmmiete: 2.267,05,00 € zzgl. 19 % MwSt. monatlich
* Außenstellplätze: 4 Stellplätze insgesamt 160,00 € monatlich zzgl. 19 % MwSt.
* Kaution: 5.313,38 €
* Maklercourtage: 1 Nettokaltmiete zzgl. MwSt.
* Die Miete wird jährlich um 2 % angepasst.
Mietvertragslaufzeit: Mindestmietdauer 1 Jahr mit jährlicher Verlängerungsoption
Die Bürofläche steht ab dem 01.01.2027 zur Verfügung und bietet eine nachhaltige Mietperspektive in bevorzugter Lage – eine ideale Wahl für Unternehmen, die Wert auf Seriosität, Komfort und Sichtbarkeit legen.
Moderne Bürofläche im 2. Obergeschoss eines Büroturms
Die Büroeinheiten befinden sich in einem modernen, barrierefreien Büroturm mit vier Etagen, die bequem über den Aufzug erreichbar sind. Das Gebäude verfügt über einen Internetanschluss und bietet top ausgestattete Gewerbeflächen – ideal für Unternehmen, die Wert auf Funktionalität und Komfort legen.
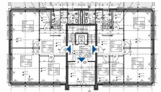
Die Büroeinheit überzeugt durch eine durchdachte Raumaufteilung und helle, gut nutzbare Flächen. Insgesamt stehen drei Büros, ein Serverraum, eine Teeküche, jeweils eine Herren- und Damentoilette, ein Abstellraum, ein großzügiger Flur sowie ein zentral gelegener Besprechungsraum zur Verfügung. Ergänzend sorgt eine Klimaanlage für ein angenehmes Raumklima zu jeder Jahreszeit. Für die Beheizung der Immobilie steht eine moderne Wärmepumpenheizung zur Verfügung, die energieeffizient, nachhaltig und besonders komfortabel für ein behagliches Raumklima sorgt.
Büroeinheit 2. OG – links
Flur: ca. 21,56 m²
Büro 1: ca. 31,81 m²
Büro 2: ca. 30,04 m²
Büro 3: ca. 21,67 m²
Serverraum: ca. 5,52 m²
Teeküche: ca. 2,85 m²
Abstellraum: ca. 1,31 m²
WC Damen: ca. 3,47 m²
WC Herren: ca. 4,20 m²
Der Besprechungsraum liegt gegenüber dem Aufzug mit ca. 19,26 m².
Diese Bürofläche eignet sich ideal für Unternehmen, die auf der Suche nach flexiblen, hellen Arbeitsbereichen mit moderner Infrastruktur sind. Die klare Raumstruktur ermöglicht sowohl konzentriertes Arbeiten in Einzelbüros als auch effiziente Teamarbeit in gemeinschaftlichen Bereichen.
Ihr neues Büro am Ammersee – Arbeiten in inspirierender Lage mit exzellenter Anbindung
Eingebettet in die reizvolle Umgebung des Ammersees, einer der begehrtesten Wirtschafts- und Lebensräume im Münchner Umland, bietet dieser Standort eine außergewöhnliche Verbindung aus naturnahem Arbeiten, hoher Standortqualität und optimaler Erreichbarkeit. Der Standort überzeugt durch seine herausragende verkehrliche Lage: Direkt an der B471 gelegen und mit unmittelbarer Anbindung an die Autobahn A96 (München – Lindau) gewährleistet dieser eine schnelle und komfortable Anbindung an München sowie an die gesamte Metropolregion – ein entscheidender Vorteil für Mitarbeiter, Kunden und Geschäftspartner.
Der Standort vereint wirtschaftliche Effizienz mit hoher Aufenthaltsqualität: Die inspirierende Landschaft des Ammersees schafft ein repräsentatives und zugleich motivierendes Arbeitsumfeld, das Produktivität, Kreativität und Work-Life-Balance nachhaltig fördert. Gleichzeitig profitieren Unternehmen von der etablierten Gewerbestruktur, der ausgezeichneten Infrastruktur und der hohen Standortreputation der Region.
Ein Büro an diesem Standort ist mehr als nur ein Arbeitsplatz – es ist eine Adresse mit Signalwirkung, die Professionalität, Weitblick und Qualität vermittelt.
Optional bietet der Gewerbepark zusätzlich zwei große Lagerhallen mit insgesamt ca. 1.300 m² Fläche. Diese sind in 16 Einheiten zu jeweils ca. 91 m² teilbar und können – je nach Verfügbarkeit – ergänzend zu den Büroflächen angemietet werden. Jede Lagereinheit ist ebenerdig befahrbar und mit Sektionaltor sowie Starkstromanschluss ausgestattet.
Energieausweis: Energieeffizienzklasse D (105,2 Kwh/ m²*a), Verbrauchsausweis, Baujahr laut Energieausweis 2014; Energieausweis gültig bis 14.01.2036.
Energieausweis wird bei Besichtigung vorgelegt
Der Glasfaseranschluss befindet sich in Ausbau.
Die genaue Adresse der Immobilie teilen wir Ihnen gerne auf Anfrage mit.
Unser Angebot erfolgt auf Basis der vom Eigentümer bereitgestellten Informationen. Eine Gewähr für Richtigkeit, Vollständigkeit oder Aktualität kann nicht übernommen werden. Haftungsansprüche gegen uns bestehen – soweit gesetzlich zulässig – nur bei vorsätzlichem oder grob fahrlässigem Verhalten.
Für Rückfragen stehen wir Ihnen gerne zur Verfügung.
**********************************************************************
Starte deine Karriere bei RE/MAX Traumimmobilien!
Wir bieten motivierten Immobilienmaklern sowie Quereinsteigern (m/w/d) die Chance, bei RE/MAX der Nr. 1 im weltweiten Immobiliengeschäft einzusteigen & bundesweit aktiv zu sein.
Für Quereinsteiger/innen besteht die Möglichkeit, eine fundierte Ausbildung an der RE/MAX Akademie mit IHK-Abschluss zu absolvieren.
Bei Interesse freuen wir uns über Ihre Kurzbewerbung an traumimmobilien@remax.de
**********************************************************************
Wenn Sie uns einen Hinweis auf eine zum Verkauf stehende Immobilie geben und daraus ein erfolgreicher Verkauf entsteht, können Sie eine Tippgeberprovision erhalten. Details zu Anspruch, Höhe und Auszahlung der Provision regeln unsere Geschäftsbedingungen, einsehbar auf unserer Website.
*********************************************************************
Landkreis Starnberg ist die Oberkategorie in der diese Immobilie gelistet wird samt Immobiliensuche. Auf der Seite Inning am Ammersee sind einige weitere Immobilienanzeigen zu finden. Die Überschrift zu diesem Immobilien-Objekt ist Moderne Bürofläche in Top Lage an der A96!. Um mit dem Anbieter Kontakt aufzunehmen wenden Sie sich bitte an: REMAX Traumimmobilien Emmering Ansprechpartner Vjollca Qela, Hauptstraße 7 in 82275 Emmering.
Das Bundesland Bayern ist die Ober-Immobilienkategorie zu dem Exposé.
Besucher kamen auf die Seite Gewerbeimmobilien in Inning am Ammersee durch folge Begriffe:
Synonyme zur Suche Inning am Ammersee Gewerbeimmobilien:
Inning am Ammersee Immobilien für Gewerbe, Gewerbeimmobilie Inning am Ammersee, Gewerbe-Immobilien Inning am Ammersee
|
REMAX Traumimmobilien Emmering |
|
Vjollca Qela |
|
Hauptstraße 7 |
|
82275 Emmering |
|
Telefon: |
08141/ 5290988 |
|
Mobil: |
0179/ 7619980 |
|
|
|
|
Maklerwebsite: |
|
|
|
|
|
Aufsichtsbehörde: |
Gewerbeamt Fürstenfeldbruck |
Verbraucherinformation:
Online-Streitbeilegung gemäß Art. 14 Abs. 1 ODR-VO: Die Europäische Kommission stellt eine Plattform zur Online-Streitbeilegung (OS) bereit, die Sie hier finden: https://ec.europa.eu/consumers/odr


