Moderne, beheizbare Halle (Produktion, Lager usw.) im Gewerbegebiet Loxstedt (Gewerbeimmobilien Loxstedt)
Land:
DEU
PLZ:
27612
Ort:
Loxstedt
Kaltmiete:
4.950,00 €
Vermittl.-Provision:
2,38 Kaltmieten inkl. 19% gesetzliche MwSt.
Gesamtfläche:
1.125,00 m²
Grundstücksfläche:
2.157,00 m²
Ihre Objektnr.:
KIA-484
Objekttyp:
Lager
Baujahr:
2020
Wir bieten hier eine moderne Lagerhalle mit Bürocontainer zur Miete an.
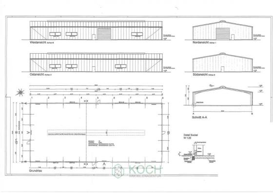
Das Objekt bietet 22,5 x 50 Meter (1.125 m²) Grundfläche in der neben der großen Einfahrt im Innenbereich der Bürocontainer steht.
Die Fläche ist auch mit größeren Fahrzeugen (Sattelaufliege) zur Anlieferung über ein großes Rolltor (ca. 5,8 mtr. breit) befahrbar.
Beheizt wird das Objekt über ein Gasheizung (Warmluft-Deckenbeheizung).
- Grundfläche 22,5 x 50 Meter
- Beleuchtet und beheizbar
- Neuer Bürocontainer in der Halle
- Großes Rolltor mit eine breite von 5,8 Meter
- Park-/ Hoffläche nach Absprache vor der Halle
Gewerbegebiet Wedenberg in Loxstedt
Das Gewerbe- und Industriegebiet liegt unweit der B71 und der Autobahn A27, Abfahrt Bremerhaven-Wulsdorf. Auch der Bahnhof (Bremerhaven-Bremen) ist fußläufig erreichbar. Es präsentiert sich sowohl als gemischtes Gewerbegebiet als auch durch die ansässige chemische Industrie als Industriegebiet. Vorherrschende Branchen sind zudem produzierendes Gewerbe, Groß- und Einzelhandel sowie das Handwerk.
Mehr Info unter: https://www.loxstedt.de/portal/seiten/gewerbegebiete-der-gemeinde-loxstedt-900000083-32631.html
Es ist einen Mietkaution in Höhe von zwei Monatskaltmieten zu zahlen/hinterlegen.
Landkreis Cuxhaven ist die Oberkategorie in der diese Immobilie gelistet wird samt Immobiliensuche. Die Überschrift zu diesem Immobilien-Objekt ist Moderne, beheizbare Halle (Produktion, Lager usw.) im Gewerbegebiet Loxstedt. Dieses Exposé ist der Kategorie Loxstedt zugeordnet. Niedersachsen lautet die geografische Oberkategorie zu dem vorliegenden Angebot.
Um mit dem Anbieter Kontakt aufzunehmen wenden Sie sich bitte an: KOCH Immobilieagentur Ansprechpartner André Koch, Langner Str. 53 in 27607 Geestland.
Besucher kamen auf die Seite Gewerbeimmobilien in Loxstedt durch folge Begriffe:
Synonyme zur Suche Loxstedt Gewerbeimmobilien:
Loxstedt Immobilien für Gewerbe, Gewerbeimmobilie Loxstedt, Gewerbe-Immobilien Loxstedt
|
KOCH Immobilieagentur |
|
André Koch |
|
Langner Str. 53 |
|
27607 Geestland |
|
Telefon: |
04743-9498464 |
|
|
|
|
Maklerwebsite: |
|
|
|
|
|
Aufsichtsbehörde: |
Industrie- und Handelskammer (IHK) Stade, Am Schäferstieg 2, 21680 Stade, Tel.: (04141) 5240, Mail: info@stade.ihk.de, Web: www.stade.ihk24.de |
Verbraucherinformation:
Online-Streitbeilegung gemäß Art. 14 Abs. 1 ODR-VO: Die Europäische Kommission stellt eine Plattform zur Online-Streitbeilegung (OS) bereit, die Sie hier finden: https://ec.europa.eu/consumers/odr


