Modern geschnittene 1-Raum-Wohnung mit Loggia in Treuen! Vermietet, Aufzug! (Wohnungen Treuen)
Land:
DEU
Strasse:
August-Bebel-Straße 30
PLZ:
08233
Ort:
Treuen
Adresse anzeigen:
1
Etage (im Haus):
2
Kaufpreis:
39.500,00 €
Hausgeld:
213,58 €
Vermittl.-Provision:
2.975,- EUR inkl. 19 % MwSt.
Wohnfläche:
43,88 m²
Ihre Objektnr.:
AB30-05
Heizungsart:
Zentralheizung
Fahrstuhl:
Personen
Befeuerung:
Gas
Zustand:
gepflegt
Bad:
Wanne
Küche:
Offene Küche
Zimmer:
1
Badezimmer:
1
Baujahr:
1996
vermietet:
1
Art:
Verbrauch
Gültig bis:
2032-03-03
E-Verbrauchskennw.:
103.00
EP inkl. Warmwasser:
ja
Baujahr:
1996
Jahrgang:
2014
Gebäudeart:
wohn
Das Mehrfamilienhaus wurde lt. Energieausweis 1996 erbaut.
Es befindet sich in einer ruhigen Siedlung mit Mehr- bzw. Einfamilienhäusern.
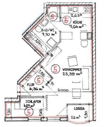
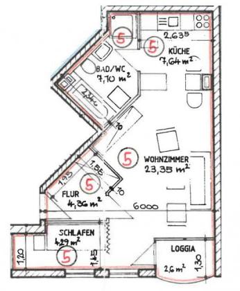
Die ca. 43,88 m² große 1-Raum-Wohnung befindet sich im 2. OG und teilt sich wie folgt auf:
- Flur
- Badezimmer mit Dusche und Wanne (innenliegend)
- Wohnzimmer mit Küchenecke, Schlafnische u. Zugang Loggia
- Loggia
Zur Wohnung gehört ein Kellerabteil mit der Nr. 5.
Die Wohnung ist vermietet. Der aktuelle Mietvertrag läuft seit 11/2010. Die Kaltmiete beträgt 241,34 EUR, die Nebenkostenvorauszahlung 154,00 EUR und die Gesamtmiete 395,34 EUR.
Der Erwerber wird Mitglied einer Wohneigentümergemeinschaft WEG mit einem Miteigentumsanteil von 81,95/1.000. Es ist lt. Wirtschaftsplan 2024 durch den Erwerber ein monatliches Hausgeld in Höhe von 213,58 EUR zu zahlen. Davon sind bei Vermietung erfahrungsgemäß ca. 2/3 als Betriebskosten umlegbar.
Der Energieausweis ist dem Exposé als pdf-Dokument beigefügt.
Mit ca. 8.000 Einwohnern gehört Treuen zum Vogtlandkreis und liegt 14 km östlich der Stadt Plauen. Eine herrliche, waldreiche und ruhige Umgebung mit vielen Wandermöglichkeiten sowie interessante Sehenswürdigkeiten zeichnen Treuen aus.
Der Ort gilt als ein moderner Wohn- und Gewerbestandort.
Die Immobilie befindet sich in einer ruhigen Siedlung mit Mehr- bzw. Einfamilienhäusern.
In nur 2 Minuten zu Fuß erreicht man einen Netto mit Bäckerei.
Der Bahnhof Treuen befindet sich nur 650 Meter vom Objekt entfernt.
Auch Schulen, Kindergärten und Einrichtungen des täglichen Bedarfs befinden sich in unmittelbarer Nähe.
Bitte nutzen Sie das Kontaktformular, um uns Ihre Fragen bzw. Ihren Besichtigungswunsch mitzuteilen. Wir nehmen schnellstmöglich den Kontakt zu Ihnen auf bzw. senden Ihnen gern ergänzende Unterlagen entsprechend Ihrer Anfrage zu.
Alle Angaben beruhen auf Aussagen der Eigentümer bzw. basieren auf den uns bis dato vorliegenden Unterlagen und erfolgen ohne Gewähr. Irrtum und zwischenzeitlicher Verkauf bleiben vorbehalten. Exposé © 2026, Immobilienbüro Kühn GmbH & Co. KG.
Vogtlandkreis ist die Oberkategorie in der diese Immobilie gelistet wird samt Immobiliensuche. Die Überschrift für diese Immobilie ist Modern geschnittene 1-Raum-Wohnung mit Loggia in Treuen! Vermietet, Aufzug!. Diese Immobilienanzeige ist unter Treuen in der Immobiliendatenbank samt Häuser, Gewerbe, Wohnungen und Grundstücken gespeichert. Die Immobiliensuche nach günstigen Immobilien führt viele weitere Objekte unter Sachsen. Der Anbieter Immobilienbüro Kühn GmbH & Co. KG Ansprechpartner Wolfgang Kühn, Jahnstraße 17 in 08058 Zwickau ist verantwortlich für die Veröffentlichung der Anzeige.
Besucher kamen auf die Seite Wohnungen in Treuen durch folge Begriffe:
Synonyme zur Suche Treuen Wohnungen:
Wohnungen Treuen, Wohnung Treuen, Treuen Wohnung online
Immobilienbüro Kühn GmbH & Co. KG |
|
Wolfgang Kühn |
|
Jahnstraße 17 |
|
08058 Zwickau |
|
Telefon: |
0375282003 |
|
|
|
|
Maklerwebsite: |
|
|
|
|
|
USt.-ID: |
DE152847296 |
|
Handelsregister-Nr: |
HRA 10300 AG Chemnitz |
|
Aufsichtsbehörde: |
Berufsaufsichtsbehörde Stadt Zwickau |
Verbraucherinformation:
Online-Streitbeilegung gemäß Art. 14 Abs. 1 ODR-VO: Die Europäische Kommission stellt eine Plattform zur Online-Streitbeilegung (OS) bereit, die Sie hier finden: https://ec.europa.eu/consumers/odr


