*Kellerräume in guter Lage von Plüderhausen* (Gewerbeimmobilien Plüderhausen)
Land:
DEU
PLZ:
73655
Ort:
Plüderhausen
Kaltmiete:
609,00 €
Nebenkosten:
150,00 €
Vermittl.-Provision:
3 Kaltmieten plus Steuer
Nutzfläche:
203,72 m²
Gesamtfläche:
203,72 m²
Ihre Objektnr.:
919
Objekttyp:
Lager
Heizungsart:
Zentralheizung
Befeuerung:
Öl
Boden:
Estrich
Zimmer:
4
Abstellraum
Art:
Bedarf
Gültig bis:
11.12.2026
Endenergiebedarf:
170
Die nächste Besichtigung für diese Räumlichkeiten findet im Januar 2026 statt.
Bitte beachten Sie, dass wir in der Zeit vom 20.Dezember 2025 bis zum 06.Januar 2026 Betriebsferien haben. In dieser Zeit werden keine E-Mails beantwortet und wir sind auch telefonisch nicht erreichbar.
Wir wünschen Ihnen eine schöne Vorweihnachtszeit, gesegnete Weihnachten und einen guten Start in das neue Jahr.
Für 2026 wünschen wir Ihnen vor allem Gesundheit.
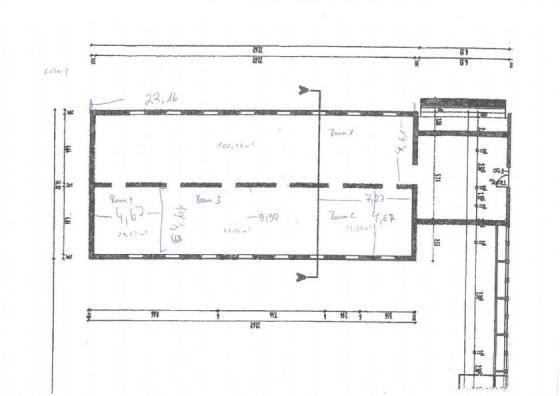
Die Räume haben insgesamt 203 m² verteilt sich auf vier Kellerräume, die Einheit ist NICHT teilbar:
- Raum 1: 21,67 m²
- Raum 2: 45,94 m²
- Raum 3: 33,95 m²
- Raum 4: 102,16 m²
Der Zugang zu den Räumen erfolgt über Stufen und normal breite Türen in den Keller. Toiletten sind vorhanden.
Gerne sendet Ihnen Bausch Immobilien ein Exposé zu. Selbstverständlich zeigen wir Ihnen auch sehr gerne die Räume.
- Die Einheit ist NICHT teilbar
- 203 m² verteilt auf 4 Räume
- Raum 1: 21,67 m²
- Raum 2: 45,94 m²
- Raum 3: 33,95 m²
- Raum 4: 102,16 m²
- Beheizbar
- Toiletten vorhanden
- Zugang über Treppen und normale Türen
Sollten Sie weitere Räume benötigen, lassen Sie es mich bitte wissen.
Plüderhausen liegt östlich von Schorndorf, zählt zu den größeren Gemeinden des Rems-Murr-Kreises und gehört zur Metropolregion Stuttgart. Die Infrastruktur ist gut ausgebaut.
- Es halten die Regional-Express-Züge der Remstalbahn zwischen Stuttgart und Aalen
- Es gibt eine Anschlussstelle zur hier vierspurigen B 29 zwischen Stuttgart und Aalen
- Die Buslinie 243 pendelt zwischen Plüderhausen, Urbach und Schorndorf
Sämtliche Einkaufsmöglichkeiten, Schulzentrum, Kindergärten, Ärzte und diverse Gastronomische Betriebe erreichen Sie fußläufig.
Alle im Exposé enthaltenen Angaben basieren auf den Aussagen der/des Eigentümerin/Eigentümers.
Unsere Angebote sind freibleibend und in diesem Falle nur für Sie bestimmt. Eine Weitergabe an Dritte bedarf unserer Zustimmung.
Rems-Murr-Kreis ist die Oberkategorie in der diese Immobilie gelistet wird samt Immobiliensuche. Die Überschrift zu diesem Immobilien-Objekt ist *Kellerräume in guter Lage von Plüderhausen*. Das hier vorliegende Exposé ist bei Immobilienfrontal unter der Kategorie Plüderhausen abgespiechert. Das dieser Immobilie zugeordnete Bundes-Land ist Baden-Württemberg.
Um mit dem Anbieter Kontakt aufzunehmen wenden Sie sich bitte an: Sabine Bausch Immobilien Ansprechpartner , Gmünder Str. 65 in 73614 Schorndorf.
Besucher kamen auf die Seite Gewerbeimmobilien in Plüderhausen durch folge Begriffe:
Synonyme zur Suche Plüderhausen Gewerbeimmobilien:
Plüderhausen Immobilien für Gewerbe, Gewerbeimmobilie Plüderhausen, Gewerbe-Immobilien Plüderhausen
|
Sabine Bausch Immobilien |
|
Gmünder Str. 65 |
|
73614 Schorndorf |
|
Telefon: |
07181 4825854 |
|
Mobil: |
01705849101 |
|
|
|
|
Maklerwebsite: |
|
|
|
|
|
Aufsichtsbehörde: |
Landratsamt Rems-Murr-Kreis, Alter Postplatz 10, 71332 Waiblingen |
Verbraucherinformation:
Online-Streitbeilegung gemäß Art. 14 Abs. 1 ODR-VO: Die Europäische Kommission stellt eine Plattform zur Online-Streitbeilegung (OS) bereit, die Sie hier finden: http://ec.europa.eu/consumers/odr


