Kapitalanlage mit Einzelhandelsfläche, Gaststätte und Wohnung im OG. in Laichingen (Gewerbeimmobilien Laichingen)
Land:
DEU
PLZ:
89150
Ort:
Laichingen
Vermittl.-Provision:
3.57 % Käuferprovision (inkl. MwSt.)
Nutzfläche:
1.105,00 m²
Ihre Objektnr.:
WGH0029
Zimmer:
14
Baujahr:
1986
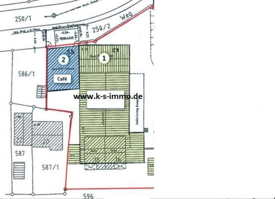
Zentralgelegen , nur wenige schritte vom Marktplatz und dem Schulzentrum befindet sich diese interessante Kapitalanlage mit Einzelhandelsfläche , Gastronomiefläche sowie mit Wohnung im Obergeschoß und ausreichend Parkplätze für Kunden und Besucher auf das Grundstück mit ca.1934 qm .
Alles komplett vermietet .
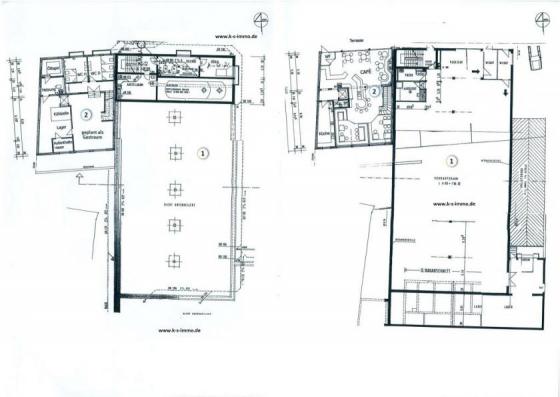
Gebäudeteil 1. (bereits Vermietet)
Laden/Einzelhandelsfläche. Gewerbefläche mit ca.709m² Gesamtnutz und Verkaufsfläche im EG mit Automatiktüre +Lagerraum , ( Verkaufsfläche Netto ca.580qm)
Büroraum und Aufenthalt/Sozialräume ,WC-s ,Herren und Damentoilette, Teeküche im OG)
Im OG: ( bereits Vermietet)
im Gebäude eine Wohnung mit ca.100/95qm.netto Wfl mit 1 Bad mit Wanne und WC .
Gebäudeteil 2..( bereits Vermietet)
1 Gaststätte : EG: Gastraum,Küche und WC ca,120qm Nfl
UG: Gastraum ,WC und Nebenräume ca.105qm Nfl
Kaufpreis: auf Anfrage., gute Parkmöglichkeiten auf eigenenen 26 Parkplätze .
Interessante Kapitalanlage mit 96.000. EUR p.A. Mieteinnahme und 6,4% Rendite zzt.
Maklergebühr:3,57% für Käufer
Übernahme: nach Absprache kurzfristig auch möglich
Energieausweiss : Energieausweis vorhanden
Energiebedarfsausweis , Heizungsart: Zentralheizung , Heizungsbefeuerung: Öl
Energieverbrauch:143 kWh/(m²*a) inkl. Warmwasser , Energieeffizienz:Klasse E
Ausstattung: Heizung und Klima (Heizung/Lüftungsanlage mit Klimaanlage 2013 erneuert)
abgehängte Rasterdecken,Raumhöhe beträgt ca. 3 m, WC ,Büroraum im OG und Personalraum, Lagerraum, ,Öl-Zentralheizung
An eine Interessante Standort direkt an der Landesstraße 238 nach Feldstetten mit ca.12000 Einwohnern zwischen Stuttgart und Ulm mit Anbindung an die A8 bei der Anschlussstelle Merklingen.
An einer frequentierten Ausfallstraße in Laichingen befindet sich diese interessante Immobilie als solide Kapitalanlge.
Bezug/Übernahme: Kurzfristig oder nach Vereinbahrung
Parkplätze: Stellplätze vor dem Objekt ( 26 Eigene)
Alb-Donau-Kreis ist die Oberkategorie in der diese Immobilie gelistet wird samt Immobiliensuche. Die Überschrift zu diesem Immobilien-Objekt ist Kapitalanlage mit Einzelhandelsfläche, Gaststätte und Wohnung im OG. in Laichingen. Dieses Exposé ist der Kategorie Laichingen zugeordnet. Das diesem Objekt zugeordnete Bundesland ist Baden-Württemberg.
Um mit dem Anbieter Kontakt aufzunehmen wenden Sie sich bitte an: K-S Immobilien Vermittlung Ansprechpartner Karoly Szabo, Heinrichgasse 6 in 89231 Neu-Ulm.
Besucher kamen auf die Seite Gewerbeimmobilien in Laichingen durch folge Begriffe:
Synonyme zur Suche Laichingen Gewerbeimmobilien:
Laichingen Immobilien für Gewerbe, Gewerbeimmobilie Laichingen, Gewerbe-Immobilien Laichingen
|
K-S Immobilien Vermittlung |
|
Karoly Szabo |
|
Heinrichgasse 6 |
|
89231 Neu-Ulm |
|
Telefon: |
0731-87 957 |
|
Telefax: |
0731-97756377 |
|
Mobil: |
0170-6677 555 |
|
|
|
|
Maklerwebsite: |
|
|
|
|
|
Steuernummer: |
151/279/80524 |
|
Aufsichtsbehörde: |
Landratsamt Neu-Ulm |
Verbraucherinformation:
Online-Streitbeilegung gemäß Art. 14 Abs. 1 ODR-VO: Die Europäische Kommission stellt eine Plattform zur Online-Streitbeilegung (OS) bereit, die Sie hier finden: http://ec.europa.eu/consumers/odr


