Ihr Kapital- Ihre Stadtwohnung (Wohnungen Gotha)
Land:
DEU
PLZ:
99867
Ort:
Gotha
Kaufpreis:
69.500,00 €
Vermittl.-Provision:
3,57 %
Wohnfläche:
57,00 m²
Ihre Objektnr.:
502009
Heizungsart:
Zentralheizung
Befeuerung:
Gas
Zustand:
gepflegt
Zimmer:
2
Baujahr:
1893
vermietet:
1
Art:
Bedarf
Gültig bis:
15.0.2034
Wertklasse:
F
Ausstellungsdatum:
2023-10-19
Diese attraktive 2-Zimmer-Wohnung bietet eine erstklassige Gelegenheit, das urbane Leben im Zentrum von Gotha zu genießen. Ideal für Singles oder Paare, die nach einem komfortablen und stilvollen Zuhause suchen
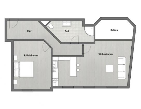
Die Wohnung erstreckt sich über eine Fläche von ca. 57 Quadratmetern und befindet sich im 1. Stockwerk eines gepflegten Mehrfamilienhauses. Sie besticht durch ihre moderne Gestaltung und ihre solide Ausstattung. Der offene Grundriss schafft eine luftige und einladende Atmosphäre, während die vielen Fenster für ausreichend natürliches Licht sorgen.
Die offene Küche bietet ausreichend Platz zum Kochen und Zubereiten von Mahlzeiten. Das Wohnzimmer ist der ideale Ort zum Entspannen und bietet genügend Platz für gemütliche Abende mit Familie und Freunden.
Die angebotene 2-Zimmer-Wohnung befindet sich inmitten des historischen Zentrums von Gotha, einer charmanten Stadt reich an Geschichte und Kultur. Die Lage ist ideal für alle, die das pulsierende Stadtleben genießen möchten, da sie sich in unmittelbarer Nähe zu Geschäften, Restaurants, Cafés, kulturellen Einrichtungen und öffentlichen Verkehrsmitteln befindet. Trotz der zentralen Lage bietet die Umgebung auch Ruhe und Entspannung, da sie von malerischen Straßen und Grünflächen umgeben ist.
Baujahr: 1893
Heizungsart: Gas-Heizung
Befeuerung/Energieträger: Erdgas schwer
Energieausweistyp: Bedarfsausweis
Energieeffizienzklasse: F
Renditebetrachtung:
Die Wohnung ist vermietet zu einer Kaltmiete von 370 €/m.
Mithin würde man im Jahr eine Einnahme an Kaltmieten von rund 4.440 €/p.a. erzielen können.
Vom Hausgeld lt. Wirtschaftsplan 2023 in Höhe von 2.186,12 €/p.a. (zahlbar in Monatsraten zu 183 €/Monat) sind rd. 1.420,70 €/p.a. nach Betr.KV umlagefähig.
Mithin verbleiben rd. 765 €/p.a. beim Eigentümer, wovon allein 282,60 €/p.a. in die Rücklage fließen.
Nach Abzug der nicht umlagefähigen Hausgeldkosten verbliebe ein Erlös aus der Kaltmiete von rund 3.675 €/p.a..
Monatliches Hausgeld 183,00 €
Landkreis Gotha ist die Oberkategorie in der diese Immobilie gelistet wird samt Immobiliensuche. Die Überschrift für diese Immobilie ist Ihr Kapital- Ihre Stadtwohnung. Unter Gotha sind weitere mögliche Immobilienangebote aufzufinden, die ähnlich dieser Immobilie sind. Thüringen lautet die geografische Oberkategorie zu dem vorliegenden Angebot. Der Anbieter HONNEF Immobilien Ansprechpartner Peter Honnef & Rudolf Steinert GbR, Schlossberg in 99867 Gotha ist verantwortlich für die Veröffentlichung der Anzeige.
Besucher kamen auf die Seite Wohnungen in Gotha durch folge Begriffe:
Synonyme zur Suche Gotha Wohnungen:
Wohnungen Gotha, Wohnung Gotha, Gotha Wohnung online
|
HONNEF Immobilien |
|
Peter Honnef & Rudolf Steinert GbR |
|
Schlossberg |
|
99867 Gotha |
|
Telefon: |
03621 - 300 000 |
|
Telefax: |
03621 - 300 901 |
|
|
|
|
Maklerwebsite: |
|
|
|
|
|
Steuernummer: |
DE 161812665 |
|
Aufsichtsbehörde: |
Stadtverwaltung Gotha |
Verbraucherinformation:
Online-Streitbeilegung gemäß Art. 14 Abs. 1 ODR-VO: Die Europäische Kommission stellt eine Plattform zur Online-Streitbeilegung (OS) bereit, die Sie hier finden: http://ec.europa.eu/consumers/odr


