Ihr Eigentum: Sonnige 2-Zimmer- Dachgeschoss-Wohnung (Wohnungen Tambach-Dietharz/Thür. Wald)
Land:
DEU
PLZ:
99897
Ort:
Tambach-Dietharz/Thür. Wald
Kaufpreis:
59.800,00 €
Vermittl.-Provision:
4,76 %
Stellplatz (Kauf):
2.500,00 €
Wohnfläche:
51,73 m²
Ihre Objektnr.:
501418
Heizungsart:
Zentralheizung
Befeuerung:
Gas
Stellplatz-Art:
Freiplatz
Zustand:
gepflegt
Stellplätze (Anz.):
1
Zimmer:
2
Baujahr:
1995
vermietet:
1
Ferienobjekt:
1
Art:
Verbrauch
Gültig bis:
20.04.2020
E-Verbrauchskennw.:
140
EP inkl. Warmwasser:
ja
Ausstellungsdatum:
2010-04-21
Diese sanierte Stadtvilla, aufgeteilt in 8 Wohnungen und eine Gewerbeeinheit im Souterrain nebst Keller und Stellplätzen bietet Ihnen eine attraktive Kapitalanlage umgeben von schönster Natur.
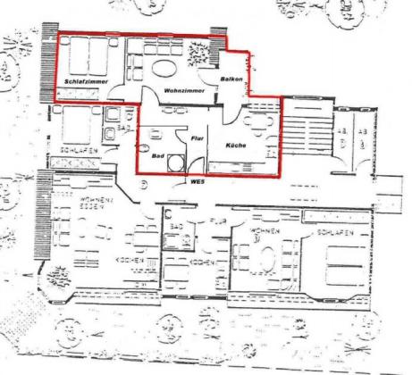
Die zu verkaufende Wohnung liegt im Dachgeschoss und besticht mit einem sonnigen Balkon, großer Wohnküche und weiteren Räumen.
Die Ausstattung können Sie den Bildern entnehmen- die Wohnung verfügt über Fliesen und im Wohnzimmer liegt Laminat in Holzoptik.
Mitten im Thüringer Wald, umgeben von sieben Tälern und eingebettet in eines der größten Waldgebiete Deutschlands liegt Tambach-Dietharz. Hier wird die pure Natur mitgeliefert. Aber auch als wirtschaftlicher Standort genießt Tambach-Dietharz hohen Stellenwert. Mittelständige Unternehmen der Zubehör- und Kunststofffertigung und Gewerbetreibende arbeiten hier im Einklang mit der Natur und liefern "das Brot" zum Leben in dieser Region. Gotha erreicht man in ca. 20 Autominuten. Die Landeshauptstadt Erfurt erreicht man in ca. 40 Autominuten.
Diese Wohnanlage liegt an ein einem Osthang am westlichen Stadtrand. Die Umgebung der Wohnanlage ist ausgesprochen reizvoll und nur wenige Schritte vom Waldrand entfernt.
Baujahr: 1995
Energieausweistyp: Energieverbrauchskennwert
Energiekennwert: 140 kWh/(m²*a)
Energie mit Warmwasser: Ja
Heizungsart: Zentralheizung
Befeuerung/Energieträger: Gas
Der aktuelle Wirtschaftsplan beinhaltet 3.552,00 €/a, zahlbar in Monatsraten von 296,00 €. Davon sind nach Betriebskostenverordnung 2.391,88 €/a auf den Mieter umlagefähig. Folglich wird der Eigentümer nur mit rund 1160,00 €/a belastet.
Die derzeitige Kaltmiete beträgt 3.480,00 €/a.
Landkreis Gotha ist die Oberkategorie in der diese Immobilie gelistet wird samt Immobiliensuche. Die Überschrift für diese Immobilie ist Ihr Eigentum: Sonnige 2-Zimmer- Dachgeschoss-Wohnung. Diese Immobilienanzeige ist unter Tambach-Dietharz/Thür. Wald in der Immobiliendatenbank samt Häuser, Gewerbe, Wohnungen und Grundstücken gespeichert. Das diesem Objekt zugeordnete Bundesland ist Thüringen. Der Anbieter HONNEF Immobilien Ansprechpartner Peter Honnef & Rudolf Steinert GbR, Schlossberg in 99867 Gotha ist verantwortlich für die Veröffentlichung der Anzeige.
Besucher kamen auf die Seite Wohnungen in Tambach-Dietharz/Thür. Wald durch folge Begriffe:
Synonyme zur Suche Tambach-Dietharz/Thür. Wald Wohnungen:
Wohnungen Tambach-Dietharz/Thür. Wald, Wohnung Tambach-Dietharz/Thür. Wald, Tambach-Dietharz/Thür. Wald Wohnung online
|
HONNEF Immobilien |
|
Peter Honnef & Rudolf Steinert GbR |
|
Schlossberg |
|
99867 Gotha |
|
Telefon: |
03621 - 300 000 |
|
Telefax: |
03621 - 300 901 |
|
|
|
|
Maklerwebsite: |
|
|
|
|
|
Steuernummer: |
DE 161812665 |
|
Aufsichtsbehörde: |
Stadtverwaltung Gotha |
Verbraucherinformation:
Online-Streitbeilegung gemäß Art. 14 Abs. 1 ODR-VO: Die Europäische Kommission stellt eine Plattform zur Online-Streitbeilegung (OS) bereit, die Sie hier finden: http://ec.europa.eu/consumers/odr


