Grundstück für die Errichtung einer Pflegeeinrichtung / betreutes Wohnen mit Tagespflege / oder einer Wohnanlage *** mit Altbestand (Grundstücke Daun)
Land:
DEU
PLZ:
54550
Ort:
Daun
Kaufpreis:
535.000,00 €
Vermittl.-Provision:
7,14 % incl. MwSt.
Grundstücksfläche:
4.108,00 m²
Ihre Objektnr.:
54550-12-8664
Altlasten:
nicht bekannt
vermietet:
1
Das noch teilweise mit einem Altbestand (Lagerhallen) bebaute Grundstück, liegt in einem Mischgebiet, mit überwiegend wohnwirtschaftlich genutzten Objekten, Mehrfamilien- und Einfamilienhäusern.
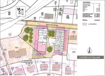
Bebaubar lt. vorhabenbezogenen Bebauungsplan Pfaffenborn, mit einer Pflegeeinrichtung, Tagespflege in Kombination mit betreutem Wohnen, Servicewohnen alternativ auch mit Wohngruppen.
Wohn- und Nutzfläche ca. 3.290 qm
3-geschoßig bebaubar
Sämtliche Medien liegen bereits an dem Grundstück.
Grundstück im Mischgebiet, mit Altbestand.
Eingebettet in ein bestehendes Wohngebiet, an der Boverather Straße.
Der Kreis, dem dieses Objekt zugeordnet ist lautet Landkreis Vulkaneifel. Das hier aufgelistete Objekt kann bei der Immobiliensuche unter der Kategorie Daun gefunden werden. Die Überschrift zu diesem Immobilien-Objekt ist Grundstück für die Errichtung einer Pflegeeinrichtung / betreutes Wohnen mit Tagespflege / oder einer Wohnanlage *** mit Altbestand. Der Anbieter Wohn Konzept Immobilien Ansprechpartner Detlev Schöttelndreier, Postfach 61 02 03 in 30602 Hannover hat dieses Objekt inseriert.
Das diesem Objekt zugeordnete Bundesland ist Rheinland-Pfalz.
Besucher kamen auf die Seite Grundstücke in Daun durch folge Begriffe:
Synonyme zur Suche Daun Grundstücke:
Daun Grundstücke online, Grundstück Daun, Grundstücksmarkt Daun
|
Wohn Konzept Immobilien |
|
Detlev Schöttelndreier |
|
Postfach 61 02 03 |
|
30602 Hannover |
|
Mobil: |
015118430275 |
|
|
|
|
Maklerwebsite: |
|
|
|
|
|
USt.-ID: |
DE257035709 |
|
Aufsichtsbehörde: |
IHK Hannover, Schiffgraben 49, 30175 Hannover |
Verbraucherinformation:
Online-Streitbeilegung gemäß Art. 14 Abs. 1 ODR-VO: Die Europäische Kommission stellt eine Plattform zur Online-Streitbeilegung (OS) bereit, die Sie hier finden: http://ec.europa.eu/consumers/odr


