Großzügiges Baugrundstück in beliebter Lage (Grundstücke Chemnitz)
Land:
DEU
PLZ:
09125
Ort:
Chemnitz
Kaufpreis:
34.000,00 €
Vermittl.-Provision:
3.570,00€ inkl. gesetzlicher Mwst.
Gesamtfläche:
900,00 m²
Grundstücksfläche:
900,00 m²
Ihre Objektnr.:
grst.rs (1/2177)
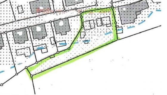
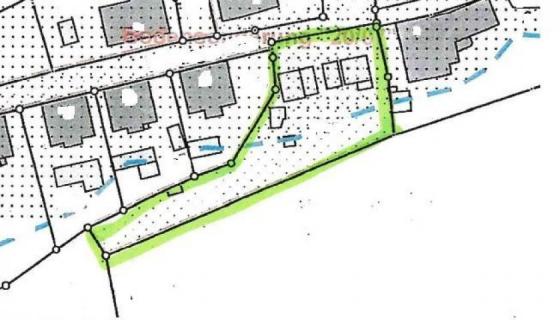
Bei unserem Angebot handelt es sich um 900,00 m² Bauland. Momentan stehen hier noch fünf Garagen die bis zum Ende des Jahres 2022 verpachtet sind. Eine positive Bauvoranfrage liegt bereits für ein Einfamilienhaus (90,00 m² Grundfläche) vor. Alle Medien (Strom, Gas, Wasser usw.) liegt in der Straße vor dem Grundstück und muss nur in das Grundstück gezogen werden.
Das Grundstück liegt im ehemaligen Überschwemmungsgebiet. Allerdings hat die Stadt Chemnitz in den letzten Jahren baulich sehr viel dafür getan, dass dies nicht mehr vorkommen sollte.
Ruhige Wohnlage in Chemnitz/Harthau mit guter Verkehrsanbindung ins Stadtzentrum. Alle Einkaufsmöglichkeiten, Schule und Sozialeinrichtungen liegen in direkter Nachbarschaft.
Alle Daten beziehen sich auf die uns vorliegenden Pläne, uns übergebenen Unterlagen sowie Aussagen des Eigentümers. Für die Richtigkeit dieser Angaben, Irrtümer oder Änderungen können wir keine Haftung übernehmen.
Der Kreis, dem dieses Objekt zugeordnet ist lautet Landkreis Chemnitz. Diese Immobilie ist in der Immobiliendatenbank in der Rubrik Chemnitz abgespeichert. Die Überschrift zu diesem Immobilien-Objekt ist Großzügiges Baugrundstück in beliebter Lage. Der Anbieter Ronald Stopp Immobilien Ansprechpartner Ronald Stopp, Vetterstraße 5 in 09126 Chemnitz hat dieses Objekt inseriert.
Die Immobiliensuche nach günstigen Immobilien führt viele weitere Objekte unter Sachsen.
Besucher kamen auf die Seite Grundstücke in Chemnitz durch folge Begriffe:
Synonyme zur Suche Chemnitz Grundstücke:
Chemnitz Grundstücke online, Grundstück Chemnitz, Grundstücksmarkt Chemnitz
|
Ronald Stopp Immobilien |
|
Ronald Stopp |
|
Vetterstraße 5 |
|
09126 Chemnitz |
|
Telefon: |
037191286501 |
|
Telefax: |
037169724934 |
|
|
|
|
Maklerwebsite: |
|
|
|
|
|
Steuernummer: |
214/278/00366 |
|
Aufsichtsbehörde: |
Ordnungsamt Chemnitz |
Verbraucherinformation:
Online-Streitbeilegung gemäß Art. 14 Abs. 1 ODR-VO: Die Europäische Kommission stellt eine Plattform zur Online-Streitbeilegung (OS) bereit, die Sie hier finden: https://ec.europa.eu/consumers/odr


