Großzügige 4-Raum-Whg. mit Balkon, Dachterrasse, Whirlpool-Wanne und Tageslichtbad! Vermietet! (Wohnungen Zwickau)
Land:
DEU
Strasse:
Döhnerstraße 24
PLZ:
08060
Ort:
Zwickau
Adresse anzeigen:
1
Etage (im Haus):
2
Kaufpreis:
104.000,00 €
Hausgeld:
535,00 €
Vermittl.-Provision:
3,57 % des Kaufpreises inkl. 19 % MwSt.
Wohnfläche:
99,99 m²
Ihre Objektnr.:
Dö24-08
Objekttyp:
Maisonette
Heizungsart:
Zentralheizung
Befeuerung:
Gas
Zustand:
gepflegt
Bad:
Fenster
Zimmer:
4
Schlafzimmer:
3
Badezimmer:
1
Baujahr:
1901
vermietet:
1
denkmalgeschuetzt:
1
Art:
Verbrauch
Gültig bis:
2028-08-09
E-Verbrauchskennw.:
124.10
EP inkl. Warmwasser:
ja
Baujahr:
2000
Jahrgang:
2014
Gebäudeart:
wohn
Das dreigeschossige Mehrfamilien-Wohnhaus Döhnerstraße 24 wurde 1901 als vollunterkellerter Ziegelmassivbau errichtet. Das Eckhaus mit schöner Klinkerfassade steht unter Denkmalschutz und hinterlässt einen gepflegten Eindruck.
Im Jahr 2000 wurde das Gebäude umfassend modernisiert.
Die Sanierungsbeschreibung schließt alle üblichen Gebäudeteile und Gewerke ein:
- Versorgungsanschlüsse,
- Rohbau, Keller, Treppenhaus, Fassade, Dach,
- Fußböden, Innenwände und Decken,
- Fenster und Türen,
- Bodenbeläge, Fliesen und Malerarbeiten,
- Elektro-, Sanitär, Heizungsinstallation,
- neue Balkonanlage (Stahlkonstruktion),
- Außenanlagen.
Nach Abschluss der Sanierung verfügt das Haus über neun moderne Wohnungen und einer Gewerbeeinheit.
Das Haus wird über eine Gas-Zentralheizung mit zentraler Warmwasserbereitung beheizt. Für die Bewohner steht im Keller ein geräumiger Trockenraum zur Verfügung.
Das zum Objekt gehörende Grundstück umfasst eine Fläche von 280 m². Hinter dem Haus ist eine kleine Grünanlage mit Wäscheplatz und Stellfläche für Abfallbehälter vorhanden.
Das Abstellen von PKW ist in den umliegenden Straßen möglich.
2022 wurden im Kellerbereich umfangreiche Sanierungen in Höhe von über 50.000 EUR durchgeführt.
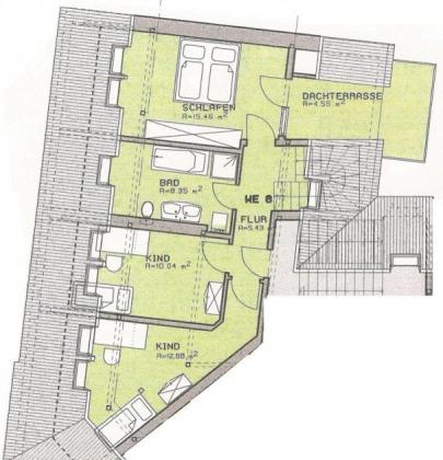
Die ca. 100 m² große 4-Raum Maisonette-Wohnung befindet sich im 2. Obergeschoss bzw. Dachgeschoss.
Sie teilt sich lt. Planung wie folgt auf:
2. Obergeschoss:
- Flur: 6,49 m²
- Gäste WC: 1,82 m²
- Wohnzimmer: 25,02 m²
- Küche mit Zugang Balkon: 7,70 m²
- Balkon
Dachgeschoss:
- Flur: 5,43 m²
- Kinderzimmer 1: 12,88 m²
- Kinderzimmer 2: 10,04 m²
- Bad mit Wanne, Dusche und Fenster: 8,35 m²
- Schlafzimmer mit Zugang Dachterrasse: 15,46 m²
- Dachterrasse
Der Waschmaschinenanschluss befindet sich im Badezimmer.
Mamor-Fensterbänke in der Wohnung sowie eine Whirlpool-Badewanne im Bad verleihen der Wohnung eine hochwertige Ausstattung.
Zur Wohnung gehört außerdem ein Kellerabteil mit der Nr. 8.
Die ca. 90.000 Einwohner zählende Stadt Zwickau liegt im Zentrum des westsächsischen Industriegebietes am Nordrand des Erzgebirges. Sie ist die viertgrößte Stadt im Freistaat Sachsen und hat als Oberzentrum einen Einzugsbereich von ca. 480.000 Menschen. Die Stadt blickt zurück auf eine 900jährige Geschichte und hat Persönlichkeiten wie Robert Schumann, August Horch und Max Pechstein hervorgebracht.
Die geografische Lage zwischen den Autobahnen A 4, A 72 und der Schnellstraße B 93 garantiert optimale Erreichbarkeit und schnelle Verbindung zu anderen Wirtschaftszentren. Zwickau ist im Bereich Wirtschaft und Arbeitsmarkt positiv aufgestellt. Bei einem Städteranking der IHK zur Standortattraktivität Südwestsachsens belegte Zwickau einen der vorderen Plätze. Punkten konnte die Stadt, insbesondere bei Industrieumsatz je Einwohner, verfügbaren Gewerbeflächen, den hohen Anteil an sozialversicherungspflichtigen Beschäftigten sowie bei der einzelhandelsrelevanten Kaufkraft und auch der Breitbandverfügbarkeit.
Die von einem Grüngürtel umschlossene Innenstadt beherbergt herausragende Bauwerke. In der aufwendig sanierten Altstadt rund um den Dom St. Marien finden Sie zahlreiche Restaurants, Cafés und Geschäfte. Vielfältige kulturelle Einrichtungen und Veranstaltungen sowie ein breites Spektrum an Ausflugszielen bieten den Bürgern und Gästen umfangreiche Möglichkeiten zur Freizeitgestaltung.
Die Immobilie befindet sich im westlichen Stadtteil von Zwickau. Marienthal gehört zu einer bevorzugten Wohngegend mit prozentual niedrigem Leerstand.
Die Anlage befindet sich in unmittelbarer Nähe zum Heinrich-Braun-Krankenhaus und ist daher sehr beliebt bei Auszubildenden und Klinikpersonal.
Einkaufsmöglichkeiten wie Discounter, Apotheken und Baumärkte befinden sich in näherer Umgebung und sind teilweise fußläufig erreichbar.
Durch Bus und Straßenbahn besteht eine gute Verkehrsanbindung zum Stadtzentrum und in die Umgebung. Durch ein gut ausgebautes System von Zubringern erreichen Sie auch schnell die Autobahnen A4 und A72.
Besonders zu erwähnen: der Stadtpark Marienthal, eine schöne Parkanlage auf der gegenüberliegenden Seite der Döhnerstraße.
Die Wohnung ist vermietet. Der aktuelle Mietvertrag läuft seit 06/2011. Die Kaltmiete beträgt 580,00 EUR, die Betriebskosten 178,00 EUR, die Heizkosten 274,00 EUR und die Gesamtmiete 1.032,00 EUR.
Der Erwerber wird Mitglied einer Wohneigentümergemeinschaft WEG mit einem Miteigentumsanteil von 173/1.000. Es ist lt. Wirtschaftsplan 2025 durch den Erwerber ein monatliches Hausgeld in Höhe von 535,00 EUR zu zahlen. Davon sind bei Vermietung ca. 2/3 als Betriebskosten umlegbar.
Der Energieausweis ist dem Exposé als pdf-Dokument beigefügt.
Bitte nutzen Sie das Kontaktformular, um uns Ihre Fragen bzw. Ihren Besichtigungswunsch mitzuteilen. Wir nehmen schnellstmöglich den Kontakt zu Ihnen auf bzw. senden Ihnen gern ergänzende Unterlagen entsprechend Ihrer Anfrage zu.
Alle Angaben beruhen auf Aussagen der Eigentümer bzw. basieren auf den uns bis dato vorliegenden Unterlagen und erfolgen ohne Gewähr. Irrtum und zwischenzeitlicher Verkauf bleiben vorbehalten. Exposé © 2026, Immobilienbüro Kühn GmbH & Co. KG.
Landkreis Zwickau ist die Oberkategorie in der diese Immobilie gelistet wird samt Immobiliensuche. Die Überschrift für diese Immobilie ist Großzügige 4-Raum-Whg. mit Balkon, Dachterrasse, Whirlpool-Wanne und Tageslichtbad! Vermietet!. Das hier vorliegende Exposé ist bei Immobilienfrontal unter der Kategorie Zwickau abgespiechert. Dem Bundesland Sachsen ist die Immobilie zugewiesen samt weiteren Immobilienangeboten. Der Anbieter Immobilienbüro Kühn GmbH & Co. KG Ansprechpartner Wolfgang Kühn, Jahnstraße 17 in 08058 Zwickau ist verantwortlich für die Veröffentlichung der Anzeige.
Besucher kamen auf die Seite Wohnungen in Zwickau durch folge Begriffe:
Synonyme zur Suche Zwickau Wohnungen:
Wohnungen Zwickau, Wohnung Zwickau, Zwickau Wohnung online
Immobilienbüro Kühn GmbH & Co. KG |
|
Wolfgang Kühn |
|
Jahnstraße 17 |
|
08058 Zwickau |
|
Telefon: |
0375282003 |
|
|
|
|
Maklerwebsite: |
|
|
|
|
|
USt.-ID: |
DE152847296 |
|
Handelsregister-Nr: |
HRA 10300 AG Chemnitz |
|
Aufsichtsbehörde: |
Berufsaufsichtsbehörde Stadt Zwickau |
Verbraucherinformation:
Online-Streitbeilegung gemäß Art. 14 Abs. 1 ODR-VO: Die Europäische Kommission stellt eine Plattform zur Online-Streitbeilegung (OS) bereit, die Sie hier finden: https://ec.europa.eu/consumers/odr


