Große Maisonette DG 3-Zi. mit Laminat, sep.WC und Balkon in zentraler Lage! (Wohnungen Zwickau)
Land:
DEU
Strasse:
Leipziger Straße 38
PLZ:
08058
Ort:
Zwickau
Adresse anzeigen:
1
Kaltmiete:
639,00 €
Warmmiete:
889,00 €
Nebenkosten:
250,00 €
Kaution:
1500
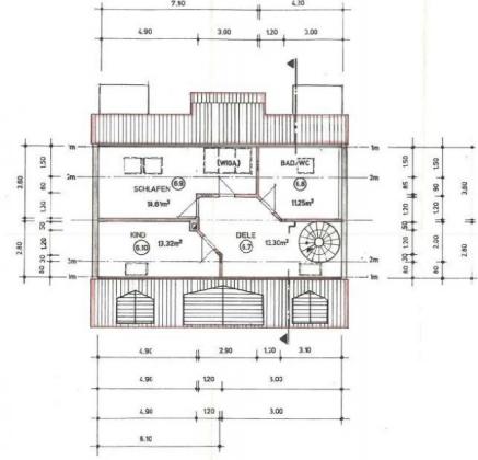
Wohnfläche:
101,00 m²
Ihre Objektnr.:
lei38.006 (1/3119)
Objekttyp:
Maisonette
Heizungsart:
Zentralheizung
Befeuerung:
Gas
Boden:
Fliesen
Zustand:
Teil- / Vollsaniert
Bad:
Fenster
Zimmer:
3
- Laminat
- Balkon
- sep. WC
- Keller
- Hausmeister
Ruhige Wohnlage in Zwickau mit guter Verkehrsanbindung ins Stadtzentrum. Alle Einkaufsmöglichkeiten, Schule und Sozialeinrichtungen liegen in direkter Nachbarschaft.
Alle Daten beziehen sich auf die uns vorliegenden Pläne, uns übergebenen Unterlagen sowie Aussagen des Eigentümers. Für die Richtigkeit dieser Angaben, Irrtümer oder Änderungen können wir keine Haftung übernehmen.
Der Energieausweis ist bereits durch uns beim Eigentümer angefragt, dieser liegt uns aber noch nicht vor und wird spätestens zur Besichtigung nachgereicht.
Die hier angegebenen Nebenkosten sind lediglich ein Mindestbedarfsansatz. Je nach politischer und wirtschaftlicher Lage werden diese dann eventuell neu zwischen den Mietvertragsparteien festgelegt und ausgehandelt.
Landkreis Zwickau ist die Oberkategorie in der diese Immobilie gelistet wird samt Immobiliensuche. Die Überschrift für diese Immobilie ist Große Maisonette DG 3-Zi. mit Laminat, sep.WC und Balkon in zentraler Lage!. Das hier vorliegende Exposé ist bei Immobilienfrontal unter der Kategorie Zwickau abgespiechert. Dem Bundesland Sachsen ist die Immobilie zugewiesen samt weiteren Immobilienangeboten. Der Anbieter Ronald Stopp Immobilien Ansprechpartner Ronald Stopp, Vetterstraße 5 in 09126 Chemnitz ist verantwortlich für die Veröffentlichung der Anzeige.
Besucher kamen auf die Seite Wohnungen in Zwickau durch folge Begriffe:
Synonyme zur Suche Zwickau Wohnungen:
Wohnungen Zwickau, Wohnung Zwickau, Zwickau Wohnung online
|
Ronald Stopp Immobilien |
|
Ronald Stopp |
|
Vetterstraße 5 |
|
09126 Chemnitz |
|
Telefon: |
037191286501 |
|
Telefax: |
037169724934 |
|
|
|
|
Maklerwebsite: |
|
|
|
|
|
Steuernummer: |
214/278/00366 |
|
Aufsichtsbehörde: |
Ordnungsamt Chemnitz |
Verbraucherinformation:
Online-Streitbeilegung gemäß Art. 14 Abs. 1 ODR-VO: Die Europäische Kommission stellt eine Plattform zur Online-Streitbeilegung (OS) bereit, die Sie hier finden: https://ec.europa.eu/consumers/odr


