Große 3-Zimmer Maisonette mit Einbauküche, zwei Bädern, Stellplatz und Laminat in ruhiger Lage! (Wohnungen Chemnitz)
Land:
DEU
PLZ:
09130
Ort:
Chemnitz
Kaufpreis:
95.000,00 €
Vermittl.-Provision:
4.500,00 EUR inkl. gesetzlicher MwSt.
Stellplatz (Kauf):
25,00 €
Wohnfläche:
88,59 m²
Ihre Objektnr.:
tschai74.012_VK (1/3211)
Objekttyp:
Maisonette
Heizungsart:
Zentralheizung
Befeuerung:
Gas
Stellplatz-Art:
Freiplatz
Boden:
Fliesen
Zustand:
Teil- / Vollsaniert
Bad:
Fenster
Küche:
EBK
Stellplätze (Anz.):
1
Zimmer:
3
Baujahr:
1905
Laminat,
Wannenbad mit Fenster,
Duschbad mit Fenster,
Hausmeister,
neue Einbauküche,
Zentralheizung,
Außenstellplatz
Zentrale Wohnlage in Chemnitz / Sonnenberg mit guter Verkehrsanbindung ins Stadtzentrum. Alle Einkaufsmöglichkeiten, Schule und Sozialeinrichtungen liegen in direkter Nachbarschaft.
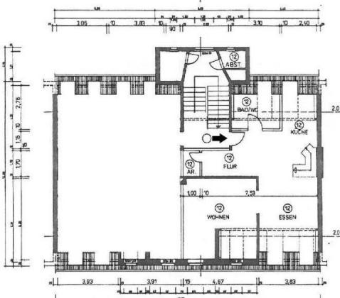
Alle Daten beziehen sich auf die uns vorliegenden Pläne, uns übergebenen Unterlagen sowie Aussagen des Eigentümers. Für die Richtigkeit dieser Angaben, Irrtümer oder Änderungen können wir keine Haftung übernehmen.
Die hier angegebenen Nebenkosten sind lediglich ein Mindestbedarfsansatz. Je nach politischer und wirtschaftlicher Lage werden diese dann eventuell neu zwischen den Mietvertragsparteien festgelegt und ausgehandelt.
Die Wohnung leerstehend und wird derzeit für 518,00 EUR KM aktiv zur Vermietung angeboten.
Landkreis Chemnitz ist die Oberkategorie in der diese Immobilie gelistet wird samt Immobiliensuche. Die Überschrift für diese Immobilie ist Große 3-Zimmer Maisonette mit Einbauküche, zwei Bädern, Stellplatz und Laminat in ruhiger Lage!. Diese Immobilie ist in der Immobiliendatenbank in der Rubrik Chemnitz abgespeichert. Die Immobiliensuche nach günstigen Immobilien führt viele weitere Objekte unter Sachsen. Der Anbieter Ronald Stopp Immobilien Ansprechpartner Ronald Stopp, Vetterstraße 5 in 09126 Chemnitz ist verantwortlich für die Veröffentlichung der Anzeige.
Besucher kamen auf die Seite Wohnungen in Chemnitz durch folge Begriffe:
Synonyme zur Suche Chemnitz Wohnungen:
Wohnungen Chemnitz, Wohnung Chemnitz, Chemnitz Wohnung online
|
Ronald Stopp Immobilien |
|
Ronald Stopp |
|
Vetterstraße 5 |
|
09126 Chemnitz |
|
Telefon: |
037191286501 |
|
Telefax: |
037169724934 |
|
|
|
|
Maklerwebsite: |
|
|
|
|
|
Steuernummer: |
214/278/00366 |
|
Aufsichtsbehörde: |
Ordnungsamt Chemnitz |
Verbraucherinformation:
Online-Streitbeilegung gemäß Art. 14 Abs. 1 ODR-VO: Die Europäische Kommission stellt eine Plattform zur Online-Streitbeilegung (OS) bereit, die Sie hier finden: https://ec.europa.eu/consumers/odr


