Gesucht - Gefunden (Wohnungen Gotha)
Land:
DEU
PLZ:
99867
Ort:
Gotha
Kaltmiete:
340,00 €
Warmmiete:
510,00 €
Nebenkosten:
170,00 €
Kaution:
1020.00
Wohnfläche:
51,02 m²
Ihre Objektnr.:
368580
Heizungsart:
Zentralheizung
Befeuerung:
Gas
Stellplatz-Art:
Freiplatz
Stellplätze (Anz.):
1
Zimmer:
2
Baujahr:
1994
Art:
Verbrauch
Gültig bis:
30.11.2028
E-Verbrauchskennw.:
139
Ausstellungsdatum:
2018-12-02
Liebevoll saniertes Mehrfamilien-Fachwerkhaus.
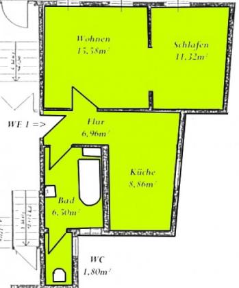
Das Bad ist gefliest und mit Badewanne, die Toilette ist mit einer extra Tür vom Badezimmer getrennt. Bad und Küche sind mit Fenster ausgestattet. Die Wohnung ist mit Parkettboden ausglegt. Eine offene Küche ermöglicht, den Flurbereich effektiv zu nutzen. Ein Kellerraum ist ebenfalls vorhanden.
Nur wenige Minuten vom Stadtzentrum entfernt, steht das Fachwerkhaus in der Remstädter Straße.
Auf dem Lageplan erkennen Sie, dass die Remstädter Straße in Richtung Gotha-Nord liegt. In unmittelbarer Nähe befinden sich die Haltestellen des öffentlichen Nahverkehrs.
Befeuerung/Energieträger: Erdgas leicht
Heizungsart: Zentralheizung
Energieausweistyp: Verbrauchsausweis
Energiekennwert: 139 kWh/(m²*a)
Baujahr: 1994
Landkreis Gotha ist die Oberkategorie in der diese Immobilie gelistet wird samt Immobiliensuche. Die Überschrift für diese Immobilie ist Gesucht - Gefunden. Unter Gotha sind weitere mögliche Immobilienangebote aufzufinden, die ähnlich dieser Immobilie sind. Thüringen lautet die geografische Oberkategorie zu dem vorliegenden Angebot. Der Anbieter HONNEF Immobilien Ansprechpartner Peter Honnef & Rudolf Steinert GbR, Schlossberg in 99867 Gotha ist verantwortlich für die Veröffentlichung der Anzeige.
Besucher kamen auf die Seite Wohnungen in Gotha durch folge Begriffe:
Synonyme zur Suche Gotha Wohnungen:
Wohnungen Gotha, Wohnung Gotha, Gotha Wohnung online
|
HONNEF Immobilien |
|
Peter Honnef & Rudolf Steinert GbR |
|
Schlossberg |
|
99867 Gotha |
|
Telefon: |
03621 - 300 000 |
|
Telefax: |
03621 - 300 901 |
|
|
|
|
Maklerwebsite: |
|
|
|
|
|
Steuernummer: |
DE 161812665 |
|
Aufsichtsbehörde: |
Stadtverwaltung Gotha |
Verbraucherinformation:
Online-Streitbeilegung gemäß Art. 14 Abs. 1 ODR-VO: Die Europäische Kommission stellt eine Plattform zur Online-Streitbeilegung (OS) bereit, die Sie hier finden: http://ec.europa.eu/consumers/odr


