Geräumige 4-Zimmer-Wohnung mit 2 Badezimmern und Einbauküche (Wohnungen Freiberg)
Land:
DEU
Strasse:
Humboldtstraße 54
PLZ:
09599
Ort:
Freiberg
Adresse anzeigen:
1
Etage (im Haus):
1
Kaltmiete:
650,00 €
Warmmiete:
1.010,00 €
Nebenkosten:
360,00 €
Heizkosten:
230,00 €
Wohnfläche:
103,00 m²
Ihre Objektnr.:
705
Objekttyp:
Etage
Heizungsart:
Zentralheizung
Befeuerung:
Gas
Bad:
Fenster
Küche:
EBK
Zimmer:
4
Badezimmer:
2
Baujahr:
1902
Gartennutzung
Kabel/Sat/TV
Abstellraum
Art:
Verbrauch
Gültig bis:
2032-12-05
E-Verbrauchskennw.:
123.20
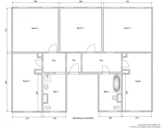
Wir freuen uns, Ihnen diese geräumige Etagenwohnung in Freiberg zur Miete anbieten zu können. Mit einer Wohnfläche von ca. 103 m² bietet diese Wohnung ausreichend Platz für Sie und Ihre Familie.
Die Wohnung entstand durch das Zusammenlegen zweier Wohneinheiten. Sie verfügt über 4 Zimmer, die Ihnen vielfältige Nutzungsmöglichkeiten bieten. Zudem stehen Ihnen 2 Badezimmer, jeweils mit Fenster, zur Verfügung. Eins ist mit einer Dusche, das andere mit einer Badewanne ausgestattet.
Einbau-Deckenstrahler in mehreren Räumen sowie eine Ambiente-Beleuchtung im Wannenbad sorgen für eine angenehme Lichtstimmung.
Die vorhandene Einbauküche besteht aus Ober- und Unterschränken, Spüle und Mikrowelle sowie Dunstabzugshaube und bietet Platz für weitere eigene Elektrogeräte.
Ein Kellerabteil sowie zwei Abstellkammern auf halber Treppe bieten zusätzlichen Stauraum für Ihre persönlichen Gegenstände. Der Garten hinter dem Haus steht allen Mietern zur gemeinsamen Nutzung zur Verfügung.
Wenn Sie auf der Suche nach einer großzügigen Etagenwohnung in Freiberg sind, sollten Sie sich diese Immobilie nicht entgehen lassen. Kontaktieren Sie uns gerne für weitere Informationen oder um einen Besichtigungstermin zu vereinbaren.
Die Betriebskosten sind unter Beachtung der aktuellen Marktsituation nach bestem Wissen kalkuliert. Wohin die Entwicklung in Zukunft geht, lässt sich nicht seriös abschätzen.
Landkreis Mittelsachsen ist die Oberkategorie in der diese Immobilie gelistet wird samt Immobiliensuche. Die Überschrift für diese Immobilie ist Geräumige 4-Zimmer-Wohnung mit 2 Badezimmern und Einbauküche. Das hier vorliegende Exposé ist bei Immobilienfrontal unter der Kategorie Freiberg abgespiechert. Die Immobiliensuche nach günstigen Immobilien führt viele weitere Objekte unter Sachsen. Der Anbieter G. Richter Immobilien / Imseri Facility Management Ansprechpartner Uwe Richter, Leipziger Straße in 09599 Freiberg ist verantwortlich für die Veröffentlichung der Anzeige.
Besucher kamen auf die Seite Wohnungen in Freiberg durch folge Begriffe:
Synonyme zur Suche Freiberg Wohnungen:
Wohnungen Freiberg, Wohnung Freiberg, Freiberg Wohnung online
|
G. Richter Immobilien / Imseri Facility Management |
|
Uwe Richter |
|
Leipziger Straße |
|
09599 Freiberg |
|
Telefon: |
03731-39800 |
|
Telefax: |
03731-398020 |
|
Mobil: |
0176-10085374 |
|
|
|
|
Maklerwebsite: |
|
|
|
|
|
Steuernummer: |
220/262/01946 |
|
Handelsregister: |
Chemnitz |
|
Handelsregister-Nr: |
HRA 2968 Chemnitz |
|
Aufsichtsbehörde: |
Freiberg |
Verbraucherinformation:
Online-Streitbeilegung gemäß Art. 14 Abs. 1 ODR-VO: Die Europäische Kommission stellt eine Plattform zur Online-Streitbeilegung (OS) bereit, die Sie hier finden: http://ec.europa.eu/consumers/odr


