Frisch renoviert! 2-Raumwhg. mit Balkon, TG-Stpl. (duplex, saniert), Neubau 1997! (Wohnungen Glauchau)
Land:
DEU
Strasse:
Obere Straße 10c
PLZ:
08371
Ort:
Glauchau
Adresse anzeigen:
1
Etage (im Haus):
1
Kaltmiete:
320,00 €
Warmmiete:
485,00 €
Nebenkosten:
165,00 €
Kaution:
960
Wohnfläche:
53,00 m²
Ihre Objektnr.:
OB10c-09VM
Objekttyp:
Etage
Heizungsart:
Zentralheizung
Boden:
Fliesen
Bad:
Wanne
Zimmer:
2
Schlafzimmer:
1
Badezimmer:
1
Baujahr:
1997
Art:
Verbrauch
Gültig bis:
2027-07-13
E-Verbrauchskennw.:
81.00
EP inkl. Warmwasser:
ja
Baujahr:
1997
Jahrgang:
2014
Gebäudeart:
wohn
Das Objekt wurde lt. Energieausweis 1997 massiv erbaut.
Im Jahr 2024 erfolgte eine Sanierung aller Doppelparker-Systeme in der Tiefgarage. Die Wohnung wurde 2025 frisch saniert und ist bezugsfertig.
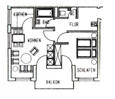
Die ca. 53 m² große 2-Raum-Wohnung befindet sich im 1. OG und teilt sich wie folgt auf:
- Flur
- Küche mit Fenster
- Badezimmer mit Wanne
- separates WC
- Schlafzimmer mit Zugang Balkon
- Wohnzimmer mit Zugang Balkon
- Balkon
Zur Wohnung gehört ein Tiefgaragen-Stellplatz (Doppelparker) mit der Nr. 22 sowie ein Kellerabteil. Der Stellplatz Nr. 22 ist die obere Plattform des Duplex-Systems.
Reinholdshain ist ein Ortsteil der Großen Kreisstadt Glauchau im Landkreis Zwickau (Sachsen).
Das Mehrfamilienhaus befindet sich in einer ruhigen Wohnlage. In ca. 7 Minuten (per Auto) erreicht man ein Kaufland, einen Lidl und einen Netto. Das Tiergehege Glauchau ist ca. 8 Minuten mit dem Auto entfernt. Den Bahnhof Glauchau erreicht man in 2,8 km. Auch das Schloss Glauchau, das Stadttheater sowie das Rudolf-Virchow-Klinikum Glauchau befinden sich in der näheren Umgebung.
Landkreis Zwickau ist die Oberkategorie in der diese Immobilie gelistet wird samt Immobiliensuche. Die Überschrift für diese Immobilie ist Frisch renoviert! 2-Raumwhg. mit Balkon, TG-Stpl. (duplex, saniert), Neubau 1997!. Unter Glauchau sind weitere mögliche Immobilienangebote aufzufinden, die ähnlich dieser Immobilie sind. Das dieser Immobilie zugeordnete Bundes-Land ist Sachsen. Der Anbieter Immobilienbüro Kühn GmbH & Co. KG Ansprechpartner Wolfgang Kühn, Jahnstraße 17 in 08058 Zwickau ist verantwortlich für die Veröffentlichung der Anzeige.
Besucher kamen auf die Seite Wohnungen in Glauchau durch folge Begriffe:
Synonyme zur Suche Glauchau Wohnungen:
Wohnungen Glauchau, Wohnung Glauchau, Glauchau Wohnung online
Immobilienbüro Kühn GmbH & Co. KG |
|
Wolfgang Kühn |
|
Jahnstraße 17 |
|
08058 Zwickau |
|
Telefon: |
0375282003 |
|
|
|
|
Maklerwebsite: |
|
|
|
|
|
USt.-ID: |
DE152847296 |
|
Handelsregister-Nr: |
HRA 10300 AG Chemnitz |
|
Aufsichtsbehörde: |
Berufsaufsichtsbehörde Stadt Zwickau |
Verbraucherinformation:
Online-Streitbeilegung gemäß Art. 14 Abs. 1 ODR-VO: Die Europäische Kommission stellt eine Plattform zur Online-Streitbeilegung (OS) bereit, die Sie hier finden: https://ec.europa.eu/consumers/odr


