* Flexible Nutzung: Eigennutzung, Kapitalanlage oder beides zugleich, beide DHH stehen zum Verkauf * (Häuser Rhauderfehn)
Land:
DEU
PLZ:
26817
Ort:
Rhauderfehn
Kaufpreis:
239.000,00 €
Vermittl.-Provision:
4,17 % Käuferprovision (inkl. gesetzl. MwSt.)
Wohnfläche:
109,00 m²
Nutzfläche:
12,50 m²
Grundstücksfläche:
461,50 m²
Ihre Objektnr.:
1057-489-CT
Objekttyp:
Doppelhaushaelfte
Befeuerung:
Gas
Zustand:
gepflegt
Stellplätze (Anz.):
1.00
Zimmer:
4
Schlafzimmer:
3
Badezimmer:
1
Baujahr:
2005
Art:
Bedarf
Gültig bis:
2036-01-11
Endenergiebedarf:
107.00
Dieses Angebot beinhaltet 1 Doppelhaushälfte!
Diese gepflegte Doppelhaushälfte aus dem Baujahr 2005 befindet sich auf einem Gesamtgrundstück von ca. 923 m², wobei der Einheit ein anteiliger Grundstücksbereich von ca. 461,5 m² zugeordnet ist.
Die Immobilie überzeugt durch eine durchdachte Raumaufteilung sowie eine solide und zeitlose Bauweise.
Die Doppelhaushälfte ist derzeit vermietet und bietet dadurch attraktive Perspektiven für Kapitalanleger ebenso wie für Eigennutzer mit langfristiger Planung.
Dank der separaten Gas- und Stromzähler ist eine klare Abrechnung gewährleistet.
Ebenso eröffnet sich die Möglichkeit, eine Haushälfte selbst zu bewohnen und die zweite weiterhin zu vermieten, sofern beide Einheiten erworben werden.
Die Heizungsanlage wurde laut Eigentümer regelmäßig gewartet.
Ein Carport sowie eine überdachte Terrasse sorgen für zusätzlichen Komfort und runden das Angebot ab.
Innenaufnahmen gibt es leider nicht, jedoch sind die 2 DHH in einem gepflegtem Zustand!
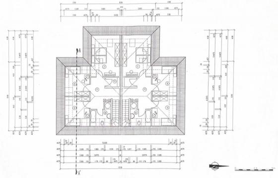
Wohn- und Nutzflächen / Raumaufteilung
Erdgeschoss
•Diele: ca. 9,37 m²
•Gäste-WC: ca. 2,43 m²
•Küche: ca. 17,77 m²
•Wohn-/Esszimmer: ca. 28,23 m²
Gesamt EG: ca. 57,80 m²
Obergeschoss
•Diele: ca. 10,81 m²
•Bad: ca. 5,33 m²
•Schlafzimmer: ca. 16,25 m²
•Kinderzimmer 1: ca. 9,65 m²
•Kinderzimmer 2: ca. 9,65 m²
Gesamt OG: ca. 51,69 m²
Wohnfläche gesamt je DHH: ca. 109,49 m²
Nutzflächen je DHH
•Vorratsraum: ca. 2,97 m²
•Hausanschlussraum: ca. 7,27 m²
•Abstellraum: ca. 2,27 m²
Gesamt Nutzfläche: ca. 12,51 m²
Angaben zum Energieausweis:
- Art: Bedarfsausweis
- Gültig bis: 11.01.2036
- Baujahr: 2005
- Endenergieverbrauch: 107,0 kWh (m²*a)
- Wesentlicher Energieträger: Erdgas LL
- Energieeffiziensklasse: D
+++ Highlights +++
- Zwei Doppelhaushälften auf einem Gesamtgrundstück von ca. 923 m²
Jeweils ca. 461,5 m² Grundstücksanteil pro Haushälfte
- Baujahr 2005
- Aktuell vermietet – sofortige Mieteinnahmen möglich
- Ideal für Kapitalanleger oder kombinierte Nutzung
- Möglichkeit: eine Haushälfte selbst bewohnen und die andere vermieten
- Separate Gas- und Stromzähler für beide Einheiten
- Heizungsanlagen laut Eigentümer regelmäßig gewartet
- Jeweils ca. 109,49 m² Wohnfläche pro Doppelhaushälfte
- Praktische Nutzflächen von ca. 12,51 m² je Einheit
- Durchdachte Raumaufteilung mit 4 Zimmern
- Großzügiges Wohn- und Esszimmer
- Carport pro Haushälfte vorhanden
- Überdachte Terrasse pro Einheit
- Attraktive Möglichkeit für Mehrgenerationenwohnen oder Wohnen & Vermieten
- Langfristig flexible Nutzungsperspektive
Die Immobilie befindet sich in einer ruhigen Wohnlage der Gemeinde Rhauderfehn im Landkreis Leer in Ostfriesland.
Die Umgebung ist geprägt von gepflegten Einfamilienhäusern, viel Grün und einer familienfreundlichen Nachbarschaft.
Hier verbindet sich naturnahes Wohnen mit einer guten infrastrukturellen Anbindung.
Im Ortskern von Rhauderfehn stehen zahlreiche Einkaufsmöglichkeiten für den täglichen Bedarf, Supermärkte, Bäckereien, Apotheken sowie Ärzte und Banken zur Verfügung.
Auch Kindergärten, Grundschulen und weiterführende Schulen sind gut erreichbar. Verschiedene Freizeit- und Sportangebote, Rad- und Spazierwege entlang der typischen Fehnlandschaft sowie Vereine sorgen für eine hohe Lebensqualität.
Die Verkehrsanbindung ist ebenfalls vorteilhaft: Über die nahegelegenen Bundesstraßen sind die Städte Leer, Papenburg und auch die Autobahn A31 schnell erreichbar. Von dort bestehen gute Verbindungen in Richtung Emden, Oldenburg und in die Niederlande.
Insgesamt bietet die Lage eine attraktive Kombination aus ruhigem Wohnen, guter Infrastruktur und der typisch ostfriesischen Landschaft – ideal für Familien, Paare oder Ruhesuchende.
Es liegt ein Energiebedarfsausweis vor.
Dieser ist gültig bis 11.1.2036.
Endenergiebedarf beträgt 107.00 kwh/(m²*a).
Wesentlicher Energieträger der Heizung ist Erdgas leicht.
Das Baujahr des Objekts lt. Energieausweis ist 2005.
Die Energieeffizienzklasse ist D.
**** BITTE SCHICKEN SIE UNS EINE E-Mail, DAMIT WIR IHRE ANFRAGE BERÜCKSICHTIGEN KÖNNEN !!!! ****
Christian Tammen
RE/MAX Immo-Team
geprüfter Immobilienmakler IHK
nach § 34c GewO
Tel.: 04961/ 77 909-19
E-Mail: christian.tammen@remax.de
Facebook & Instagram: Immobilien Tammen
Provision: 4,17 % vom Kaufpreis inkl. MwSt.
Impressum:
Vertretungsberechtigter: Christian Tammen
Genehmigung nach § 34 c Abs. 1 1 Satz 1 Nr. 1 GewO
Berufsaufsichtsbehörde: IHK für Ostfriesland und Papenburg, Postfach 1752, 26697 Emden
USt.ID: 053/144/01890
Der Kreis, dem dieses Objekt zugeordnet ist lautet Landkreis Leer. * Flexible Nutzung: Eigennutzung, Kapitalanlage oder beides zugleich, beide DHH stehen zum Verkauf * ist die Kopfzeile diesen Objektes. Unter Rhauderfehn gibt es zahlreiche Objekte die Ihre Immobiliensuche ergänzen. Das diesem Objekt zugeordnete Bundesland ist Niedersachsen.
Der Anbieter RE/MAX Immo-Team Ansprechpartner , Kirchstraße 13 in 26871 Papenburg hat dieses Objekt inseriert.
Besucher kamen auf die Seite Häuser in Rhauderfehn durch folge Begriffe:
Synonyme zur Suche Rhauderfehn Häuser:
Rhauderfehn Häuser online, Haus Rhauderfehn, Häusermarkt Rhauderfehn
|
RE/MAX Immo-Team |
|
Kirchstraße 13 |
|
26871 Papenburg |
|
Telefon: |
04961 779090 |
|
Telefax: |
04961 7790929 |
|
|
|
|
Maklerwebsite: |
|
|
|
|
Verbraucherinformation:
Online-Streitbeilegung gemäß Art. 14 Abs. 1 ODR-VO: Die Europäische Kommission stellt eine Plattform zur Online-Streitbeilegung (OS) bereit, die Sie hier finden: http://ec.europa.eu/consumers/odr


