EUTRITZSCH + 3 RAUM MIETWOHNUNG + ERSTBEZUG NACH DACHGESCHOSSAUSBAU (Wohnungen Leipzig)
Land:
DEU
Strasse:
Delitzscher Straße 146
PLZ:
04129
Ort:
Leipzig
Adresse anzeigen:
1
Etage (im Haus):
4
Kaltmiete:
1.138,55 €
Warmmiete:
1.418,55 €
Nebenkosten:
280,00 €
Kaution:
3930.00
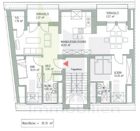
Wohnfläche:
81,92 m²
Ihre Objektnr.:
19577
Objekttyp:
Dachgeschoss
Heizungsart:
Zentralheizung
Befeuerung:
Gas
Bad:
Dusche
Küche:
Offene Küche
Zimmer:
3
Baujahr:
1950
Haustiere erlaubt:
1
Gartennutzung
Art:
Verbrauch
Gültig bis:
22.12.2027
E-Verbrauchskennw.:
109,6
Baujahr:
2024
Ausstellungsdatum:
2017-12-22
Erstbezug nach Sanierung: Zur Vermietung steht eine elegante 3-Zimmer-Dachgeschosswohnung in der Delitzscher Straße. Die Wohnung befindet sich aktuell in den letzten Phasen des Ausbaus und bietet nach Fertigstellung ein lichtdurchflutetes Zuhause mit zeitgemäßer Ausstattung.
Der hochwertige Vinylboden sorgt für ein warmes und modernes Ambiente, während Küchenbereich und Badezimmer mit stilvollen, weiß-grauen Fliesen ausgestattet werden. Dank des durchdachten Grundrisses mit großem offenen Wohn- und Essbereich, 2 Bädern, Abstellkammer in der Wohnung und neuer Dachflächenfenster erwartet Sie ein offenes, charmantes Wohngefühl.
Ein besonderes Highlight sind die 2 Dachloggien mit Weitblick, die zum Entspannen einladen und das Wohnerlebnis perfekt abrunden.
Bezugsfrei ab sofort: Erstbezug nach Sanierung, 3 Raum Wohnung im Dachgeschoss (kein Aufzug), hochwertiger Dachgeschossausbau, Designboden, moderne Fliesen, zeitgemäßer Grundriss, Tageslichtbad mit Dusche, separates WC, Abstellkammer in der Wohnung, 2mal Balkon/Dachloggia mit Weitblick, Hausmeisterservice und vieles mehr.
Die Wohnung befindet sich in der Delitzscher Straße, im beliebten Stadtteil Eutritzsch im Norden Leipzigs. Dieser Stadtteil zeichnet sich durch eine ruhige und grüne Umgebung aus, die dennoch zentral gelegen ist und eine hervorragende Anbindung an die Leipziger Innenstadt bietet.
Verkehrsanbindung:
Die Verkehrsanbindung ist ideal: Mehrere Straßenbahn- und Buslinien sind fußläufig erreichbar, sodass man das Stadtzentrum in wenigen Minuten erreicht. Der Leipziger Hauptbahnhof ist ebenfalls nur eine kurze Fahrt entfernt, was Pendlern und Reisenden entgegenkommt. Die nahegelegene B2 sorgt zudem für eine schnelle Anbindung an das überregionale Straßennetz.
Infrastruktur und Einkaufsmöglichkeiten:
Eutritzsch bietet eine gut ausgebaute Infrastruktur mit zahlreichen Einkaufsmöglichkeiten, darunter Supermärkte, Bäckereien und Drogerien, die bequem zu Fuß zu erreichen sind. Auch Ärzte, Apotheken sowie Schulen und Kindergärten befinden sich in der Umgebung.
Freizeit und Erholung:
Für die Freizeitgestaltung ist ebenfalls bestens gesorgt. Der nahegelegene Arthur-Bretschneider-Park lädt zu erholsamen Spaziergängen oder sportlichen Aktivitäten ein. Für Naturliebhaber ist der Auenwald in der Nähe eine attraktive Option. Das Stadtteilzentrum Eutritzsch bietet zudem gemütliche Cafés und Restaurants für gesellige Stunden.
Sonstiges:
Trotz der ruhigen Wohnlage ist die Wohnung perfekt an das lebendige Stadtleben von Leipzig angebunden. Die Mischung aus Natur, guter Infrastruktur und der Nähe zur Innenstadt macht diesen Standort besonders attraktiv – ideal für Singles, Paare oder Familien.
Immaxi Immobilien - Die Immobilienmakler in Leipzig !
Haben wir Ihr Interesse geweckt? Vereinbaren Sie einen Besichtigungstermin!
TELEFON 0341 2122212
Unter dieser Nummer erreichen Sie unser kompetentes Maklerteam. Wir versuchen einen Termin nach Ihren Wünschen zu realisieren.
Unser komplettes Angebot an Wohnungen und Häusern zur Miete oder zum Kauf erhalten Sie auf www.immaxi.de
Alle Angaben nach bestem Wissen. Irrtum und Zwischenvermitltung vorbehalten. Dieses Exposé ist eine Vorinformation, als Rechtsgrundlage gilt allein der abgeschlossene Kaufvertrag/Mietvertrag.
Landkreis Leipzig ist die Oberkategorie in der diese Immobilie gelistet wird samt Immobiliensuche. Die Überschrift für diese Immobilie ist EUTRITZSCH + 3 RAUM MIETWOHNUNG + ERSTBEZUG NACH DACHGESCHOSSAUSBAU. Dieses Exposé ist der Kategorie Leipzig zugeordnet. Sachsen lautet die geografische Oberkategorie zu dem vorliegenden Angebot. Der Anbieter Immaxi Immobilien Ansprechpartner Thomas Hoffmann, Waldstraße 67 in 04105 Leipzig ist verantwortlich für die Veröffentlichung der Anzeige.
Besucher kamen auf die Seite Wohnungen in Leipzig durch folge Begriffe:
Synonyme zur Suche Leipzig Wohnungen:
Wohnungen Leipzig, Wohnung Leipzig, Leipzig Wohnung online
|
Immaxi Immobilien |
|
Thomas Hoffmann |
|
Waldstraße 67 |
|
04105 Leipzig |
|
Telefon: |
0341 2122212 |
|
Telefax: |
0341 4624922 |
|
|
|
|
Maklerwebsite: |
|
|
|
|
|
Aufsichtsbehörde: |
Gewerbeerlaubnis lt. § 34C erteilt durch die Stadt Leipzig |
Verbraucherinformation:
Online-Streitbeilegung gemäß Art. 14 Abs. 1 ODR-VO: Die Europäische Kommission stellt eine Plattform zur Online-Streitbeilegung (OS) bereit, die Sie hier finden: http://ec.europa.eu/consumers/odr


