Entkernte Doppelhaushälfte mit 2 Garagen, Tageslichtbad & Garten in ruhiger Lage! (Häuser Zwickau)
Land:
DEU
PLZ:
08066
Ort:
Zwickau
Kaufpreis:
165.000,00 €
Vermittl.-Provision:
3,57 %, mind. 2.975 EUR, inkl. 19 % MwSt.
Wohnfläche:
77,75 m²
Grundstücksfläche:
600,00 m²
Ihre Objektnr.:
ZwAd
Objekttyp:
Doppelhaushaelfte
Heizungsart:
Zentralheizung
Befeuerung:
Gas
Bad:
Fenster
Garagen (Anz.):
2
Zimmer:
3
Schlafzimmer:
2
Badezimmer:
1
Baujahr:
1933
Kamin
Gartennutzung
Art:
Bedarf
Gültig bis:
2032-08-23
Endenergiebedarf:
228.00
Baujahr:
2021
Jahrgang:
2014
Gebäudeart:
wohn
Diese charmante Doppelhaushälfte aus dem Baujahr 1938 befindet sich in ruhiger Wohnlage von Zwickau-Eckersbach. Das Haus verfügt über zwei Wohnetagen - Erdgeschoss und Dachgeschoss - die über eine innenliegende Treppe miteinander verbunden sind. Die Immobilie ist entkernt und kann nach Ihren Vorstellungen saniert werden.
Auf dem ca. 600 m² großen Grundstück stehen eine massiv errichtete Doppelgarage sowie ein angrenzender Hundezwinger zur Verfügung. Die zusätzlichen Nutzflächen belaufen sich auf insgesamt ca. 92,27 m² und bieten vielfältige Möglichkeiten für Hobby und Lagerung.
Im Garten befindet sich ein kleiner Teich sowie ein Grillofen.
Der Bodenrichtwert beträgt 120 EUR/m².
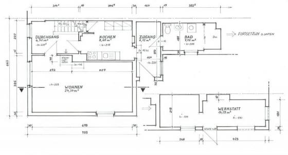
Auf insgesamt ca. 77,75 m² Wohnfläche verteilen sich ein gemütliches Wohnzimmer, eine Küche, ein modernisiertes Tageslichtbad mit ebenerdiger Dusche sowie zwei Zimmer im Dachgeschoss. Ergänzt wird das Raumangebot durch einen teil-unterkellerten Bereich, einen Spitzboden sowie mehrere funktionale Nebengebäude. Hofseitig wurde das Wohnhaus um einen eingeschossigen Anbau erweitert, in dem sich das Badezimmer sowie eine von außen zugängliche Werkstatt befinden.
Die Wohnfläche teilt sich wie folgt auf:
Erdgeschoss:
- Wohnzimmer mit Kachelofen (Umluft ins Kinderzimmer DG) (ca. 24,34 m²) Der Ofen kann derzeit als Notfeuerstelle genutzt werden. Wenn er als Hauptfeuerung betrieben werden soll, muss der Einsatz getauscht werden.
- Küche (ca. 8,65 m²)
- Tageslichtbad (ca. 7,02 m²) im hofseitigen Anbau
Dachgeschoss:
- Vorraum (ca. 6,06 m²)
- Schlafzimmer (ca. 12,29 m²)
- Kinderzimmer (ca. 8,96 m²)
Weitere Flächen:
- Teilkeller (ca. 17,07 m²)
- Spitzboden (ca. 21,32 m², eingeschränkte Nutzung aufgrund lichter Höhe)
- Werkstatt (ca. 14,29 m²)
- Doppelgarage (ca. 13,48 m² + 16,73 m²)
- Hundezwinger (ca. 9,38 m²)
Die Raumhöhen entsprechen dem Baustandard der 1930er Jahre und liegen unter den heutigen Anforderungen der Sächsischen Bauordnung. Das Objekt bietet jedoch solide Grundstrukturen und vielfältige Möglichkeiten zur Modernisierung und individuellen Gestaltung.
Die ca. 90.000 Einwohner zählende Stadt Zwickau liegt im Zentrum des westsächsischen Industriegebietes am Nordrand des Erzgebirges. Sie ist die viertgrößte Stadt im Freistaat Sachsen und hat als Oberzentrum einen Einzugsbereich von ca. 480.000 Menschen. Die Stadt blickt zurück auf eine 900jährige Geschichte und hat Persönlichkeiten wie Robert Schumann, August Horch und Max Pechstein hervorgebracht.
Die Immobilie befindet sich im beliebten Stadtteil Zwickau-Eckersbach, einer ruhigen und gewachsenen Wohngegend mit überwiegend kleinteiliger Bebauung. Das Umfeld ist geprägt von Ein- und Zweifamilienhäusern sowie viel Grün.
Einkaufsmöglichkeiten, Schulen, Kindergärten und medizinische Einrichtungen sind in wenigen Minuten erreichbar. Die Zwickauer Innenstadt ist sowohl mit dem Auto als auch mit öffentlichen Verkehrsmitteln schnell erreichbar. Die Nähe zu Feldern, Spazierwegen und Grünflächen macht die Lage besonders attraktiv für Familien und Naturliebhaber.
Durch die verkehrsgünstige Anbindung an die B93 und B173 sowie die Autobahn A72 sind auch Pendler hervorragend angebunden.
Bitte nutzen Sie das Kontaktformular, um uns Ihre Fragen bzw. Ihren Besichtigungswunsch mitzuteilen. Wir nehmen schnellstmöglich den Kontakt zu Ihnen auf bzw. senden Ihnen gern ergänzende Unterlagen entsprechend Ihrer Anfrage zu.
Alle Angaben beruhen auf Aussagen der Eigentümer bzw. basieren auf den uns bis dato vorliegenden Unterlagen und erfolgen ohne Gewähr. Irrtum und zwischenzeitlicher Verkauf bleiben vorbehalten. Exposé © 2026, Immobilienbüro Kühn GmbH & Co. KG.
Die Immobilienfrontal Datenbank enthält Wohnungen, Immobilien und Häuser bei der diese Immobilie der Kategorie Landkreis Zwickau zugeordnet ist. Entkernte Doppelhaushälfte mit 2 Garagen, Tageslichtbad & Garten in ruhiger Lage! ist die Kopfzeile diesen Objektes. Das hier vorliegende Exposé ist bei Immobilienfrontal unter der Kategorie Zwickau abgespiechert. Das Auffinden von Immobilien erleichtert die Bundeslandsuche nach Objekten unter Sachsen.
Der Anbieter Immobilienbüro Kühn GmbH & Co. KG Ansprechpartner Wolfgang Kühn, Jahnstraße 17 in 08058 Zwickau hat dieses Objekt inseriert.
Besucher kamen auf die Seite Häuser in Zwickau durch folge Begriffe:
Synonyme zur Suche Zwickau Häuser:
Zwickau Häuser online, Haus Zwickau, Häusermarkt Zwickau
Immobilienbüro Kühn GmbH & Co. KG |
|
Wolfgang Kühn |
|
Jahnstraße 17 |
|
08058 Zwickau |
|
Telefon: |
0375282003 |
|
|
|
|
Maklerwebsite: |
|
|
|
|
|
USt.-ID: |
DE152847296 |
|
Handelsregister-Nr: |
HRA 10300 AG Chemnitz |
|
Aufsichtsbehörde: |
Berufsaufsichtsbehörde Stadt Zwickau |
Verbraucherinformation:
Online-Streitbeilegung gemäß Art. 14 Abs. 1 ODR-VO: Die Europäische Kommission stellt eine Plattform zur Online-Streitbeilegung (OS) bereit, die Sie hier finden: https://ec.europa.eu/consumers/odr


