Ein Zuhause voller Wärme – Ihr persönlicher Rückzugsort in Suhl (Häuser Suhl)
Land:
DEU
PLZ:
98528
Ort:
Suhl
Kaufpreis:
315.000,00 €
Vermittl.-Provision:
provisionsfrei
Wohnfläche:
204,62 m²
Nutzfläche:
30,00 m²
Grundstücksfläche:
1.612,00 m²
Ihre Objektnr.:
EFH-V-26-25
Objekttyp:
Einfamilienhaus
Heizungsart:
Zentralheizung
Befeuerung:
Öl
Stellplatz-Art:
Freiplatz
Zustand:
gepflegt
Bad:
Fenster
Küche:
EBK
Stellplätze (Anz.):
3
Zimmer:
6
Schlafzimmer:
4
Badezimmer:
2
Baujahr:
2000
Gültig bis:
2034-08-13
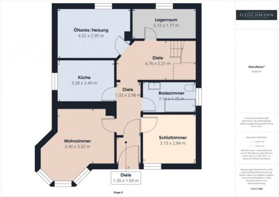
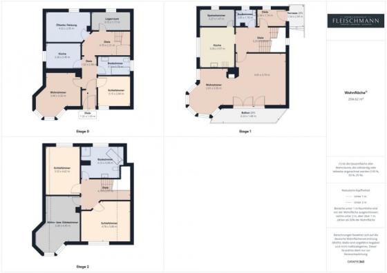
In der idyllischen Stadt Suhl wartet ein Ort, an dem Träume Wurzeln schlagen dürfen – ein liebevoll gepflegtes Einfamilienhaus, das mit Charme, Stil und Herz überzeugt. Auf einem großzügigen Grundstück von 1.612 m² gelegen, öffnet sich hier ein Zuhause, das Raum zum Leben, Lachen und Durchatmen schenkt.
Mit einer Wohnfläche von 205 m² auf drei Etagen bietet dieses Haus Platz für das, was wirklich zählt – gemeinsame Momente, Geborgenheit und das Gefühl, angekommen zu sein. Sechs helle Zimmer, darunter vier einladende Schlafzimmer, schaffen eine Atmosphäre, in der man sich sofort wohlfühlt. Zwei modern ausgestattete Badezimmer mit Wanne und Dusche schenken Komfort und kleine Wellnessmomente im Alltag.
Die lichtdurchflutete Küche mit hochwertiger Einbauküche ist das Herzstück des Hauses – ein Ort, an dem der Duft von frischem Kaffee den Morgen begrüßt und abends gute Gespräche bei einem Glas Wein entstehen.
Ein besonderes Highlight ist der südlich ausgerichtete Balkon, auf dem die Sonne ihr schönstes Spiel zeigt. Hier können Sie die Stille des Gartens genießen, den Blick über die Bäume schweifen lassen und den Alltag für einen Moment vergessen.
Im Kellergeschoss befindet sich zudem eine Einliegerwohnung mit zwei Räumen – ideal für Gäste, kreative Projekte oder als kleines Refugium für sich selbst.
Dieses Anwesen ist nach Vereinbarung verfügbar und lädt Sie ein, Teil einer charmanten Wohngegend von Suhl zu werden. Wenn Sie ein Zuhause suchen, das nicht nur überzeugt, sondern berührt – dann lassen Sie sich von diesem Haus verzaubern.
Einen virtuellen Rundgang und weitere Informationen finden Sie auf unserer Homepage www.hauptmakler.de
.
Gerne stehen wir Ihnen auch persönlich zur Verfügung – per E-Mail an info@hauptmakler.de
oder telefonisch unter +49 3681 723981.
Dieses charmante Haus überzeugt mit einer durchdachten Ausstattung und solider Bauweise:
Helles Badezimmer mit Fenster, ausgestattet mit Dusche und Badewanne – ideal für entspannte Momente.
Freundliche Einbauküche mit Fenster – perfekt für Kochliebhaber.
Sonniger Balkon für entspannte Stunden im Freien.
Drei Außenstellplätze bieten komfortable Parkmöglichkeiten.
Unterkellerung mit separater Einliegerwohnung (2 Zimmer), die über einen eigenen Außeneingang erreichbar ist – ideal für Gäste, Homeoffice oder zur Vermietung.
Zentralheizung mit Öl als Heizmedium sorgt für angenehme Wärme.
Zusätzliche Gemütlichkeit bietet der Kachelofen im Wohnzimmer.
Massive Bauweise mit gedämmtem Ziegeldach und gedämmten Wänden – effizient und wertbeständig.
Elektrik in Kupfer sowie Wasser- und Abwasserleitungen aus Kunststoff – modern und langlebig.
Kanalanschluss vorhanden.
Finden kann man diese Immobilie zwischen der Lauter und dem Stadtteil Goldlauter. Es liegt in herrlicher Natur, Ruhe pur und dennoch nette Nachbarn. Alle öffentlichen Einrichtungen wie Kindergarten, Schule oder Einkaufsmöglichkeiten, erreichen Sie in 5-10 Minuten. Die Autobahn A71/A73 können Sie ebenfalls in dieser Zeit erreichen. Die Bushaltestelle des Nahverkehrs erreichen Sie und Ihre Kinder in ca. 600m. Ihre sportlichen Aktivitäten starten vor der Haustür. Wandern, Walken oder Wintersport kann direkt im Wald losgehen.
Bei Interesse an dieser Immobilie nutzen Sie bitte das Kontaktformular auf dieser Seite.
Bitte tragen Sie Ihre Kontaktdaten (Name, Adresse, Tel.-Nr., E-Mail-Adresse) vollständig ein, da nur ein vollständig ausgefülltes Formular an uns übermittelt wird.
Wir werden Ihre Anfrage dann schnellstmöglich bearbeiten und Sie anschließend kontaktieren.
Im Rahmen der Besichtigung kann die Situation entstehen, dass sich mehrere Interessenten für den Kauf der Immobilie entscheiden. Der Erhalt des Zuschlages kann sowohl von persönlichen Entscheidungen des Eigentümers, wie auch von einem Preisangebot abhängen.
Bei Interesse an weiteren Immobilien, schauen Sie bitte auf unsere Homepage
www.hauptmakler.de
Dort finden Sie eine große Auswahl an Häusern, Wohnungen, Gewerbeobjekten, Baugrundstücken und anderen Objekten, die von unserem Makler-Team betreut werden.
Bitte beachten Sie auch unseren Wertgutachten-Service. Sollten Sie eine fundierte, fachkundige Einschätzung zum Wert Ihrer Immobilie benötigen- auch die bekommen Sie gerne von uns.
Der Makler schuldet keine Beratung hinsichtlich des Gebäudeenergiegesetzes.
Die bereitgestellten Grundrisse sind nicht maßstäblich und können von den vorhanden Maßen abweichen.
Gemäß Geldwäsche-Gesetz § 4 GwG sind unsere Vertragspartner / Interessenten zur Mitteilung ihrer Identität verpflichtet. Wir bitten um Vorlage eines gültigen Personalausweises oder eines gültigen Reisepasses, wenn ein Termin zur Besichtigung vereinbart wird.
Sollte diese Immobilie nicht die richtige sein, finden Sie unter Landkreis Suhl weitere Objekte. Ein Zuhause voller Wärme – Ihr persönlicher Rückzugsort in Suhl ist die Kopfzeile diesen Objektes. Auf der Seite Suhl sind einige weitere Immobilienanzeigen zu finden. Die Immobiliensuche nach günstigen Immobilien führt viele weitere Objekte unter Thüringen.
Der Anbieter Immobilienkanzlei Fleischmann GmbH & Co.KG Ansprechpartner Katja Fleischmann, Am Bahnhof 10 in 98529 Suhl hat dieses Objekt inseriert.
Besucher kamen auf die Seite Häuser in Suhl durch folge Begriffe:
Synonyme zur Suche Suhl Häuser:
Suhl Häuser online, Haus Suhl, Häusermarkt Suhl
|
Immobilienkanzlei Fleischmann GmbH & Co.KG |
|
Katja Fleischmann |
|
Am Bahnhof 10 |
|
98529 Suhl |
|
Telefon: |
+49 3681 723981 |
|
Telefax: |
+49 3681 723983 |
|
|
|
|
Maklerwebsite: |
|
|
|
|
|
Steuernummer: |
171/219/10187 |
|
USt.-ID: |
DE320890060 |
|
Aufsichtsbehörde: |
Ordnungsamt Suhl |
Verbraucherinformation:
Online-Streitbeilegung gemäß Art. 14 Abs. 1 ODR-VO: Die Europäische Kommission stellt eine Plattform zur Online-Streitbeilegung (OS) bereit, die Sie hier finden: http://ec.europa.eu/consumers/odr


