Denkmalgeschütztes MFH im Zentrum - Sanierung und Gestaltung nach Ihren Wünschen (Häuser Reichenbach im Vogtland)
Land:
DEU
Strasse:
Bebelstraße 26
PLZ:
08468
Ort:
Reichenbach im Vogtland
Adresse anzeigen:
1
Kaufpreis:
85.000,00 €
Vermittl.-Provision:
5,95 % des Kaufpreises inkl. 19 % MwSt.
Wohnfläche:
340,00 m²
Nutzfläche:
82,00 m²
Grundstücksfläche:
240,00 m²
Ihre Objektnr.:
Be26
Objekttyp:
Mehrfamilienhaus
Zimmer:
1
Baujahr:
1910
denkmalgeschuetzt:
1
Jahrgang:
nicht_noetig
Gebäudeart:
wohn
Zum Verkauf steht ein sanierungsbedürftiges Mehrfamilienhaus (Kernsanierung) in zentraler Lage in Reichenbach/Vogtland.
Das unter Kulturdenkmalschutz stehende um 1910 massiv erbaute Gebäude bietet enormes Potenzial für Investoren und Projektentwickler, die eine Kapitalanlage mit Wertsteigerungsmöglichkeiten suchen.
Das voll unterkellerte Gebäude überzeugt durch seinen historischen Charme und die solide Grundsubstanz.
Durch die Ausweisung als Kulturdenkmal ergeben sich ggf. steuerliche Vorteile, die insbesondere für Kapitalanleger attraktiv sind. Bitte lassen Sie sich dazu fachkundig beraten.
Im Zuge einer umfassenden Sanierung können bis zu 8 Wohneinheiten mit zeitgemäßer Ausstattung und Grundrissen geschaffen werden, die den modernen Wohnbedürfnissen entsprechen - ein interessantes Projekt für Investoren mit Weitblick. Das Objekt ist eingemessen und es liegt ein Energiekonzept vor. Die Vorarbeiten wurden bereits im Verkaufspreis berücksichtigt.
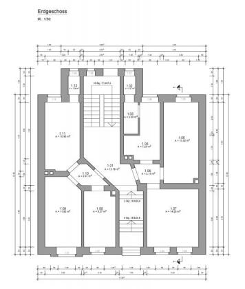
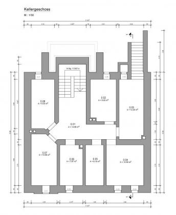
Aktuelle Grundrisse sind dem Exposé beigefügt.
In den Etagen sind dementsprechend folgende Nutzflächen/Wohnflächen in den Etagen vorhanden:
Kellergeschoss: ca. 82,31 m²
Erdgeschoss: ca. 88,23 m²
1. OG: ca. 95,41 m²
2. OG: ca. 88,48 m²
DG: ca. 96,59 m²
Hierbei handelt es sich um Angaben aus einer Planung (ohne Gewähr).
Der Anschluss für die Heizung ist bereits vorhanden. Der Erwerber kann somit eine moderne und effiziente Heizungsanlage einbauen. Der Gasanschluss befindet sich im Keller.
Aktuell sind für jede Wohnung einzelne Gasthermen von Junkers installiert. Diese wurden zwischen 1998 und 2004 eingebaut. Es handelt sich um Kombigeräte für Heizung und Warmwasserbereitung im Durchlaufprinzip. Feuerstättenbescheide des Schornsteinfegers liegen für jedes Gerät vor.
Die Immobilie befindet sich in der Bebelstraße 26 in Reichenbach im Vogtland - einer attraktiven Wohnlage mit hervorragender Infrastruktur und kurzen Wegen zu allen wichtigen Einrichtungen des täglichen Bedarfs. Die zentrale, aber dennoch ruhige Lage macht das Objekt besonders interessant für Eigennutzer und Kapitalanleger gleichermaßen.
Reichenbach gehört zum sächsischen Vogtlandkreis und ist bekannt für seine historische Bausubstanz, kulturelle Vielfalt und die unmittelbare Nähe zur Göltzschtalbrücke - der größten Ziegelsteinbrücke der Welt.
Die Anbindung an den öffentlichen Nahverkehr ist hervorragend. In wenigen Gehminuten erreicht man mehrere Bushaltestellen sowie den oberen Bahnhof Reichenbach mit direkten Verbindungen in Richtung Zwickau, Plauen und Leipzig. Die Bundesstraße B94 und die Autobahn A72 sind ebenfalls schnell erreichbar und gewährleisten eine optimale Verbindung in die umliegenden Städte.
Geschäfte des täglichen Bedarfs, Supermärkte, Apotheken und Banken befinden sich in unmittelbarer Nähe. Auch Ärzte, Kindertagesstätten sowie Grund- und weiterführende Schulen sind bequem zu Fuß oder mit dem Fahrrad erreichbar. Das Berufliche Schulzentrum Reichenbach ist nur rund 100 Meter entfernt.
Zahlreiche Grünflächen, Parks und kulturelle Einrichtungen befinden sich in der Umgebung. Der Stadtpark Reichenbach sowie das Neuberinhaus bieten vielfältige Freizeit- und Erholungsmöglichkeiten. Die landschaftlich reizvolle Umgebung des Vogtlands lädt zudem zu Ausflügen und Aktivitäten im Grünen ein.
Bitte nutzen Sie das Kontaktformular, um uns Ihre Fragen bzw. Ihren Besichtigungswunsch mitzuteilen. Wir nehmen schnellstmöglich den Kontakt zu Ihnen auf bzw. senden Ihnen gern ergänzende Unterlagen entsprechend Ihrer Anfrage zu.
Alle Angaben beruhen auf Aussagen der Eigentümer bzw. basieren auf den uns bis dato vorliegenden Unterlagen und erfolgen ohne Gewähr. Irrtum und zwischenzeitlicher Verkauf bleiben vorbehalten. Exposé © 2025, Immobilienbüro Kühn
Vogtlandkreis ist die Oberkategorie in der diese Immobilie gelistet wird samt Immobiliensuche. Denkmalgeschütztes MFH im Zentrum - Sanierung und Gestaltung nach Ihren Wünschen ist die Kopfzeile diesen Objektes. Unter Reichenbach im Vogtland gibt es zahlreiche Objekte die Ihre Immobiliensuche ergänzen. Das Auffinden von Immobilien erleichtert die Bundeslandsuche nach Objekten unter Sachsen.
Der Anbieter Immobilienbüro Kühn GmbH & Co. KG Ansprechpartner Wolfgang Kühn, Jahnstraße 17 in 08058 Zwickau hat dieses Objekt inseriert.
Besucher kamen auf die Seite Häuser in Reichenbach im Vogtland durch folge Begriffe:
Synonyme zur Suche Reichenbach im Vogtland Häuser:
Reichenbach im Vogtland Häuser online, Haus Reichenbach im Vogtland, Häusermarkt Reichenbach im Vogtland
Immobilienbüro Kühn GmbH & Co. KG |
|
Wolfgang Kühn |
|
Jahnstraße 17 |
|
08058 Zwickau |
|
Telefon: |
0375282003 |
|
|
|
|
Maklerwebsite: |
|
|
|
|
|
USt.-ID: |
DE152847296 |
|
Handelsregister-Nr: |
HRA 10300 AG Chemnitz |
|
Aufsichtsbehörde: |
Berufsaufsichtsbehörde Stadt Zwickau |
Verbraucherinformation:
Online-Streitbeilegung gemäß Art. 14 Abs. 1 ODR-VO: Die Europäische Kommission stellt eine Plattform zur Online-Streitbeilegung (OS) bereit, die Sie hier finden: https://ec.europa.eu/consumers/odr


