Büroetage im Stadtzentrum (Gewerbeimmobilien Gotha)
Land:
DEU
PLZ:
99867
Ort:
Gotha
Kaltmiete:
725,00 €
Nebenkosten:
230,00 €
Kaution:
1910.00
Gesamtfläche:
95,00 m²
Ihre Objektnr.:
502110
Objekttyp:
Bueroflaeche
Zustand:
gepflegt
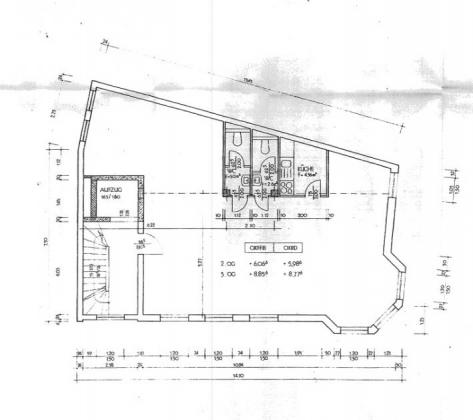
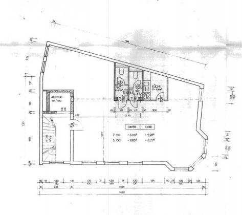
Die angebotene Büroetage in der Blumenbachstraße 7 befindet sich in einem gepflegten Gewerbeobjekt mit Aufzug. Die Einheit überzeugt durch eine praktische Aufteilung und solide Bausubstanz. Die hellen Räume schaffen eine angenehme Arbeitsamtosphäre.
Die Büroetage umfasst 4 Büroräume und einen Empfang, sowie ein WC und eine Kaffeeküche. Ein Kellerraum ist Bestandteil des Mietvertrags.
Die Immobilie liegt in einer ruhigen Nebenstraße in Gotha, nur wenige Meter vom Stadtzentrum entfernt. Die Anbindung an den öffentlichen Nahverkehr ist optimal, sowohl Bus- und Bahnhaltstellen als auch PKW- Parkplätze sind fußläufig in 2 Minuten zu erreichen. Die Lage bietet eine ausgewogene Mischung aus städtischer Infrastruktur und angenehmer Arbeitsruhe.
Landkreis Gotha ist die Oberkategorie in der diese Immobilie gelistet wird samt Immobiliensuche. Die Überschrift zu diesem Immobilien-Objekt ist Büroetage im Stadtzentrum. Unter Gotha sind weitere mögliche Immobilienangebote aufzufinden, die ähnlich dieser Immobilie sind. Thüringen lautet die geografische Oberkategorie zu dem vorliegenden Angebot.
Um mit dem Anbieter Kontakt aufzunehmen wenden Sie sich bitte an: HONNEF Immobilien Ansprechpartner Peter Honnef & Rudolf Steinert GbR, Schlossberg in 99867 Gotha.
Besucher kamen auf die Seite Gewerbeimmobilien in Gotha durch folge Begriffe:
Synonyme zur Suche Gotha Gewerbeimmobilien:
Gotha Immobilien für Gewerbe, Gewerbeimmobilie Gotha, Gewerbe-Immobilien Gotha
|
HONNEF Immobilien |
|
Peter Honnef & Rudolf Steinert GbR |
|
Schlossberg |
|
99867 Gotha |
|
Telefon: |
03621 - 300 000 |
|
Telefax: |
03621 - 300 901 |
|
|
|
|
Maklerwebsite: |
|
|
|
|
|
Steuernummer: |
DE 161812665 |
|
Aufsichtsbehörde: |
Stadtverwaltung Gotha |
Verbraucherinformation:
Online-Streitbeilegung gemäß Art. 14 Abs. 1 ODR-VO: Die Europäische Kommission stellt eine Plattform zur Online-Streitbeilegung (OS) bereit, die Sie hier finden: http://ec.europa.eu/consumers/odr


