Büro & flex. Gewerbeflächen z.B. für Praxis, Kanzlei, Ausstellung, Lager, Physio - Langenzenn (Gewerbeimmobilien Langenzenn)
Land:
DEU
Strasse:
Mühlsteig
PLZ:
90579
Ort:
Langenzenn
Adresse anzeigen:
1
Kaltmiete:
8,00 €
Nutzfläche:
650,00 m²
Gesamtfläche:
650,00 m²
Ihre Objektnr.:
73aOex
Räume veränderbar
barrierefrei
Untervermietung von ca. 200 bis 650 m² ebenerdige repräsentative & individuelle Gewerbeflächen, geeignet für die verschiedensten Nutzungsmöglichkeiten wie z.B.:
- Büro & Verwaltung
- Praxis & Kanzlei
- Ausstellung- oder Produktion
- Lager & Storage
- auch Schulung & Training oder ähnliches möglich
Eine Einzelnutzung bzw. Einzelanmietung der Flächen ist bauliche wie vertraglich in den angegebenen Größen problemlos möglich.
Die Hallen sind auch geeignet für z.B. Produkt Promotion´s, Gruppenevents oder Vorführungen.
Sofort verfügbare Flächen z.B.:
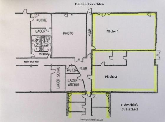
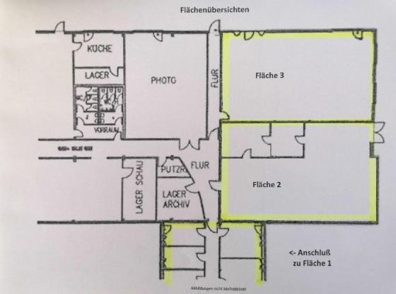
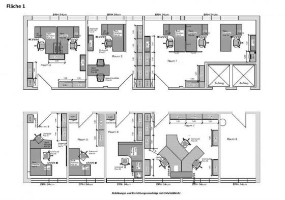
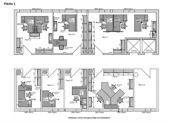
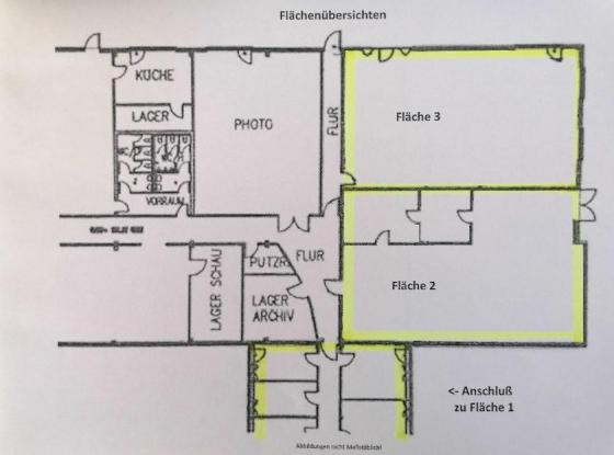
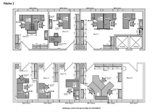
Fläche 1 – ca. 220 m² (Büro-/Verwaltungs-Bereich)
Fläche 2 – ca. 270 m² (Büro-Trainings-/Ausstellungs-Bereich)
Fläche 3 – ca. 200 m² (Ausstellungs-/Produktions-Bereich)
Untervermietung von repräsentativen, funktional & anpassbaren Gewerbe- und Produktionsflächen
* große Tageslichtfronten
* parkähnliche Außenanlagen
* ruhige Lage
* separate Zugangsmöglichkeiten
* ebenerdig/barrierefrei
Sofort verfügbare Flächen:
Fläche 1 – ca. 220 m² (Office-Bereich)
Fläche 2 – ca. 270 m² (Office-/Ausstellungs-Bereich)
Fläche 3 – ca. 200 m² (Office-/Ausstellungs-/Produktion-Bereich)
Eine Anmietung im möblierten/teilmöblierten Zustand ist nach Absprache ebenfalls möglich.
Die Räume sind variabel zu teilen.
- Parkmöglichkeiten vorhanden
- Kundenparkplätze zusätzlich möglich
Mietfläche: ca. 200 bis zu 650 m² (alle Flächen barrierefrei im Erdgeschoß)
Übergabezustand: Büro und Produktionsräume, teils mit Teppich oder Industrieboden, ggf. möbliert
Sehr zentrale Lage direkt an der Ausfahrt der B8 (N/Fü/NEA) in einem
repräsentativ gepflegtem Businesspark ähnlichem Areal.
Direkt am Eingang zum neuen Gewerbegebiet Langenzenn Süd/Mühlsteig.
Bezug: ab sofort/nach Vereinbarung
Impressum siehe www.riess.immo
Individuelle Besichtigungen sind nach Terminvereinbarung jederzeit kurzfristig möglich.
Nutzen Sie zur Kontaktaufnahme das Kontaktformular. Bitte beachten Sie, dass nur ein VOLLSTÄNDIG AUSGEFÜLLTES Kontaktformular mit kompletten Namen, Tel.-Nummer, E-Mail und Anschrift von uns bearbeitet werden kann. Anfragen ohne Telefonnummer können grundsätzlich nicht bearbeitet werden.
Nach Erhalt Ihrer Anfrage, werden wir uns telefonisch mit Ihnen in Verbindung setzen.
Alle Angaben sind ohne Gewähr und beruhen auf Angaben des Eigentümers bzw. Vermieters.
Landkreis Fürth ist die Oberkategorie in der diese Immobilie gelistet wird samt Immobiliensuche. Die Überschrift zu diesem Immobilien-Objekt ist Büro & flex. Gewerbeflächen z.B. für Praxis, Kanzlei, Ausstellung, Lager, Physio - Langenzenn. Dieses Exposé ist der Kategorie Langenzenn zugeordnet. Das diesem Objekt zugeordnete Bundesland ist Bayern.
Um mit dem Anbieter Kontakt aufzunehmen wenden Sie sich bitte an: Immobilenmakler Ansprechpartner Alexander Rieß, Schnepfenreuther Weg 2 in 90425 Nürnberg.
Besucher kamen auf die Seite Gewerbeimmobilien in Langenzenn durch folge Begriffe:
Synonyme zur Suche Langenzenn Gewerbeimmobilien:
Langenzenn Immobilien für Gewerbe, Gewerbeimmobilie Langenzenn, Gewerbe-Immobilien Langenzenn
|
Immobilenmakler |
|
Alexander Rieß |
|
Schnepfenreuther Weg 2 |
|
90425 Nürnberg |
|
Telefon: |
+49 176 712 38 805 |
|
Telefax: |
+49 911 61 66 89 |
|
Mobil: |
+49 176 712 38 805 |
|
|
|
|
Maklerwebsite: |
|
|
|
|
|
USt.-ID: |
DE319198061 |
|
Aufsichtsbehörde: |
Stadt Nürnberg, Innerer Laufer Platz 3, 90403 Nürnberg |
Verbraucherinformation:
Immobilenmakler Alexander Rieß wohnen & investionen Schnepfenreuther Weg 2 90425 Nürnberg Telefon +49 (0) 176 712 38 805 Fax +49 (0) 911 61 66 89 E-Mail ariess@mail.de internet www.riess.immo Vertretungsberechtigt: Alexander Rieß USt-ID: DE319198061 Berufsaufsichtsbehörde: IHK für München und Oberbayern, Max-Joseph-Straße 2, 80333 München Gewerbeerlaubnis gemäß §34c GewO wurde durch die Stadt Nürnberg erteilt, zum Abschluss von Verträgen über Grundstücke und grundstücksgleiche Rechte Kammer: IHK Nürnberg Verantwortlich für den Inhalt nach § 55 Abs. 2 RStV.: Alexander Rieß Verbraucherinformationen: Online-Streitbeilegung gemäß Art. 14 Abs. 1 ODR-VO: Die Europäische Kommission stellt eine Plattform zur Online-Streitbeilegung (OS) bereit, die Sie hier finden https://ec.europa.eu/consumers/odr


