Attraktive 3-Zimmerwohnung mit Süd-Westwintergarten (Wohnungen Berlin)
Land:
DEU
Strasse:
Hohenzollerndamm 73
PLZ:
14199
Ort:
Berlin
Adresse anzeigen:
1
Etage (im Haus):
3
Kaufpreis:
378.000,00 €
Hausgeld:
353,61 €
Kaufpreis / qm:
5.297,20 €
Vermittl.-Provision:
2,38 % Käuferprovision inkl. gesetzl. gültiger MwSt.
Wohnfläche:
78,65 m²
Ihre Objektnr.:
1560_WE55_1
Objekttyp:
Etage
Zimmer:
3
Baujahr:
1929
Art:
Verbrauch
Gültig bis:
2029-09-01
E-Verbrauchskennw.:
139.00
Die zum Kauf angebotene Eigentumswohnung befindet sich in einer gepflegten Wohnanlage mit insgesamt ca. 159 Einheiten. Die Anlage erstreckt sich über mehrere Etagen vom Erdgeschoss bis zum dritten Obergeschoss und bietet ein angenehmes Wohnumfeld.
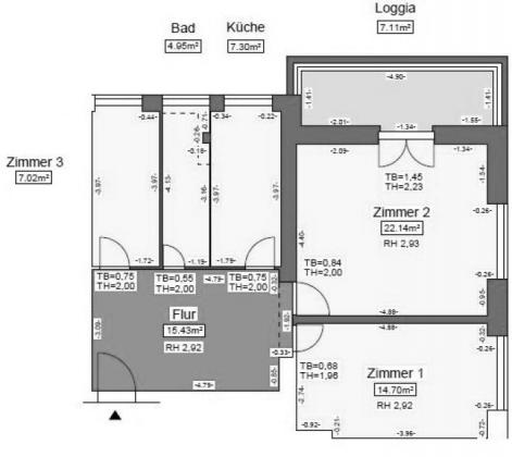
Diese optimal geschnittene 3-Zimmer-Wohnung im Obergeschoss bietet auf ca. 78,65 m² ein modernes und komfortables Wohnambiente. Alle Zimmer sind separat vom Flur aus zugänglich, was eine flexible Nutzung ermöglicht. Der großzügige Flurbereich bietet viel Platz für Stauraum oder individuelle Gestaltungsmöglichkeiten.
Die Wohnräume sind hell und schaffen eine angenehme Atmosphäre. In allen Zimmern ist hochwertiges Laminat verlegt, teilweise in Dielenoptik. Das moderne Duschbad verfügt über ein Fenster, das für eine gute Belüftung sorgt. Die Küche kann nach den individuellen Wünschen des Käufers gestaltet werden, da keine Einbauküche vorhanden ist.
Ein besonderes Highlight ist der großzügige Wintergarten, der viel Licht in die Wohnung bringt und gleichzeitig einen idealen Ort für sonnige Stunden und entspannte Momente bietet.
Die angebotene Eigentumswohnung befindet sich in einer der begehrtesten Wohnlagen Berlins, im charmanten Stadtteil Schmargendorf. Die Umgebung zeichnet sich durch ihre exzellente Infrastruktur und die schnelle Erreichbarkeit zahlreicher Einrichtungen des täglichen Bedarfs aus.
Die Anbindung an die öffentlichen Verkehrsmittel ist hervorragend: Mehrere Buslinien sind in wenigen Gehminuten erreichbar, die nächste Bushaltestelle liegt nur etwa 300 Meter entfernt. Die S-Bahnstation Hohenzollerndamm erreichen Sie ebenfalls fußläufig in etwa 10 Minuten, was eine optimale Mobilität in alle Richtungen der Hauptstadt garantiert. Auch für den Individualverkehr ist die Lage ideal, da die Stadtautobahn A100 in wenigen Minuten erreichbar ist, was schnelle Verbindungen sowohl in die Innenstadt als auch zu den überregionalen Verkehrswegen ermöglicht.
In der unmittelbaren Umgebung der Wohnung finden sich zahlreiche Einkaufsmöglichkeiten, darunter Supermärkte, Bäckereien und Feinkostläden, die eine bequeme Nahversorgung gewährleisten. Ebenso stehen Ihnen vielfältige gastronomische Angebote und gemütliche Cafés zur Verfügung, die zum Verweilen und Genießen einladen.
Für Familien sind Schulen, Kindergärten und Spielplätze ebenfalls in der näheren Umgebung vorhanden, was die Lage besonders attraktiv für junge Familien macht. Zudem bieten die nahegelegenen Grünflächen und Parks, wie der idyllische Grunewald, vielfältige Erholungs- und Freizeitmöglichkeiten inmitten der Natur.
Kulturelle Einrichtungen, Museen und Kinos im angrenzenden Stadtteil Wilmersdorf sind ebenfalls schnell erreichbar und bieten ein abwechslungsreiches kulturelles Programm für Kunst- und Kulturinteressierte. Diese erstklassige Lage kombiniert urbanes Leben mit einer angenehmen Wohnatmosphäre und macht die Eigentumswohnung zu einem idealen Lebensmittelpunkt für jeden, der den modernen Metropolcharme von Berlin erleben möchte.
SONSTIGES:
Zur Wahrung der Privatsphäre unserer Kunden können wir Ihnen die ausführlichen Informationen und das aussagekräftige Bildmaterial zu dieser Immobilie erst übermitteln, wenn Sie uns Ihre vollständigen Kontaktdaten mitgeteilt haben. Ihre Daten werden selbstverständlich vertraulich behandelt und nicht an Dritte weitergegeben. Das Exposé erhalten Sie je nach Wunsch entweder per Post oder per E-Mail.
HAFTUNG:
Alle Angaben sind ohne Gewähr und basieren ausschließlich auf Informationen, die uns von unserem Auftraggeber übermittelt wurden. Wir übernehmen keine Haftung für die Vollständigkeit, Richtigkeit und Aktualität dieser Angaben. Irrtum und Zwischenverkauf/-vermietung vorbehalten.
GELDWÄSCHE:
„Wenn Sie der Immobilienmakler nach dem Personalausweis fragt …“
Wie viele andere Branchen und Berufe sind auch die Immobilienmakler verpflichtet, die Geschäftspartner gemäß Vorgaben des Geldwäschegesetzes (§ 3 GwG) zu identifizieren. Die Identifizierung des Interessenten durch den Immobilienmakler muss erfolgt sein, bevor die Aufnahme der Vertragshandlungen ermöglicht wird. Hierzu ist es erforderlich, dass wir die relevanten Daten Ihres Personalausweises festhalten – beispielsweise mittels einer Kopie. Das Geldwäschegesetz (GwG) sieht vor, dass der Makler die Kopien bzw. Unterlagen fünf Jahre aufbewahren muss.
PROVISION:
Sofern es durch die Tätigkeit von Krossa & Co. Immobilien GmbH zu einem wirksamen Vertrag kommt, ist bei notariellem Kaufvertragsabschluss eine Courtage auf den Kaufpreis inklusive der gesetzlich gültigen MwSt. verdient und fällig und vom Käufer an die Krossa & Co. Immobilien GmbH zu zahlen. Grunderwerbssteuer, Notar- und Grundbuchkosten sind vom Käufer zu tragen.
DATENSCHUTZ:
Unsere Datenschutzbestimmungen entnehmen Sie bitte unserer Homepage.
Landkreis Berlin ist die Oberkategorie in der diese Immobilie gelistet wird samt Immobiliensuche. Die Überschrift für diese Immobilie ist Attraktive 3-Zimmerwohnung mit Süd-Westwintergarten. Dieses Exposé ist der Kategorie Berlin zugeordnet. Berlin lautet die geografische Oberkategorie zu dem vorliegenden Angebot. Der Anbieter Krossa & Co. Immobilien GmbH Ansprechpartner Ernst-Moritz Krossa, in ist verantwortlich für die Veröffentlichung der Anzeige.
Besucher kamen auf die Seite Wohnungen in Berlin durch folge Begriffe:
Synonyme zur Suche Berlin Wohnungen:
Wohnungen Berlin, Wohnung Berlin, Berlin Wohnung online
|
Krossa & Co. Immobilien GmbH |
|
Ernst-Moritz Krossa |
|
|
|
Verbraucherinformation:
Online-Streitbeilegung gemäß Art. 14 Abs. 1 ODR-VO: Die Europäische Kommission stellt eine Plattform zur Online-Streitbeilegung (OS) bereit, die Sie hier finden: https://ec.europa.eu/consumers/odr


