Ab 1.03.26! Schöne 2-Raumwohnung mit Balkon im Zwickauer Zentrum! (Wohnungen Zwickau)
Land:
DEU
Strasse:
Max-Pechstein-Straße 3
PLZ:
08056
Ort:
Zwickau
Adresse anzeigen:
1
Etage (im Haus):
3
Kaltmiete:
385,00 €
Warmmiete:
585,00 €
Nebenkosten:
200,00 €
Kaution:
770.00
Wohnfläche:
64,00 m²
Ihre Objektnr.:
MP3-03
Objekttyp:
Dachgeschoss
Heizungsart:
Zentralheizung
Zustand:
gepflegt
Zimmer:
2
Schlafzimmer:
1
Badezimmer:
1
Baujahr:
1927
Art:
Verbrauch
Gültig bis:
2028-07-10
E-Verbrauchskennw.:
70.00
EP inkl. Warmwasser:
ja
Baujahr:
1997
Jahrgang:
2014
Gebäudeart:
wohn
Das Wohn- und Geschäftshaus wurde 1927 massiv erbaut und 1997 umfangreich saniert.
Im Hofbereich stehen Parkplätze für die Wohn- und Gewerbemieter zur Verfügung (teilweise Carports).
Diese können auf Anfrage angemietet werden.
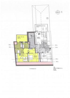
Die Wohnung mit ca. 64 m² Wohnfläche befindet sich im Dachgeschoss und ist wie folgt ausgestattet:
- Flur
- Wohnzimmer
- Schlafzimmer
- Bad
- Balkon
- Mieterkeller
Das Objekt befindet sich am Dr.-Friedrichs-Ring / Ecke Max-Pechstein-Straße.
Das Zentrum ist ca. 200 m entfernt und somit auch fußläufig bequem zu erreichen. Alle Einrichtungen des täglichen Bedarfs sind in wenigen Metern Entfernung vorhanden.
Dieses Angebot entspricht noch nicht Ihren Wünschen...?
Besuchen Sie auch unsere Homepage mit vielen weiteren Wohnungsangeboten oder sprechen Sie uns persönlich an. Wir präsentieren Ihnen gern weitere Objekte.
Alle Angaben beruhen auf Aussagen Dritter und erfolgen ohne Gewähr. Exposé © Immobilienbüro Kühn
Landkreis Zwickau ist die Oberkategorie in der diese Immobilie gelistet wird samt Immobiliensuche. Die Überschrift für diese Immobilie ist Ab 1.03.26! Schöne 2-Raumwohnung mit Balkon im Zwickauer Zentrum!. Das hier vorliegende Exposé ist bei Immobilienfrontal unter der Kategorie Zwickau abgespiechert. Dem Bundesland Sachsen ist die Immobilie zugewiesen samt weiteren Immobilienangeboten. Der Anbieter Immobilienbüro Kühn GmbH & Co. KG Ansprechpartner Wolfgang Kühn, Jahnstraße 17 in 08058 Zwickau ist verantwortlich für die Veröffentlichung der Anzeige.
Besucher kamen auf die Seite Wohnungen in Zwickau durch folge Begriffe:
Synonyme zur Suche Zwickau Wohnungen:
Wohnungen Zwickau, Wohnung Zwickau, Zwickau Wohnung online
Immobilienbüro Kühn GmbH & Co. KG |
|
Wolfgang Kühn |
|
Jahnstraße 17 |
|
08058 Zwickau |
|
Telefon: |
0375282003 |
|
|
|
|
Maklerwebsite: |
|
|
|
|
|
USt.-ID: |
DE152847296 |
|
Handelsregister-Nr: |
HRA 10300 AG Chemnitz |
|
Aufsichtsbehörde: |
Berufsaufsichtsbehörde Stadt Zwickau |
Verbraucherinformation:
Online-Streitbeilegung gemäß Art. 14 Abs. 1 ODR-VO: Die Europäische Kommission stellt eine Plattform zur Online-Streitbeilegung (OS) bereit, die Sie hier finden: https://ec.europa.eu/consumers/odr


