Ab 01.12.25! Marienthal, Nähe HBK! Schöne 2-Raumwhg. mit EBK, Dachterasse und Stellpl.! (Wohnungen Zwickau)

Land:
DEU
Strasse:
Karl-Keil-Straße 18
PLZ:
08060
Ort:
Zwickau
Adresse anzeigen:
1
Etage (im Haus):
3
Kaltmiete:
265,00 €
Warmmiete:
400,00 €
Nebenkosten:
115,00 €
Kaution:
530
Stellplatz (Miete):
20,00 €
Wohnfläche:
36,55 m²
Ihre Objektnr.:
KK18-09VM
Objekttyp:
Dachgeschoss
Heizungsart:
Zentralheizung
Befeuerung:
Gas
Boden:
Fliesen
Zustand:
gepflegt
Bad:
Wanne
Küche:
EBK
Zimmer:
2
Schlafzimmer:
1
Badezimmer:
1
Baujahr:
1919
Art:
Verbrauch
Gültig bis:
2028-07-22
E-Verbrauchskennw.:
103.00
EP inkl. Warmwasser:
ja
Wertklasse:
D
Baujahr:
1919
Jahrgang:
2014
Gebäudeart:
wohn
Die Immobilie wurde 1919 als massives, vollunterkellertes Ziegelgebäude errichtet. Das Gesamtensemble der Karl-Keil-Straße 16-38 steht unter Denkmalschutz.
1999/2000 erfolgte eine aufwändige Kernsanierung unter denkmalpflegerischen Gesichtspunkten. Das Objekt zeichnet sich u.a. durch die parkähnlich angelegte Außenanlage mit Stellplätzen aus und befindet sich in einem gepflegten Zustand.
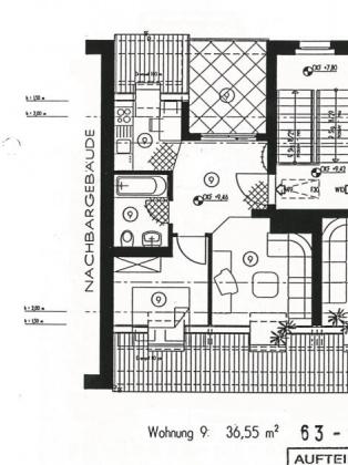
Die Zwei-Raum-Wohnung im Dachgeschoss umfasst eine Wohnfläche von ca. 36,55 m² lt. Planung. Sie besteht aus Wohn- und Schlafzimmer, Küche, Bad und Flur. Die Wohnräume sind mit Laminat ausgestattet. Küche, Bad und Flur haben geflieste Fußböden.
Vom Flur aus erreicht man alle Räume der Wohnung.
Wohnzimmer, Küche und Schlafzimmer haben jeweils ein großes Dachfenster, wodurch für genug Helligkeit gesorgt ist.
Im raumhoch gefliesten, innenliegenden Bad sind eine Wanne und ein Handtuchtrockner vorhanden. Eine Waschmaschine kann man im Waschraum auf dem der Wohnung zugeordneten Standplatz aufstellen.
Zur Wohnung gehört ein PKW-Stellplatz und ein Kellerabteil.
Die Immobilie befindet sich im westlichen Stadtteil von Zwickau. Marienthal gehört zu einer bevorzugten Wohngegend mit prozentual niedrigem Leerstand.
Die Anlage befindet sich in unmittelbarer Nähe zum Heinrich-Braun-Krankenhaus und ist daher sehr beliebt bei Auszubildenden und Klinikpersonal.
Einkaufsmöglichkeiten wie Discounter, Apotheken und Baumärkte befinden sich in näherer Umgebung und sind teilweise fußläufig erreichbar.
Durch Bus und Straßenbahn besteht eine gute Verkehrsanbindung zum Stadtzentrum und in die Umgebung. Durch ein gut ausgebautes System von Zubringern erreichen Sie auch schnell die Autobahnen A4 und A72.
Dieses Angebot entspricht noch nicht Ihren Wünschen...?
Besuchen Sie auch unsere Homepage mit vielen weiteren Wohnungsangeboten oder sprechen Sie uns persönlich an. Wir präsentieren Ihnen gern weitere Objekte.
Alle Angaben beruhen auf Aussagen Dritter und erfolgen ohne Gewähr. Exposé © Immobilienbüro Kühn
Landkreis Zwickau ist die Oberkategorie in der diese Immobilie gelistet wird samt Immobiliensuche. Die Überschrift für diese Immobilie ist Ab 01.12.25! Marienthal, Nähe HBK! Schöne 2-Raumwhg. mit EBK, Dachterasse und Stellpl.!. Das hier vorliegende Exposé ist bei Immobilienfrontal unter der Kategorie Zwickau abgespiechert. Dem Bundesland Sachsen ist die Immobilie zugewiesen samt weiteren Immobilienangeboten. Der Anbieter Immobilienbüro Kühn Ansprechpartner Wolfgang Kühn, Jahnstraße 17 in 08058 Zwickau ist verantwortlich für die Veröffentlichung der Anzeige.
Besucher kamen auf die Seite Wohnungen in Zwickau durch folge Begriffe:
Synonyme zur Suche Zwickau Wohnungen:
Wohnungen Zwickau, Wohnung Zwickau, Zwickau Wohnung online
Immobilienbüro Kühn |
Wolfgang Kühn |
Jahnstraße 17 |
08058 Zwickau |
Telefon: |
0375282003 |
|
|
Maklerwebsite: |
|
|
|
Verbraucherinformation:
Online-Streitbeilegung gemäß Art. 14 Abs. 1 ODR-VO: Die Europäische Kommission stellt eine Plattform zur Online-Streitbeilegung (OS) bereit, die Sie hier finden: https://ec.europa.eu/consumers/odr