Ab 01.05.!Fraureuth; Schöne 3-Zimmer Dachgeschosswohnung mit Balkon! (Wohnungen Fraureuth)
Land:
DEU
Strasse:
Hauptstraße 16
PLZ:
08427
Ort:
Fraureuth
Adresse anzeigen:
1
Etage (im Haus):
3
Kaltmiete:
440,00 €
Warmmiete:
668,00 €
Nebenkosten:
228,00 €
Kaution:
880
Wohnfläche:
73,42 m²
Ihre Objektnr.:
HPT16-13
Objekttyp:
Dachgeschoss
Heizungsart:
Zentralheizung
Befeuerung:
Gas
Boden:
Fliesen
Zustand:
gepflegt
Bad:
Fenster
Zimmer:
3
Schlafzimmer:
2
Badezimmer:
1
Baujahr:
1997
Art:
Verbrauch
Gültig bis:
2026-11-06
E-Verbrauchskennw.:
71.30
EP inkl. Warmwasser:
ja
Wertklasse:
B
Baujahr:
1997
Jahrgang:
2014
Gebäudeart:
wohn
Das Doppel-Mehrfamilienhaus Hauptstraße 14/16 wurde 1997 erbaut.
Das gesamte Objekt widerspiegelt einen gehobenen Standard mit entsprechendem Ausstattungsniveau. Die Beheizung erfolgt mittels Gaszentralheizung.
Das Dach ist mit Schiefern eingedeckt.
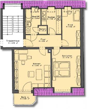
Die zur Miete angebotene Wohnung besitzt folgende Ausstattung:
- Flur
- Schlafzimmer
- Kinder-/Arbeitszimmer
- Badezimmer
- Balkon
- Mieterkeller
Seit dem 01.01.1998 bilden die 4 Ortsteile Fraureuth, Ruppertsgrün, Beiersdorf und Gospersgrün/Römersgrün die Großgemeinde Fraureuth mit insgesamt ca. 5.500 Einwohnern. Die Kreisstadt Werdau (ca. 20.000 Einwohner) grenzt unmittelbar an die Gemeinde an.
Die ausgeprägte Infrastruktur, vielschichtige medizinische Betreuung, Handel, Handwerk und Gewerbe werden durch die ruhige ländliche Umgebung sowie ein reges und vielseitiges Vereinsleben ergänzt. Eine moderne Sport- und Mehrzweckhalle, das idyllisch gelegene Waldbad und das nahe, großflächige Waldgebiet sowie mehrere Reiterhöfe vervollständigen das Freizeitangebot.
Dieses Angebot entspricht noch nicht Ihren Wünschen...?
Besuchen Sie auch unsere Homepage mit vielen weiteren Wohnungsangeboten oder sprechen Sie uns persönlich an. Wir präsentieren Ihnen gern weitere Objekte.
Alle Angaben beruhen auf Aussagen Dritter und erfolgen ohne Gewähr. Fotos, Grundrisse und Videos © Immobilienbüro Kühn
Das hier vorliegende Exposé ist bei Immobilienfrontal unter der Kategorie Fraureuth abgespiechert. Landkreis Zwickau ist die Oberkategorie in der diese Immobilie gelistet wird samt Immobiliensuche. Die Überschrift für diese Immobilie ist Ab 01.05.!Fraureuth; Schöne 3-Zimmer Dachgeschosswohnung mit Balkon!.
Der Anbieter Immobilienbüro Kühn GmbH & Co. KG Ansprechpartner Wolfgang Kühn, Jahnstraße 17 in 08058 Zwickau ist verantwortlich für die Veröffentlichung der Anzeige. Die Immobiliensuche nach günstigen Immobilien führt viele weitere Objekte unter Sachsen.
Besucher kamen auf die Seite Wohnungen in Fraureuth durch folge Begriffe:
Synonyme zur Suche Fraureuth Wohnungen:
Wohnungen Fraureuth, Wohnung Fraureuth, Fraureuth Wohnung online
Immobilienbüro Kühn GmbH & Co. KG |
|
Wolfgang Kühn |
|
Jahnstraße 17 |
|
08058 Zwickau |
|
Telefon: |
0375282003 |
|
|
|
|
Maklerwebsite: |
|
|
|
|
|
USt.-ID: |
DE152847296 |
|
Handelsregister-Nr: |
HRA 10300 AG Chemnitz |
|
Aufsichtsbehörde: |
Berufsaufsichtsbehörde Stadt Zwickau |
Verbraucherinformation:
Online-Streitbeilegung gemäß Art. 14 Abs. 1 ODR-VO: Die Europäische Kommission stellt eine Plattform zur Online-Streitbeilegung (OS) bereit, die Sie hier finden: https://ec.europa.eu/consumers/odr


