7% Rendite ? aus sicheren Mieteinnahmen- besser als Staatsrente (Gewerbeimmobilien Schleusingerneundorf)
Land:
DEU
PLZ:
98553
Ort:
Schleusingerneundorf
Kaufpreis:
300.000,00 €
Wohnfläche:
290,00 m²
Grundstücksfläche:
545,00 m²
vermietbare Fläche:
290,00 m²
Ihre Objektnr.:
SOO-V-04-24
Objekttyp:
Mehrfamilienhaus
Befeuerung:
Gas
Stellplätze (Anz.):
2
Garagen (Anz.):
2
Gartennutzung
Gültig bis:
2031-04-15
Diese attraktive Immobilie bietet eine einzigartige Gelegenheit für Kapitalanleger, in ein historisches Gebäude mit drei separaten Wohneinheiten zu investieren. Jede Einheit verfügt über einen eigenen Eingang, was eine optimale Privatsphäre für die Bewohner gewährleistet. Die Gesamtwohnfläche beträgt ca. 290 m², wobei jede Einheit individuell gestaltet ist, um den Bedürfnissen verschiedener Mieter gerecht zu werden.
Der Zustand ist top, die Lage super, die Rendite etwa 7% - worauf wartest Du noch?
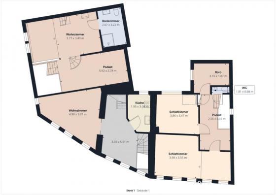
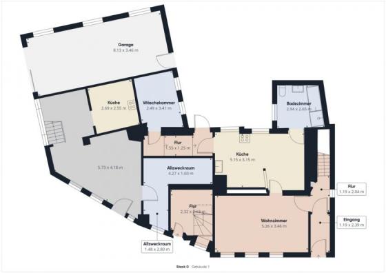
Die 3 Wohneinheiten teilen sich wie folgt auf:
Wohneinheit 1 (ca. 120 m², seit 11/2024 vermietet)
Diese Einheit erstreckt sich über drei Etagen und bietet ein geräumiges Wohnzimmer, eine Küche, ein Badezimmer sowie einen Keller und eine Waschküche im Erdgeschoss. Im ersten Stock befinden sich drei unterschiedlich große Schlafräume sowie ein WC. Das ausgebauten Dachgeschoss mit einer niedrigen Raumhöhe bietet ein Arbeitszimmer sowie ein Schlafzimmer.
Der Zugang zum Innenhof ist ausschließlich über diese Einheit oder die rechte Garage möglich.
Wohneinheit 2 (ca. 62 m², neu vermietet):
Diese Wohneinheit umfasst einen kleinen Flur und ein Treppenhaus im Erdgeschoss. Im ersten Obergeschoss befinden sich ein Esszimmer, eine Küche und ein Wohnzimmer, während das Dachgeschoss zwei Schlafzimmer und ein Familienbad beherbergt.
Wohneinheit 3 (ca. 110 m², vom Eigentümer bewohnt):
Die dritte Wohneinheit, die derzeit vom Eigentümer bewohnt wird, war ein ehemaliges Fotostudio mit einem Empfangsbereich, einem Arbeitsplatz und einer Küche im Erdgeschoss. Die Heizungsanlage der drei Einheiten befindet sich im direkten Zugang aus dieser Einheit. Ein Außenzugang ist machbar. Im ersten Obergeschoss ist der Raum in zwei durch ein paar Stufen abgetrennte Bereiche unterteilt. Auf der rechten Seite wurden Fotos gefertigt, während auf der linken Seite der Wohnbereich mit einem Kamin und einem neuen Badezimmer mit Dusche angesiedelt ist. Im Dachgeschoss befindet sich ein geräumiges Schlafzimmer.
Zusätzlich zu den drei Wohneinheiten umfasst die Immobilie zwei Garagen, die wertvollen Parkraum bieten. Das Grundstück erstreckt sich über großzügige 545 m² und bietet ausreichend Platz für Erweiterungen oder weitere Entwicklungen. Die Immobilie wurde regelmäßig saniert und vollständig ausgebaut, um modernen Wohnstandard zu bieten und den langfristigen Wert zu erhalten.
Schleusingen, eine malerische Stadt im Süden von Deutschland, liegt eingebettet in die sanften Hügel und dichten Wälder des Thüringer Waldes. Die Stadt erstreckt sich entlang des Flusses Nahe und wird von historischen Gebäuden, kleinen Geschäften und gemütlichen Cafés geprägt.
Von den Höhen des umliegenden Gebirges aus bietet sich ein atemberaubender Blick über das malerische Tal, das von üppigen Wäldern und grünen Wiesen durchzogen ist. Die Jahreszeiten bringen eine faszinierende Palette an Farben mit sich: Im Frühling erblühen die Wiesen in lebendigen Farben, im Sommer spenden die dichten Wälder angenehmen Schatten, im Herbst leuchten die Blätter in warmen Rottönen und im Winter verwandelt sich die Landschaft in eine zauberhafte Winterlandschaft.
Die Umgebung lädt zu vielfältigen Aktivitäten ein, sei es Wandern auf den zahlreichen Wanderwegen, Radfahren entlang des Flusses oder Erkunden der historischen Sehenswürdigkeiten wie der imposanten Schlossanlage. Die Bewohner von Schleusingen sind bekannt für ihre Gastfreundschaft und ihre Verbundenheit mit der Natur, was einen Besuch in dieser charmanten Stadt zu einem unvergesslichen Erlebnis macht.
Schleusingen ist eine liebenswerte Stadt im Thüringer Wald, die eine gute Infrastruktur bietet. Mit einer soliden Verkehrsanbindung, Bildungseinrichtungen, Gesundheitsversorgung, Einkaufsmöglichkeiten, Freizeiteinrichtungen und moderner Kommunikation ist sie ein attraktiver Ort zum Leben und Besuchen.
Bei Interesse an dieser Immobilie nutzen Sie bitte das Kontaktformular auf dieser Seite.
Bitte tragen Sie Ihre Kontaktdaten (Name, Adresse, Tel.-Nr., E-Mail-Adresse) vollständig ein, da nur ein vollständig ausgefülltes Formular an uns übermittelt wird.
Wir werden Ihre Anfrage dann schnellstmöglich bearbeiten und Sie anschließend kontaktieren.
Im Rahmen der Besichtigung kann die Situation entstehen, dass sich mehrere Interessenten für den Kauf der Immobilie entscheiden. Der Erhalt des Zuschlages kann sowohl von persönlichen Entscheidungen des Eigentümers, wie auch von einem Preisangebot abhängen.
Bei Interesse an weiteren Immobilien, schauen Sie bitte auf unsere Homepage
www.hauptmakler.de
Dort finden Sie eine große Auswahl an Häusern, Wohnungen, Gewerbeobjekten, Baugrundstücken und anderen Objekten, die von unserem Makler-Team betreut werden.
Bitte beachten Sie auch unseren Wertgutachten-Service. Sollten Sie eine fundierte, fachkundige Einschätzung zum Wert Ihrer Immobilie benötigen- auch die bekommen Sie gerne von uns.
Der Makler schuldet keine Beratung hinsichtlich des Gebäudeenergiegesetzes.
Die bereitgestellten Grundrisse sind nicht maßstäblich und können von den vorhanden Maßen abweichen.
Gemäß Geldwäsche-Gesetz § 4 GwG sind unsere Vertragspartner / Interessenten zur Mitteilung ihrer Identität verpflichtet. Wir bitten um Vorlage eines gültigen Personalausweises oder eines gültigen Reisepasses, wenn ein Termin zur Besichtigung vereinbart wird.
Die Überschrift zu diesem Immobilien-Objekt ist 7% Rendite ? aus sicheren Mieteinnahmen- besser als Staatsrente. Landkreis Hildburghausen ist die Oberkategorie in der diese Immobilie gelistet wird samt Immobiliensuche. Auf der Seite Schleusingerneundorf sind einige weitere Immobilienanzeigen zu finden. Dem Bundesland Thüringen ist die Immobilie zugewiesen samt weiteren Immobilienangeboten.
Besucher kamen auf die Seite Gewerbeimmobilien in Schleusingerneundorf durch folge Begriffe:
Synonyme zur Suche Schleusingerneundorf Gewerbeimmobilien:
Schleusingerneundorf Immobilien für Gewerbe, Gewerbeimmobilie Schleusingerneundorf, Gewerbe-Immobilien Schleusingerneundorf
|
Immobilienkanzlei Fleischmann GmbH & Co.KG |
|
Katja Fleischmann |
|
Am Bahnhof 10 |
|
98529 Suhl |
|
Telefon: |
+49 3681 723981 |
|
Telefax: |
+49 3681 723983 |
|
|
|
|
Maklerwebsite: |
|
|
|
|
|
Steuernummer: |
171/219/10187 |
|
USt.-ID: |
DE320890060 |
|
Aufsichtsbehörde: |
Ordnungsamt Suhl |
Verbraucherinformation:
Online-Streitbeilegung gemäß Art. 14 Abs. 1 ODR-VO: Die Europäische Kommission stellt eine Plattform zur Online-Streitbeilegung (OS) bereit, die Sie hier finden: http://ec.europa.eu/consumers/odr


