3-Zimmer-Gartenwohnung mit Kachelofen (Wohnungen Fürstenfeldbruck)
Land:
DEU
PLZ:
82256
Ort:
Fürstenfeldbruck
Kaltmiete:
1.575,00 €
Warmmiete:
1.975,00 €
Nebenkosten:
400,00 €
Wohnfläche:
75,00 m²
Ihre Objektnr.:
JQ618
Objekttyp:
Erdgeschoss
Heizungsart:
Zentralheizung
Zustand:
modernisiert
Küche:
EBK
Zimmer:
3
Schlafzimmer:
2
Badezimmer:
1
Baujahr:
1970
nur Nichtraucher:
1
Gartennutzung
Art:
Verbrauch
Gültig bis:
2028-09-21
E-Verbrauchskennw.:
145.00
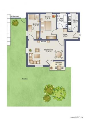
Diese 3-Zimmer-Gartenwohnung in der Schillerstraße 43 in Fürstenfeldbruck bietet ein Wohnambiente mit seltenem Charakter. Der Gartenanteil umschließt die Wohnung auf zwei Seiten und schafft viel Privatsphäre sowie ideale Bedingungen für alle, die Freude an Natur, Pflanzen und einem aktiven Gartenleben haben. Über die verglaste Terrassentür sowie einen separaten Gartenzugang gelangt man direkt in den privaten Außenbereich. Ein kleines Gartenhäuschen bietet zusätzlichen Stauraum.
Das Wohnzimmer ist hell, großzügig und mit einem gemütlichen Kachelofen ausgestattet. Alle Räume verfügen über Fenster, wodurch die gesamte Wohnung sehr freundlich und gut belichtet ist. Die beiden Schlafzimmer sind gut geschnitten und vielseitig nutzbar. Die Küche ist separat begehbar. Das Tageslichtbad verfügt über eine Badewanne.
Zur Wohnung gehört ein Kellerraum mit Fenster sowie ein eigener Anschluss für Waschmaschine und Trockner im Untergeschoss. Eine große Garage kann zu einem späteren Zeitpunkt zusätzlich angemietet werden. Die Wohnung eignet sich ideal für Personen, die ein ruhiges Wohnumfeld, einen schönen Garten und eine funktionale Raumaufteilung bevorzugen.
Ausstattung
Erdgeschoss, ca. 75 m²
Wohnzimmer, zwei Schlafzimmer, Küche, Bad mit Wanne, alle Räume mit Fenster
Sehr großer Gartenanteil auf zwei Seiten
Verglaste Terrassentür und separater Zugang zum Garten
Kleines Gartenhäuschen
Kachelofen im Wohnzimmer
Gas-Zentralheizung
Fenster erneuert ca. 2005
Kellerraum mit Fenster
Waschmaschinen- und Trockneranschluss im Keller
Heckenschnitt einmal jährlich
Garage optional zu späterem Zeitpunkt anmietbar
Frei ab 01.01.2025 oder 15.01.2025
Energieangaben
Verbrauchsausweis
Baujahr Gebäude 1970
Modernisierungen: Gas-Zentralheizung 2005, Fenster erneuert 2005
Energieträger Gas
Energieverbrauchskennwert ca. 145 kWh/(m²·a)
Energieeffizienzklasse E
Warmwasser enthalten
Mietkonditionen
Nettokaltmiete 1.575,00 Euro (3 Jahre fest, anschließend Indexklausel)
Heiz- und Nebenkostenpauschale 400,00 Euro
Gesamtmiete 1.975,00 Euro
Kaution 4.725,00 Euro
Die Wohnung befindet sich in ruhiger und gewachsener Wohnlage der Schillerstraße in 82256 Fürstenfeldbruck. Bushaltestellen befinden sich in fußläufiger Entfernung, der S-Bahnhof Fürstenfeldbruck (S4) ist ebenfalls schnell erreichbar. Die Fahrzeit nach München-Pasing beträgt rund 15 bis 20 Minuten, zum Münchner Hauptbahnhof etwa 25 bis 30 Minuten. Eine gute verkehrliche Anbindung besteht über die B471, B2 sowie die Autobahnen A8 und A99.
Einkaufsmöglichkeiten wie Rewe, Edeka, Lidl, Bäckereien, Apotheke und Gastronomie befinden sich im näheren Umfeld. Die Innenstadt von Fürstenfeldbruck ist in wenigen Minuten erreichbar und bietet vielfältige Einkaufsmöglichkeiten, Wochenmarkt und Dienstleistungsangebote.
Für die Freizeitgestaltung bieten sich die Amperauen, Rad- und Spazierwege, das Klosterareal Fürstenfeld mit Park, Kulturhaus und Biergarten sowie Sportvereine und das Freibad an. Das Wohnumfeld ist ruhig, grün und bietet einen hohen Erholungswert.
Die Überschrift für diese Immobilie ist 3-Zimmer-Gartenwohnung mit Kachelofen. Landkreis Fürstenfeldbruck ist die Oberkategorie in der diese Immobilie gelistet wird samt Immobiliensuche. Das hier vorliegende Exposé ist bei Immobilienfrontal unter der Kategorie Fürstenfeldbruck abgespiechert.
Die Immobiliensuche nach günstigen Immobilien führt viele weitere Objekte unter Bayern. Eine Kontaktanfrage zum Anbieter unter folgender Adresse: Brau & Friedrich Immobilien Ansprechpartner Holger Brau, Wallstr. 25 in 10179 Berlin.
Besucher kamen auf die Seite Wohnungen in Fürstenfeldbruck durch folge Begriffe:
Synonyme zur Suche Fürstenfeldbruck Wohnungen:
Wohnungen Fürstenfeldbruck, Wohnung Fürstenfeldbruck, Fürstenfeldbruck Wohnung online
|
Brau & Friedrich Immobilien |
|
Holger Brau |
|
Wallstr. 25 |
|
10179 Berlin |
|
Telefon: |
030 40007444 |
|
Telefax: |
030 40007445 |
|
Mobil: |
01575 0888088 |
|
|
|
|
Maklerwebsite: |
|
|
|
|
|
Aufsichtsbehörde: |
IHK-München und Oberbayern, Max-Josef-Straße 2, 80333 München www.ihk-muenchen.de. Steuernummer: 144/162/30537 |
Verbraucherinformation:
Impressum Brau & Friedrich Immobilien, Bürogemeinschaft Wallstr. 25 , 10179 Berlin Mitte Tel. 0800 4882488 Fax 0800 4886488 E-Mail info@bfic.de Internet www.bfic.de Holger Brau Mobil 01575.0888088 Telefon München: 089 48 95 43 43 Telefon Berlin: 030 4000 7 444 Büro-Anschrift: Jakob-Klar-Str. 4, 80796 München Gewerbeerlaubnis gem. 34c GewO wurde erteilt durch das Kreisverwaltungsreferat München Zuständige Aufsichtsbehörde: IHK-München und Oberbayern, Max-Josef-Straße 2, 80333 München www.ihk-muenchen.de. Steuernummer: 144/162/30537 Alexander Friedrich Mobil 0177.4882488 Telefon: 030 4000 7 543 Büro-Anschrift: Wallstr. 25, 10179 Berlin Gewerbeerlaubnis gem. 34c GewO wurde erteilt durch das Bezirksamt Steglitz-Zehlendorf in Berlin Zuständige Aufsichtsbehörde: Bezirksamt Steglitz-Zehlendorf in Berlin, Fachbereich Wirtschaft, Königin-Luise-Strasse 96, 14195 Berlin Umsatzsteuer-ID: DE 136 389 311 https://bfic.de/datenschutzerklaerung/


