3-Raumwohnung mit Dachterrasse in 1A-Lage! Direkt neben den Zwickau Arcaden! (Wohnungen Zwickau)
Land:
DEU
Strasse:
Innere Plauensche Straße 23
PLZ:
08056
Ort:
Zwickau
Adresse anzeigen:
1
Etage (im Haus):
2
Kaltmiete:
925,00 €
Warmmiete:
1.336,00 €
Nebenkosten:
410,00 €
Kaution:
1.850
Wohnfläche:
132,26 m²
Ihre Objektnr.:
IPL23-03
Objekttyp:
Etage
Heizungsart:
Zentralheizung
Befeuerung:
Gas
Zustand:
gepflegt
Bad:
Fenster
Küche:
EBK
Zimmer:
3
Schlafzimmer:
2
Badezimmer:
1
Baujahr:
1928
Art:
Bedarf
Gültig bis:
2034-07-17
Endenergiebedarf:
248.00
Baujahr:
1992
Jahrgang:
2014
Gebäudeart:
wohn
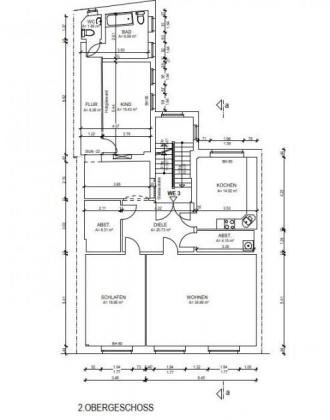
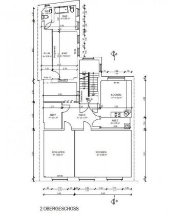
Die gut geschnittene 3-Raum-Wohnung befindet sich im 2. Obergeschoss eines stilvollen, historischen Wohn- und Geschäftshauses, das ursprünglich Ende des 19. Jahrhunderts errichtet und im Jahr 1992 umfassend modernisiert wurde. Die Lage bietet eine gute Anbindung an den öffentlichen Nahverkehr sowie fußläufig erreichbare Einkaufsmöglichkeiten, Arztpraxen und weitere Einrichtungen des täglichen Bedarfs.
Die Wohnung überzeugt durch helle Zimmer und einen angenehmen Altbaucharme mit modernem Komfort. Große Fenster sorgen für viel Tageslicht und ein freundliches Wohnambiente.
Mit ca. 132,26 m² Wohnfläche teilt sie sich wie folgt auf:
- Flur: 8,38 m²
- Diele: 20,73 m²
- Wohnen: 34,89 m²
- Schlafen: 18,86 m²
- Kind: 15,43 m²
- Küche: 14,92 m²
- Tageslichtbad mit Wanne: 6,99 m²
- Gäste-WC mit Fenster: 1,60 m²
- Abstellen 1: 6,31 m²
- Abstellen 2: 4,15 m²
- große Dachterrasse
Stellplätze können in den direkt gegenüberliegenden Zwickau Arcaden oder in der wenige Meter entfernten Peter-Breuer-Straße angemietet werden.
Die WG liegt in 1A-Innenstadtlage in der Inneren Plauenschen Straße - der Haupteinkaufsstraße in der Fußgängerzone von Zwickau. Die Innere Plauensche Straße ist die Verbindungsstraße zwischen Fußgängerzone und Hauptmarkt.
Dieses Angebot entspricht noch nicht Ihren Wünschen...?
Besuchen Sie auch unsere Homepage mit vielen weiteren Wohnungsangeboten oder sprechen Sie uns persönlich an.
Alle Angaben beruhen auf Aussagen Dritter und erfolgen ohne Gewähr. Exposé © Immobilienbüro Kühn
Landkreis Zwickau ist die Oberkategorie in der diese Immobilie gelistet wird samt Immobiliensuche. Die Überschrift für diese Immobilie ist 3-Raumwohnung mit Dachterrasse in 1A-Lage! Direkt neben den Zwickau Arcaden!. Das hier vorliegende Exposé ist bei Immobilienfrontal unter der Kategorie Zwickau abgespiechert. Dem Bundesland Sachsen ist die Immobilie zugewiesen samt weiteren Immobilienangeboten. Der Anbieter Immobilienbüro Kühn GmbH & Co. KG Ansprechpartner Wolfgang Kühn, Jahnstraße 17 in 08058 Zwickau ist verantwortlich für die Veröffentlichung der Anzeige.
Besucher kamen auf die Seite Wohnungen in Zwickau durch folge Begriffe:
Synonyme zur Suche Zwickau Wohnungen:
Wohnungen Zwickau, Wohnung Zwickau, Zwickau Wohnung online
Immobilienbüro Kühn GmbH & Co. KG |
|
Wolfgang Kühn |
|
Jahnstraße 17 |
|
08058 Zwickau |
|
Telefon: |
0375282003 |
|
|
|
|
Maklerwebsite: |
|
|
|
|
|
USt.-ID: |
DE152847296 |
|
Handelsregister-Nr: |
HRA 10300 AG Chemnitz |
|
Aufsichtsbehörde: |
Berufsaufsichtsbehörde Stadt Zwickau |
Verbraucherinformation:
Online-Streitbeilegung gemäß Art. 14 Abs. 1 ODR-VO: Die Europäische Kommission stellt eine Plattform zur Online-Streitbeilegung (OS) bereit, die Sie hier finden: https://ec.europa.eu/consumers/odr


