28.02. Besichtigung Erdgeschosswohnung mit 2 Terrassen und guter Rendite 4,50% sucht Investor (Wohnungen Borkwalde)
Land:
DEU
Strasse:
Birkenstraße 106
PLZ:
14822
Ort:
Borkwalde
Adresse anzeigen:
1
Etage (im Haus):
1
Kaufpreis:
179.000,00 €
Hausgeld:
497,25 €
Kaufpreis / qm:
2.073,68 €
Wohnfläche:
86,32 m²
Ihre Objektnr.:
9003#XDSXfj
Objekttyp:
Erdgeschoss
Heizungsart:
Zentralheizung
Befeuerung:
Gas
Boden:
Kunststoff
Zustand:
gepflegt
Bad:
Fenster
Zimmer:
3
Schlafzimmer:
2
Badezimmer:
1
Baujahr:
1994
vermietet:
1
Gartennutzung
Art:
Verbrauch
Gültig bis:
04.03.2034
E-Verbrauchskennw.:
80.0
EP inkl. Warmwasser:
ja
Samstag, den 28.02.26 ist eine Besichtigung um 13:00 Uhr möglich. Vielen Dank für Ihre Terminabstimmung.
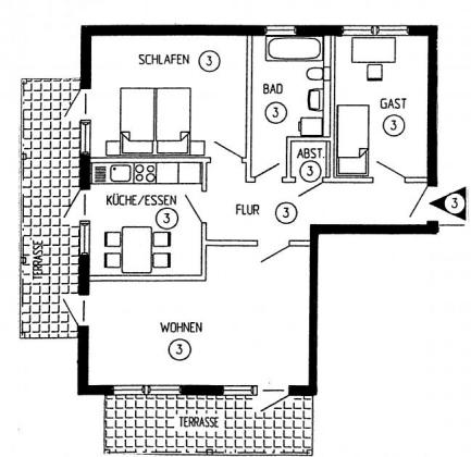
Die angebotene Immobilie ist eine Erdgeschosswohnung in einem Neubau aus dem Jahr 1994. Die Wohnfläche beträgt 86,32 Quadratmeter und die Energieeffizienzklasse ist C. Das Gebäude verfügt über insgesamt drei Etagen, wobei die Wohnung sich auf der ersten Etage befindet. Ein Garten kann genutzt werden, ebenso wie eine Terrasse. Weitere Annehmlichkeiten sind ein Keller und eine Zentralheizung. Der Gebäudezustand ist gepflegt.
Die Wohnung umfasst zwei Schlafzimmer, ein Badezimmer, sowie ein weiteres Zimmer, das als Wohn- oder Esszimmer genutzt werden kann. Die Räume sind großzügig geschnitten und bieten viel Platz für individuelle Gestaltungsmöglichkeiten. Die Terrasse lädt zum Verweilen im Freien ein und der Garten ist ideal für gemütliche Stunden im Grünen.
Die Immobilie ist derzeit vermietet und eignet sich daher als solide Kapitalanlage. Durch die zentrale Lage und die gute Aufteilung der Räume ist die Wohnung auch ideal für Paare oder kleine Familien geeignet. Insgesamt handelt es sich um eine attraktive Immobilie mit zahlreichen Möglichkeiten für die zukünftigen Bewohner.
• Wohnzimmer
• Terrasse 2
• Schlafzimmer 2
• Küche
• Bad mit Badewanne, Bodeneinlauf und Waschmaschinenanschluss
• Mieterkeller mit Stromversorgung (Licht und Steckdose)
• Gemeinschaftskeller Fahrradkeller
• Gemeinschaftskeller Trockenraum
• PKW-Stellplätze auf den Parkplätzen der Wohnungseigentümergemeinschaft
Der Ort Borkwalde liegt im Landkreis Potsdam-Mittelmark, inmitten eines ausgedehnten Waldgebietes.
Borkwalde ist ca. 49 km Luftlinie von Berlin entfernt.
Durch die wenige Kilometer entfernten Bundesautobahnen A 9 (München- Berlin) A 10 (Berliner Ring) A 2 (Berlin – Hannover) hat man sehr gute Verkehrsanbindungen in die Richtungen Potsdam/Berlin - Leipzig/ Halle – Magdeburg/Hannover.
Mit dem RE 7 fahren in 41 min. von Berlin Zoologischer Garten nach Borkheide. Der RE 7 fährt von Berlin nach Dessau über Ostkreuz – Ostbahnhof- Alex.- Friedrichstr. - Hbf.- Zoo- Charlottenburg - Wannsee – Potsdam – Seddin - Beelitz – Borkheide – Brück – Bad Belzig – Wiesenburg. Mit der Buslinie 541 (Brück- Borkheide-Busendorf) erreichen Sie von Borkwalde in 3 Minuten Fahrzeit den Bahnhof in Borkheide.
Zum Nachbarort Borkheide mit dem Bahnanschluss RE 7, vielen Einkaufsmöglichkeiten, Schulen, Hotels, Restaurants und dem Waldbad sind es nur wenige Kilometer. Die Fahrradwege zwischen den Orten liegen neben den Straßen und werden sehr gern genutzt.
Die Waldgemeinde Borkwalde, ist ein Ort des Amtsbereiches Brück der für seine Schwedenhaussiedlung und damit verbunden für die zahlreichen und farbenfrohen Holzhäuser weit bekannt ist. In der idyllischen, ruhigen Umgebung von Borkwalde leben derzeit ca. 2000 Einwohner. Mehrere Vereine und ihre Mitglieder, zahlreiche Gewerbetreibende und viele engagierte Bürger sorgen sich um das Wachsen und Gedeihen der Waldsiedlung. In den letzten Jahren wurde Borkwalde von vielen Menschen nicht länger nur als Wochenenddomizil, sondern auch als neuer Wohnsitz entdeckt. In Borkwalde finden Sie: eine Ärztin, eine Hebamme, eine Physiotherapeutin, eine Apotheke, einen Friseur und Kindergärten.
Der Spargelhof Buschmann- Winkelmann ist 5 km von Borkwalde entfernt, hier können Sie einkaufen oder Zeit mit der Familie verbringen.
In der näheren Umgebung finden Sie Brück, Beelitz, Kloster Lehnin und Werder (Havel).
Keine Provision für Kaufende bei der Stein & Co. Vermögensverwaltung GmbH.
Die Wohnung ist gut vermietet, es gibt keine Probleme, die Mietzahlungen erfolgen zuverlässig.
Es gibt keine Rechtsstreitigkeiten und keine Wohngeldschuldner in dieser Gemeinschaft der Wohnungseigentümer.
Detaillierte Informationen zu den Mietzahlungen, der Eigentumswohnanlage, den Miteigentumsanteilen, den Hausgeldzahlungen und der Erhaltungsrücklage entnehmen Sie bitte der beigelegten Aufstellung.
Unsere gesamten Immobilienangebote finden Sie auf unserer Homepage unter: www.steinundco.de
Alle genannten Angaben zum Objekt beruhen auf den Angaben der Eigentümer.
Die Urheberrechte dieser Veröffentlichung liegen bei der Stein & Co. Vermögensverwaltung GmbH.
Weiterveröffentlichung nur mit Zustimmung der Stein & Co. Vermögensverwaltung GmbH.
Landkreis Potsdam-Mittelmark ist die Oberkategorie in der diese Immobilie gelistet wird samt Immobiliensuche. Dieses Exposé ist der Kategorie Borkwalde zugeordnet. Die Überschrift für diese Immobilie ist 28.02. Besichtigung Erdgeschosswohnung mit 2 Terrassen und guter Rendite 4,50% sucht Investor. Der Anbieter Stein & Co. Vermögensverwaltung GmbH Ansprechpartner Bernd Raeuber, Berliner Straße 75 in 14542 Werder (Havel) ist verantwortlich für die Veröffentlichung der Anzeige. Brandenburg lautet die geografische Oberkategorie zu dem vorliegenden Angebot.
Besucher kamen auf die Seite Wohnungen in Borkwalde durch folge Begriffe:
Synonyme zur Suche Borkwalde Wohnungen:
Wohnungen Borkwalde, Wohnung Borkwalde, Borkwalde Wohnung online
|
Stein & Co. Vermögensverwaltung GmbH |
|
Bernd Raeuber |
|
Berliner Straße 75 |
|
14542 Werder (Havel) |
|
Telefon: |
03327 732900 |
|
Telefax: |
03327 7329019 |
|
|
|
|
Maklerwebsite: |
|
|
|
|
|
Steuernummer: |
048 / 120 / 00026 |
|
Handelsregister: |
Potsdam |
|
Handelsregister-Nr: |
HRB 1583 |
|
Aufsichtsbehörde: |
Stadt Werder (Havel) |
Verbraucherinformation:
Online-Streitbeilegung gemäß Art. 14 Abs. 1 ODR-VO: Die Europäische Kommission stellt eine Plattform zur Online-Streitbeilegung (OS) bereit, die Sie hier finden: http://ec.europa.eu/consumers/odr


