2 Zimmer Dachgeschoss * Parkett * Loggia * Lift * in Stötteritz * (Wohnungen Leipzig)
Land:
DEU
Strasse:
Ferdinand-Jost-Straße 16
PLZ:
04299
Ort:
Leipzig
Adresse anzeigen:
1
Kaltmiete:
775,00 €
Warmmiete:
965,00 €
Nebenkosten:
190,00 €
Vermittl.-Provision:
provisionsfrei
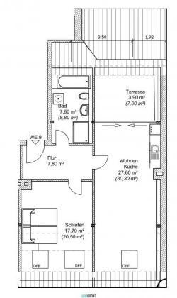
Wohnfläche:
64,60 m²
Ihre Objektnr.:
032-fjost16-we09
Objekttyp:
Dachgeschoss
Heizungsart:
Zentralheizung
Fahrstuhl:
Personen
Boden:
Parkett
Möblierung:
Teil
Serviceleistungen:
Reinigung
Zustand:
Teil- / Vollrenoviert
Bad:
Fenster
Zimmer:
2
Gartennutzung
Kabel/Sat/TV
Einbauküche kann gegen eine Ablöse vom Vormieter übernommem werden. Näheres bei Besichtigung
Die Immobiliendetails auf einen Blick:
- Dachgeschosswohnung
- große Wohnküche
- ruhige Wohnlage
- hochwertiger saniertes Objekt in Leipzig-Stötteritz
- Dachterrasse mit Blick auf das Völkerschlachtdenkmal
- große Fenster / viel Licht in den Wohnräumen
- Lift im Haus
- hochwertige Parkettfußböden
- großformatiges Badfliesen-Design
- Bad mit Badewanne, bodentiefer Dusche mit Echtverglasung, WM-Anschluss, Fenster
- Multimedia-Verkabelung, TV-Anschluss in allen Räumen
Facettenreicher und idealer Standort zum Wohlfühlen - Die Umgebung des Objektes bietet Ihnen zahlreiche Möglichkeiten, um Ihre Geschäfte des täglichen Bedarfs (Post, Zeitschriftenladen, Bäcker, Apotheke, Einkaufsmarkt, etc.) zu erledigen. Die öffentlichen Verkehrsmittel (Bus & Straßenbahn) sind fußläufig zu erreichen. Die Nähe zu Parks, Restaurants und nicht zuletzt der zügigen Nahverkehrsanbindung in die Leipziger City macht diese Lage vielleicht zu Ihrer neuen Lebensumgebung.
Landkreis Leipzig ist die Oberkategorie in der diese Immobilie gelistet wird samt Immobiliensuche. Die Überschrift für diese Immobilie ist 2 Zimmer Dachgeschoss * Parkett * Loggia * Lift * in Stötteritz *. Dieses Exposé ist der Kategorie Leipzig zugeordnet. Sachsen lautet die geografische Oberkategorie zu dem vorliegenden Angebot. Der Anbieter WOHNKONTAKT Unternehmensgruppe Ansprechpartner Silvio Ullrich, Schönbachstraße 81 in 04299 Leipzig ist verantwortlich für die Veröffentlichung der Anzeige.
Besucher kamen auf die Seite Wohnungen in Leipzig durch folge Begriffe:
Synonyme zur Suche Leipzig Wohnungen:
Wohnungen Leipzig, Wohnung Leipzig, Leipzig Wohnung online
|
WOHNKONTAKT Unternehmensgruppe |
|
Silvio Ullrich |
|
Schönbachstraße 81 |
|
04299 Leipzig |
|
Telefon: |
0341 - 249 49 141 |
|
Mobil: |
0170 - 228 100 0 |
|
|
|
|
Maklerwebsite: |
|
|
|
|
|
Steuernummer: |
231 / 283 / 03448 |
|
USt.-ID: |
DE268664792 |
|
Aufsichtsbehörde: |
IHK zu Leipzig |
Verbraucherinformation:
Online-Streitbeilegung gemäß Art. 14 Abs. 1 ODR-VO: Die Europäische Kommission stellt eine Plattform zur Online-Streitbeilegung (OS) bereit, die Sie hier finden: http://ec.europa.eu/consumers/odr


