2 Wohneinheiten: DHH Gauting–Buchendorf – Wintergarten, Doppelgarage + 1 Stpl., provisionsfrei (Häuser Kasten)
Land:
DEU
PLZ:
82131
Ort:
Kasten
Kaufpreis:
949.000,00 €
Wohnfläche:
155,15 m²
Nutzfläche:
100,90 m²
Grundstücksfläche:
391,75 m²
Ihre Objektnr.:
5927#AUJ31
Objekttyp:
Zweifamilienhaus
Befeuerung:
Öl
Stellplatz-Art:
Freiplatz
Küche:
EBK
Stellplätze (Anz.):
1.0
Garagen (Anz.):
2
Zimmer:
5
Schlafzimmer:
3
Badezimmer:
2
Seperate WC:
1
Baujahr:
1985
vermietet:
1
Art:
Verbrauch
Gültig bis:
22.05.2035
E-Verbrauchskennw.:
73.19
EP inkl. Warmwasser:
ja
Ideal für 2 Familien / Mehrgenerationen:
Provisionsfrei. Gepflegte DHH mit 155,15 m² Wfl. auf 391,75 m² Grund in Gauting–Buchendorf.
2 Wohneinheiten:
ein gemeinsamer Hauseingang, innen klar getrennt (WE1 = EG+UG, WE2 = OG mit Empore), 2 Küchen, 2 Bäder + Gäste-WC.
2020 modernisiert (u. a. Bad OG, Maler i./a., Öl-Heizung Viessmann 2020).
Beheizbarer Wintergarten, Doppelgarage + 2 Außenstellplätze. Energieklasse B (73,19 kWh/(m²·a), EA 23.05.2025).
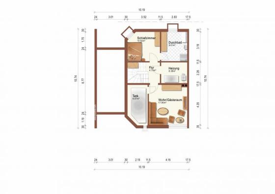
Aufteilung nach Wohneinheiten
Wohneinheit 1 – Erdgeschoss + Untergeschoss
EG:
Großzügiger Wohn-/Essbereich (37,3 m²) mit Zugang zur Südwest-Terrasse (9,3 m²) und in den Wintergarten (18,15 m²), separate Küche (7,1 m²), Gäste-WC, Windfang (7,7 m²). Vom Windfang direkter Zugang zur Doppelgarage (31,4 m²) und zum Abstell-/Geräteraum (11,5 m²).
UG:
Schlafzimmer (10,8 m²), Wohn-/Gästeraum (17,9 m²), Duschbad (9 m²), Flur (4,8 m²) sowie Heizungs- und Tankraum.
Wohneinheit 2 – Obergeschoss
Wohnzimmer (14,2 m²), Schlafzimmer (10,1 m²), Büro (12,3 m²), Küche (8,4 m²) sowie modernisiertes Tageslichtbad (5,7 m², 2020). Zusätzlich kleine Empore – ideal als Schlafplatz oder Stauraum.
Highlights & Modernisierung
- Beheizbarer Wintergarten mit komplett öffnender Schiebetür in den Garten
- Neues Tageslichtbad OG (2020), Malerarbeiten innen/außen (2020)
- Öl-Zentralheizung Viessmann (2020); Energieeffizienzklasse B, 73,19 kWh/(m²·a) (EA vom 23.05.2025)
Flächenübersicht (transparent):
- Wohnfläche: ca. 155,15 m² (EG+OG; inkl. Empore 50 % & Terrasse anteilig 6,98 m²)
- Nutzfläche (UG innen): ca. 58,0 m² · Gesamt-Nutzfläche inkl. Garage/Abstell: ca. 100,9 m²
- Grundstück: 391,75 m²
Parken & Abstellen
- Insgesamt 3 Stellplätze: 2 in der Doppelgarage (elektrisches Sektionaltor) + 1 Außenstellplatz
- Großer Abstellraum neben der Garage (Fahrräder, Gartengeräte, Schränke, Regale)
Eignung & Lagevorteile
Optimal für 2 Familien, Mehrgenerationen oder Wohnen + Teilvermietung (getrennte Nutzung im Inneren, gemeinsamer Eingang). Sehr gute Anbindung nach Gauting, Starnberg, München; naturnah mit kurzen Wegen zu Einkauf, Kitas, Schulen und Freizeit.
Ein Kamin-/Ofenanschluss ist nachrüstbar.
Besichtigung & Kontakt:
Besichtigungen kurzfristig und auch am Wochenende möglich.
Tel.: 0151 / 230 74 230
E-Mail: info@irl-immobilien.de
Der Verkauf erfolgt provisionsfrei vom Eigentümer.
- Provisionsfrei für Käufer
- 155,15 m² Wohnfläche · 6 Zimmer + Empore
- 2 separat nutzbare Wohneinheiten (EG/UG + OG)
- Beheizbarer Wintergarten, ganzjährig nutzbar
- Deckenhöhe im OG bis ca. 4,10 m
- Tageslichtbad (2020) · Duschbad (EG/UG) · Gäste-WC (EG)
- 2 Einbauküchen
- Südorientierter Garten mit Tageslicht von morgens bis abends
- Doppelgarage mit elektrischem Sektionaltor und direktem Hauszugang
- Überdachter Fahrrad-/Abstell-/Geräteraum neben der Garage
- Viessmann Öl-Zentralheizung (2020) — Energieverbrauch 73,19 kWh/(m²·a) → Effizienzklasse B
- Malerarbeiten innen & außen (2020)
- Sehr gepflegter, sparsamer Gesamtzustand.
Buchendorf ist ein bevorzugter, ruhiger Ortsteil von Gauting, umgeben von Feldern, altem Baumbestand und dem Forstenrieder Park – ein idealer Wohnstandort zwischen Gauting, Starnberg und München.
Verbindungen & Erreichbarkeit:
- ca. 1 km bis Gauting (auch über beleuchteten, breiten Fuß- und Radweg möglich)
- S-Bahn Gauting → München Hbf ca. 20–25 Min.
- Münchner Innenstadt mit dem Auto ca. 25–30 Min.
- Starnberger See ca. 10–15 Min.
- Autobahn A95 ca. 12 Min.
Alltag & Versorgung:
- Einkauf, Restaurants & Cafés in Gauting ca. 3 Min.
- Kindergärten & Schulen in Gauting ca. 4–7 Min.
- Ärzte & Apotheken in Gauting ca. 3–6 Min.
- Sportanlagen, Tennis, Reiten, Golf in unmittelbarer Umgebung
Natur & Erholung:
- Forstenrieder Park → direkt erreichbar (Wandern, Joggen, Radfahren)
- Isarauen → ca. 10 Min.
- Fünf-Seen-Land → schnell erreichbar für Baden, Segeln, Spaziergänge
Wohnen in Buchendorf bedeutet:
- Ruhe, Natur, gewachsene Nachbarschaft
- gleichzeitig schnell in Gauting, schnell in München, schnell am See.
Sollte diese Immobilie nicht die richtige sein, finden Sie unter Landkreis München weitere Objekte. 2 Wohneinheiten: DHH Gauting–Buchendorf – Wintergarten, Doppelgarage + 1 Stpl., provisionsfrei ist die Kopfzeile diesen Objektes. Dieses Immobilien-Exposé ist unter der Kategorie Kasten aufgeführt. Das Auffinden von Immobilien erleichtert die Bundeslandsuche nach Objekten unter Bayern.
Der Anbieter Ansprechpartner , in hat dieses Objekt inseriert.
Besucher kamen auf die Seite Häuser in Kasten durch folge Begriffe:
Synonyme zur Suche Kasten Häuser:
Kasten Häuser online, Haus Kasten, Häusermarkt Kasten
|
|
|


